






ЖК «Парк-квартал Юнтолово» строят в Приморском районе Санкт-Петербурга рядом с Юнтоловским заказником. Он входит в состав экорайона «Юнтолово».
Надежность застройщика
Девелопер проекта — «Главстрой Санкт-Петербург». Присутствует на рынке с 2006 года, входит в состав ГК «Главстрой». Компания осуществляет полный цикл работ: от инвестирования до управления жилой недвижимостью. Сейчас девелопер реализует три проекта: «Юнтолово», «Северная долина» и «Кронфорт. Центральный».
Описание проекта
Проект комфорт-класса «Парк-квартал Юнтолово» строят на северо-западе, в муниципальном округе Лахта-Ольгино Приморского района Петербурга в окружении Юнтоловского заказника. Рядом есть остановки автобусов и маршруток, можно доехать до станций метро «Удельная» и «Беговая».
Приморский район является одним из крупнейших в Петербурге. Он расположен вдоль Невской губы Финского залива, по его территории проходят такие значимые дороги как ЗСД, Приморское и Суздальское шоссе, Приморский и Богатырский проспекты, в районе есть несколько промышленных предприятий. При этом Приморский — один из самых экологически благоприятных районов в пределах КАД. Примерно четверть его территории занимают зеленые зоны (Юнтоловский заказник с лесопарком, Новоорловский заказник, Удельный парк, скверы), к тому же сказывается близость к Финскому заливу.
Парк-квартал входит в состав проекта комфорт-класса «Юнтолово», большая часть которого уже построена. Новый квартал состоит из семи корпусов на 1 623 квартиры, ввод запланирован на 2025 год и первую половину 2026 года.
Во дворах, закрытых от автомобилей, разместятся детские площадки для разных возрастов, места для занятий спортом и отдыха, арт-объекты. Для машин — многоуровневый паркинг на почти 500 машино-мест. В парадных предусмотрены помещения для хранения колясок и велосипедов.
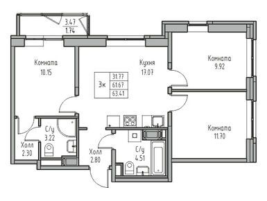
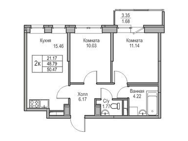
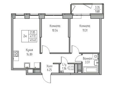
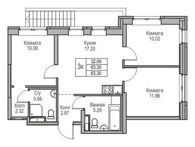
На этажах запроектировано не больше 6 квартир. Покупателям предложен большой выбор планировочных решений: квартиры евроформата, с мастер-спальнями, местами для хранения, увеличенными оконными проемами с низкими подоконниками.
В середине сентября 2025 года для покупки доступны 349 квартир с отделкой: от студий площадью 26,79 кв. м до 4-комнатных площадью 112,34 кв. м. Большинство из них — с балконом. Цены — от 6,3 млн рублей за самую компактную студию.
Инфраструктура
Первые этажи корпусов займут коммерческие помещения. Рядом с домами есть школа, строятся детский сад и поликлиника. На территории проекта «Юнтолово» уже открыты детские сады и школы, а также объекты инфраструктуры на первых этажах жилых домов. Проектом предусмотрен также собственный торговый центр «Ю`Молл».
Рядом с кварталом появятся Центральный парк и Зеленый бульвар. Недалеко от новостройки — Юнтоловский заказник, гребной клуб «Причал Ю» на реке Юнтоловка.
Плюсы и минусы
Парк-квартал «Юнтолово» — часть масштабного проекта «Юнтолово» в Приморском районе Петербурга. Жилой комплекс уже «оброс» собственной инфраструктурой, так что будущие жители парка-квартала получат практически всё необходимое.
Минусом можно назвать отдаленность от центра города и от станций метро, но такие недостатки вполне перекрываются хорошим экологическим окружением.
Метро «Беговая» → Автобус № 120,112 (25 минут в пути) → Остановка «Юнтоловский проспект» → Пройти пешком 200 метров.