








Проект «Шкиперский 19» расположен в Василеостровском районе Петербурга рядом с Финским заливом, недалеко от культурного центра «Севкабель» и других достопримечательностей. Ближайшие станции метро — «Приморская» и «Горный институт».
Надежность застройщика
Девелопер проекта — ПИК. Один из крупнейших российских застройщиков присутствует на рынке с 1994 года, является системообразующей организацией. Занимает второе место по объему текущего строительства в стране, в Петербурге и Ленинградской области по этому показателю находится на четвертом месте.
Описание проекта
Комплекс бизнес-класса «Шкиперский 19» строят в исторической части Васильевского острова на берегу Галерной гавани. До станций метро «Приморская» и «Горный институт» — около получаса ходьбы. До «Приморской», «Площади Восстания», «Петроградской» и «Нарвской» можно доехать на автобусе. В перспективе рядом с проектом откроется станция метро «Гавань» Лахтинско-Правобережной линии.
Василеостровский район отделен от других районов города реками Большая Нева и Малая Нева. Он состоит из двух крупных островов, разделенных рекой Смоленкой — Васильевский и остров Декабристов, — и небольшого Серного острова. На территории района достаточно много производств и проходит ЗСД, но мало зеленых зон, экологическая обстановка здесь не самая благоприятная. В то же время обилие водных пространств делает микроклимат Василеостровского района комфортнее, чем в других частях города.
«Шкиперский 19» относится к «Серии плюс» — это кварталы повышенной комфортности и с уникальной архитектурой. Проект состоит из домов высотой 8–12 этажей, облицованных бетонной плиткой под кирпич, этот материал отлично переносит перепады температур и плохую погоду.
В гранд-лобби запроектированы детская игровая комната, в лобби корпусов — помещения для хранения велосипедов и колясок, лапомойки. На подземных уровнях разместятся паркинг на 720 машино-мест и кладовые. Во дворе-парке — детские и спортивные площадки, места для отдыха, в том числе для работы на свежем воздухе.
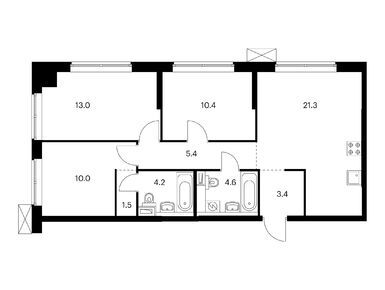
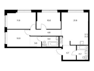
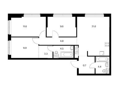
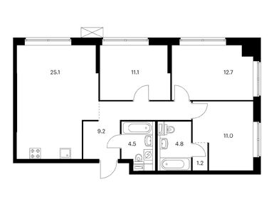
В начале июня 2025 года в продаже есть 219 квартир в двух корпусах — от студий площадью 20,6 кв. м до вариантов с тремя комнатами и кухней-гостиной площадью 95,9 кв. м. Часть планировок предусматривает панорамные виды на воду и индивидуальные террасы. Продажа квартир в домах корпуса №1 осуществляется с предчистовой отделкой, в домах корпуса №2 — без отделки. Первый корпус будет сдан во II квартале 2025 года, второй — во II квартале 2027 года. Цены — от 8,3 млн рублей. Купить квартиру предлагается по 100% оплате, в ипотеку или рассрочку.
Инфраструктура
Инфраструктура проекта включает коммерческие объекты на первых этажах, детский сад на 280 мест (планируется открыть в III квартале 2025 года) и школу на 825 мест (планируется открыть во II квартале 2026 года).
Вся полезная инфраструктура есть и в окружении проекта, включая несколько престижных вузов. Кроме того, в Василеостровском районе много исторических и культурных достопримечательностей — памятники, архитектурные объекты, недалеко от новостройки находятся Морской вокзал и культурный центр «Севкабель».
Плюсы и минусы
Проект «Шкиперский 19» строится в одной из наиболее востребованных локаций Санкт-Петербурга. Дома расположены рядом с набережной Галерной гавани, сквером Малые Гаванцы и Финским заливом — жители смогут не только любоваться отличными видами из окон своих квартир, но и каждый день гулять возле воды.
Проект будет обеспечен собственной инфраструктурой — в дополнение к той, что уже есть недалеко от новостройки.
Минус, присущий многим локациям Петербурга, — неважная пешая доступность метро. Впрочем, она может улучшиться, когда рядом построят новую станцию — «Гавань». Ожидается, что она будет открыта к 2030 году.
Метро «Приморская» → Пройти пешком 210 метров до остановки (2 минуты) → Остановка «Метро Приморская» → Трамвай № 6, 1 (7 минут в пути) → Остановка «Шкиперский проток» → Пройти пешком 1,1 км (13 минут).