Переверните экран
Поиск домов и коттеджей

Найдите идеальный дом или коттедж в Санкт-Петербурге и области

Найдите идеальный дом или коттедж в Санкт-Петербурге и области

Перейти к поиску
Новостройки Квартиры Ипотека Медиа О проекте Контакты Реклама на сайте Vk Youtube Telegram Дзен Продавцы и застройщики Коммерческие помещения Квартиры на карте Эксперты и авторы Машиноместа Акции от застройщиков Банки и программы Апартаменты Новостройки на карте 4-комнатные и более Готовые новостройки 3-комнатные Военная ипотека Покупателю Новостройки Санкт-Петербурга Видеообзор новостроек Семейная ипотека Аналитика рынка Панорамы новостроек 1-комнатные Субсидированная застройщиком Мнение эксперта Студии Ипотечный калькулятор Новости недвижимости Новостройки Ленинградской области IT-ипотека Квартиры со скидками до 25% Новостройки премиум-класса Новостройки бизнес-класса Дома и коттеджи Бизнес-центры Бизнес-центры в Санкт-Петербурге Бизнес-центры рядом с метро Строящиеся бизнес-центры Бизнес-центры класса A
2-комн. квартира, 52.80 м2, 1 этаж
Срок сдачи 2 квартал 2027 года
19 140 000 
362 500 2
обновлено 5 декабря

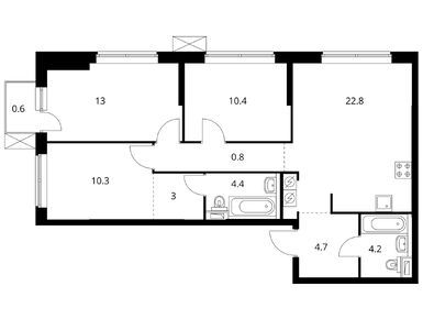
Описание 2-комн. квартиры

Новостройка
Срок ГК
2 квартал 2027 года
Стадия строительства
Тип проекта
Общая площадь
52.80 м2
Этаж
1 / 12
Отделка
нет
Грузовой лифт
есть

Расположение 2-комн. квартиры

Дом
2
Адрес
Шкиперский проток, 19, секция 1

Способы покупки

Особенности

Продается двухкомнатная квартира в новостройке Шкиперский 19 по адресу Санкт-Петербург, Василеостровский, Шкиперский проток, 19. Общая площадь квартиры - 52.8 кв. м. Тип проекта, по которому построен дом — Монолит, компания-застройщик — СЗ «Москворецкий дом», ПИК. Стоимость квартиры — 19 140 000 руб. Способы оплаты можно уточнить у продавца. Срок сдачи — 2 квартал 2027. Более подробная информация по телефону.
Инфоцентр новостроек
Инфоцентр новостроек
+7 (812) 424-49-09
Время работы 9:00 — 21:00
Посмотреть все спецпредложения
студия 20,60 м2 9 780 880
Этаж 7/8
СПБ, Шкиперский 19
Приморская
20 мин.
Строится
студия 21,30 м2 9 697 890
Этаж 1/12
СПБ, Шкиперский 19
Приморская
20 мин.
Строится
студия 21,50 м2 9 146 100
Этаж 1/12
СПБ, Шкиперский 19
Приморская
20 мин.
Строится
студия 22,30 м2 10 449 780
Этаж 9/12
СПБ, Шкиперский 19
Приморская
20 мин.
Сдан
студия 21,30 м2 9 697 890
Этаж 1/12
СПБ, Шкиперский 19
Приморская
20 мин.
Строится
студия 23,90 м2 10 095 360
Этаж 1/8
СПБ, Шкиперский 19
Приморская
20 мин.
Строится
студия 26,70 м2 12 015 000
Этаж 8/12
СПБ, Шкиперский 19
Приморская
20 мин.
Строится
студия 27,10 м2 12 831 850
Этаж 11/12
СПБ, Шкиперский 19
Приморская
20 мин.
Строится
1-комн. квартира 34,90 м2 17 125 430
Этаж 11/12
СПБ, Шкиперский 19
Приморская
20 мин.
Строится
1-комн. квартира 35,30 м2 17 575 870
Этаж 10/12
СПБ, Шкиперский 19
Приморская
20 мин.
Строится
1-комн. квартира 35,60 м2 17 856 960
Этаж 6/12 лоджия
СПБ, Шкиперский 19
Приморская
20 мин.
Строится
1-комн. квартира 35,90 м2 18 086 420
Этаж 7/12 лоджия
СПБ, Шкиперский 19
Приморская
20 мин.
Строится
Посмотреть 18 квартир в Шкиперский 19
2-комн. квартира 52,20 м2 20 869 560
Этаж 1/8
СПБ, Шкиперский 19
Приморская
20 мин.
Строится
2-комн. квартира 53,20 м2 20 333 040
Этаж 1/8
СПБ, Шкиперский 19
Приморская
20 мин.
Строится
2-комн. квартира 53,30 м2 21 634 470
Этаж 3/8
СПБ, Шкиперский 19
Приморская
20 мин.
Строится
2-комн. квартира 53,80 м2 22 240 920
Этаж 2/12 балкон
СПБ, Шкиперский 19
Приморская
20 мин.
Сдан
Посмотреть 50 квартир в Шкиперский 19
3-комн. квартира 73,90 м2 29 146 160
Этаж 10/12
СПБ, Шкиперский 19
Приморская
20 мин.
Сдан
3-комн. квартира 74,10 м2 27 994 980
Этаж 5/12
СПБ, Шкиперский 19
Приморская
20 мин.
Строится
3-комн. квартира 75,00 м2 33 067 500
Этаж 10/12
СПБ, Шкиперский 19
Приморская
20 мин.
Строится
3-комн. квартира 75,50 м2 24 152 450
Этаж 1/12
СПБ, Шкиперский 19
Приморская
20 мин.
Сдан
Посмотреть 23 квартиры в Шкиперский 19

Скидки и спецпредложения от застройщиков

Шкиперский 19 на карте

Выгодные предложения на новостройки

Отзывы о Шкиперский 19

Самый полезный отзыв
П
18 августа 2022
Оценка:
Мне понравился комплекс, на первый взгляд может показаться, что дорого, но увы это не область какая-та, а Питер, понятное дело цены отличаются.
Ответить
Полезный отзыв?
Самый новый отзыв
Р
30 ноября
Оценка:
Архитектурно красивые дома, все-таки видно, что серия Плюс у Пика. Планировки тоже отличные,большие, просторные - нам такая трешка была нужна. И окончательно к покупке нас склонило то, что первая очередь тут сдана, ключи получить можно было сразу после прохождения договора через Росреестр.
Ответить
Полезный отзыв?
Добавьте отзыв, заполнив личные данные, или сначала войдите на сайт, тогда информация будет автоматически взята из личного профиля.
Оценка*