





Жилой комплекс «Полис Новоселье» строят в поселке Новоселье Ломоносовского района Ленинградской области, недалеко от КАД, природного заказника Шунгеровский и Гореловского леса. Первые дома готовят к вводу в эксплуатацию во II квартале 2025 года.
Надежность застройщика
ГК «Полис» работает на рынке Санкт-Петербурга и Ленинградской области с 2010 года. В портфеле девелопера — 68 построенных дома, 16 детских садов, 4 школы и поликлиника. По данным Единого ресурса застройщиков, «Полис» входит в топ-10 застройщиков Ленобласти по объему текущего строительства.
Описание ЖК
Жилой комплекс комфорт-класса «Полис Новоселье» строится в городском поселке Новоселье (Ломоносовский района Ленобласти), недалеко от КАД, природного заказника Шунгеровский и Гореловского леса. Рядом с новостройкой есть автобусные остановки, общественный транспорт курсирует до станции метро «Проспект Ветеранов», ж/д станции Новый Петергоф и платформы Сергиево.
Ломоносовский район Ленинградской области граничит с Санкт-Петербургом и муниципальными образованиями Гатчинское, Волосовское, Кингисеппское и Сосновоборское. С северо-запада район примыкает к Финскому заливу. На территории района есть несколько промышленных предприятий, проходят множество автодорог, основная из которых — КАД.
Поселок Новоселье расположен на пересечении КАД и Красносельского шоссе, между Шунгеровским заказником и Гореловским лесом.
ЖК «Полис Новоселье» реализуется поэтапно. В составе первой очереди почти сданы два корпуса, вторая очередь будет состоять из трех корпусов. Высота домов — 12 этажей. В каждой парадной предусмотрены выходы во двор и на улицу, а коляски можно будет оставлять в специальном помещении.
Во внутренних дворах обустроят детские и спортивные площадки, для автомобилей построят отдельно стоящие многоуровневые наземные паркинги на 499 и 456 машино-мест.
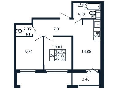
В начале июня 2025 года в ЖК «Полис Новоселье» продаются 288 квартир: от студий площадью 22,6 кв. м до вариантов с двумя комнатами и кухней-гостиной площадью 55,2 кв. м. Жилье продается с чистовой и предчистовой отделкой, цены — от 3,76 млн рублей. Купить квартиру от застройщика можно в ипотеку или рассрочку, доступен вариант trade-in.
Инфраструктура
Жилой комплекс заявлен как соответствующий концепции «город в городе» — на первых этажах корпусов запроектировано 140 коммерческих помещений, в которых откроются магазины, кафе, пункты выдачей заказов и другая полезная инфраструктура. Однако собственных детских садов и школ не предусмотрено.
В поселке Новоселье работают три общеобразовательные школы и несколько детских садов (в том числе частных), есть и другие объекты инфраструктуры. Зеленые зоны в окружении представлены Шунгеровским заказников и Гореловским лесом.
Плюсы и минусы
Локация, в которой строится ЖК «Полис Новоселье», активно развивается — в Новоселье строят много жилья и инфраструктуры, так что жители новостройки будут обеспечены всем необходимым. Еще один плюс проекта: квартиры продаются с отделкой, покупателям не придется тратить много времени на их обустройство.
Транспортная доступность локации достаточно неплохая: есть остановки автобусов и маршруток, съезд на КАД.
Станция метро «Проспект Ветеранов» → Автобус № 181 Областной (43 минуты в пути) → Остановка «Невская улица» → Пройти пешком 2 км (27 минут в пути)