Переверните экран
Поиск домов и коттеджей

Найдите идеальный дом или коттедж в Санкт-Петербурге и области

Найдите идеальный дом или коттедж в Санкт-Петербурге и области

Перейти к поиску
Новостройки Квартиры Ипотека Медиа О проекте Контакты Реклама на сайте Vk Youtube Telegram Дзен Продавцы и застройщики Коммерческие помещения Квартиры на карте Эксперты и авторы Машиноместа Акции от застройщиков Банки и программы Апартаменты Новостройки на карте 4-комнатные и более Готовые новостройки 3-комнатные Военная ипотека Покупателю Новостройки Санкт-Петербурга Видеообзор новостроек Семейная ипотека Аналитика рынка Панорамы новостроек 1-комнатные Субсидированная застройщиком Мнение эксперта Студии Ипотечный калькулятор Новости недвижимости Новостройки Ленинградской области IT-ипотека Квартиры со скидками до 25% Новостройки премиум-класса Новостройки бизнес-класса Дома и коттеджи Бизнес-центры Бизнес-центры в Санкт-Петербурге Бизнес-центры рядом с метро Строящиеся бизнес-центры Бизнес-центры класса A

ЖК Grona Lund (Грена Лунд)

Новый квартал Grona Lund возводится в Щеглово строительной компанией Bonava. Застройщик использует шведскую концепцию домостроения, согласно которой каркас корпусов выполняется из сборных ж/б элементов. Здания снабжены системой вытяжной вентиляции. Согласно проекту, на участке площадью 20 га появятся 33 дома высотой 6 этажей. Часть из них уже построена и введена в эксплуатацию.

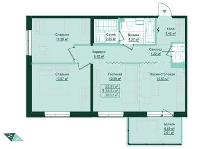
Комплекс вмещает квартиры с одной, двумя или тремя комнатами метражом от 39 до 91 кв. м. Высота потолков составляет 2,72 м. Во всех вариантах планировки предусмотрен балкон увеличенной площади. Часть квартир оборудована саунами. Жители первых этажей располагают отдельными выходами на террасу. На этажах выше размещены балконы с одинарным остеклением в алюминиевом профиле. Балконы с площадью 6-11 кв.м. имеют электророзетки и выпуск под установку светильника. Квартиры передаются с пластиковыми окнами, домофонами и счетчиками. В цокольных этажах находятся индивидуальные кладовые.

Шведский застройщик Bonava передал российские активы компании Star Development. Продажи временно приостановлены, до передачи прав новому владельцу.

Ленинградская область, Всеволожск
от 8.3 до 16.1 млн
 
Цены за квартиры от 2 февраля
по данным официального сайта
Звоните, мы ещё работаем!
Узнать об акциях
ЖК Grona Lund (Грена Лунд), м. Ладожская Фотографии
9
1

ЖК Grona Lund (Грена Лунд) - цены за квартиры от застройщика 2 февраля

1-комнатные
45.54 — 58.96 м2
8.3 — 10.8  млн руб.
2-комнатные
56.97 — 82.53 м2
9.9 — 14.6  млн руб.
3-комнатные
68.52 — 91.16 м2
11.8 — 16.1  млн руб.

Расположение

Регион Ленинградская область
Район Всеволожский район
Локация Всеволожск
Метро
Шоссе Дорога Жизни 10 км от КАД
Адрес
проезд Берёзовая Роща, 3
на карте

Как купить

ДДУ (договор долевого участия)
Договор купли-продажи

Характеристики

Застройщик
Срок сдачи
сдан корпус 1.2 (оч. 1)
сдан корпус 1.4 (оч. 3)
сдан корпус 1.5 (оч. 3)
Этажность
6
Высота потолка
2.72
Отделка
есть
Парковка
гостевая
Класс новостройки
комфорт
Рейтинг
3.8
Стадия строительства
выдача ключей + заселение корпус 1.2 (оч. 1)
выдача ключей + заселение корпус 1.4 (оч. 3)
выдача ключей + заселение корпус 1.5 (оч. 3)

Подробная информация

Новый квартал Grona Lund возводится в Щеглово строительной компанией Bonava. Застройщик использует шведскую концепцию домостроения, согласно которой каркас корпусов выполняется из сборных ж/б элементов. Здания снабжены системой вытяжной вентиляции. Согласно проекту, на участке площадью 20 га появятся 33 дома высотой 6 этажей. Часть из них уже построена и введена в эксплуатацию.

Комплекс вмещает квартиры с одной, двумя или тремя комнатами метражом от 39 до 91 кв. м. Высота потолков составляет 2,72 м. Во всех вариантах планировки предусмотрен балкон увеличенной площади. Часть квартир оборудована саунами. Жители первых этажей располагают отдельными выходами на террасу. На этажах выше размещены балконы с одинарным остеклением в алюминиевом профиле. Балконы с площадью 6-11 кв.м. имеют электророзетки и выпуск под установку светильника. Квартиры передаются с пластиковыми окнами, домофонами и счетчиками. В цокольных этажах находятся индивидуальные кладовые.

Шведский застройщик Bonava передал российские активы компании Star Development. Продажи временно приостановлены, до передачи прав новому владельцу.

сдан
строится
Задать вопрос
Выбирайте квартиру в ЖК Grona Lund по ценам от застройщика Quasar Development.
Этаж 2/6
ЛО, ЖК Grona Lund (Грена Лунд)
Ладожская
31 мин.
Строится
Этаж 2/6
ЛО, ЖК Grona Lund (Грена Лунд)
Ладожская
31 мин.
Строится
Этаж 1/6
ЛО, ЖК Grona Lund (Грена Лунд)
Ладожская
31 мин.
Строится
Этаж 2/6
ЛО, ЖК Grona Lund (Грена Лунд)
Ладожская
31 мин.
Строится
Посмотреть 41 квартира в ЖК Grona Lund
Этаж 2/6
ЛО, ЖК Grona Lund (Грена Лунд)
Ладожская
31 мин.
Строится
Этаж 1/6
ЛО, ЖК Grona Lund (Грена Лунд)
Ладожская
31 мин.
Строится
Этаж 1/6
ЛО, ЖК Grona Lund (Грена Лунд)
Ладожская
31 мин.
Строится
Этаж 1/6
ЛО, ЖК Grona Lund (Грена Лунд)
Ладожская
31 мин.
Строится
Посмотреть 57 квартир в ЖК Grona Lund
Этаж 4/6
ЛО, ЖК Grona Lund (Грена Лунд)
Ладожская
31 мин.
Строится
Этаж 2/6
ЛО, ЖК Grona Lund (Грена Лунд)
Ладожская
31 мин.
Строится
Этаж 1/6
ЛО, ЖК Grona Lund (Грена Лунд)
Ладожская
31 мин.
Строится
Этаж 2/6
ЛО, ЖК Grona Lund (Грена Лунд)
Ладожская
31 мин.
Строится
Посмотреть 45 квартир в ЖК Grona Lund
ЖК «Grona Lund»План расположения корпусов.Вид корпуса.Отделка фасада.Благоустроенная территория.Благоустроенная территория.Детская площадка.ЖК «Grona Lund».ЖК «Grona Lund».
Рассказать друзьям о ЖК Grona Lund
Копировать ссылку

Скидки и акции на новостройки Ленинградской области

Посмотреть все спецпредложения

ЖК Grona Lund (Грена Лунд) на карте

Как проехать

Метро «Ладожская» → Пройти пешком 230 метров (3 минуты) → Остановка «Метро «Ладожская» → Автобус 462, 462Р (41 минута в пути) → Остановка «Улица Шинников» → Пройти пешком 380 метров (5 минут)

Инфраструктура

В «Grona Lund» имеются парковочные площадки, а также места для хранения колясок и велосипедов. На территории квартала планируется возведение, спортивных площадок и центров, а также торговых объектов. Детский сад на 240 детей уже сдан в эксплуатацию. Через весь ЖК протянется сквер с пешеходными дорожками, скамейками и беседками.

Застройщик Quasar Development

Сданных
объектов
4
Строящихся
объектов
2
Рейтинг
Новострой-СПб
3.9
Сданных
вовремя
92%
Все новостройки застройщика

Отзывы о ЖК Grona Lund

Самый полезный отзыв
ОС
07 сентября 2018
Оценка:
Экология
Расположение
Нравится мне тут-тихо и спокойно, инфраструктуры необходимый минимум есть, не городской размах, конечно, но все есть. Часто приезжают дети с внуками, подумывают тоже перебраться в эти края-жаль, что нет дополнительных скидок на вторую квартиру
Ответить
Полезный отзыв?
Самый новый отзыв
А
05 июня 2021
Оценка:
Внешний вид фасада
Входные группы
Расположение
Транспортная доступность
Цены на квартиры растут, вот сейчас цены на однушки от 6 млн рублей, на двушки от 7 млн рублей, на трешки от 8 млн рублей
Ответить
Полезный отзыв?
Добавьте отзыв, заполнив личные данные, или сначала войдите на сайт, тогда информация будет автоматически взята из личного профиля.
Оценка*

Вопросы и ответы о ЖК Grona Lund

Н
Николина
26 августа 2020
есть студии здесь? интересует функциональная планировка. какие потолки? отделка?
Ответить
Р
Рита
27 августа 2020
Николина, здесь классные планировки квартир в шведском стиле, но студий по проекту нет. Все квартиры идут с белой отделкой, потолки 2,72 м.
Самый ценный ответ
Полезный ответ?
Задать вопрос
Напишие свой вопрос ниже — заполнив личные данные или войдите на сайт, тогда информация будет автоматически взята из личного профиля.