Переверните экран
Поиск бизнес центров

Найдите современный офис в деловых районах Санкт-Петербурга

Найдите современный офис в деловых районах Санкт-Петербурга

Перейти к поиску
Новостройки Квартиры Ипотека Медиа О проекте Контакты Реклама на сайте Vk Youtube Telegram Дзен Продавцы и застройщики Коммерческие помещения Квартиры на карте Эксперты и авторы Машиноместа Акции от застройщиков Банки и программы Апартаменты Новостройки на карте 4-комнатные и более Готовые новостройки 3-комнатные Военная ипотека Покупателю Новостройки Санкт-Петербурга Видеообзор новостроек Семейная ипотека Аналитика рынка Панорамы новостроек 1-комнатные Субсидированная застройщиком Мнение эксперта Студии Ипотечный калькулятор Новости недвижимости Новостройки Ленинградской области ИТ-ипотека Квартиры со скидками до 25% Новостройки премиум-класса Новостройки бизнес-класса Дома и коттеджи Коттеджные поселки в Санкт-Петербурге Коттеджные поселки в Ленинградской обл Готовые коттеджные поселки Строящиеся коттеджные поселки Коттеджные поселки у леса Коттеджные поселки у водоема Коттеджные поселки в ипотеку Бизнес-центры Коттеджи Ипотека со ставкой 0,1% Траншевая ипотека

ЖК «Старлайт»

В конце декабря 2023 года петербургская ГК «Лидер Групп» объявила об открытии продаж в своем новом проекте комфорт-класса – ЖК «Старлайт». Комплекс возводится в Красногвардейском районе Санкт-Петербурга, в Полюстрово, недалеко от железнодорожной станции «Новая Охта».

Проект комплекса подготовило архитектурное бюро «Б2» Феликса Буянова из Петербурга, которое отличается футуристичным дизайном зданий. Компания создала проекты для более чем десятка жилых комплексов, а также для торговых и бизнес-центров. Проект для «Старлайта» выделяет не только сами здания, но и внутреннее пространство. Достопримечательностью двора станет арт-подсветка, которая будет создавать проекцию звездного неба.

На общей галерее-стилобате ЖК разместятся три корпуса: первый, ступенчатый с одной стороны, будет высотой в семь этажей. Два других – это башни высотой 80 метров каждая (25 этажей).

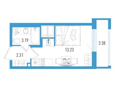
В комплексе запроектированы 708 квартир: от небольших студий до трехкомнатных квартир евроформата. В семиэтажном корпусе разместятся квартиры с террасами. Есть варианты с балконами, они будут с панорамным остеклением.

В комплексе можно выбрать лоты с любой отделкой: есть варианты с готовым ремонтом, предчистовой отделкой или без нее.

Высота потолков в проекте – 2,72 метра, квартиры идут с увеличенными окнами высотой 1,8 метра. Еще одной особенностью проекта станет коллекторная система отопления.

Для хранения колясок и велосипедов на первом этаже будет специальное помещение. Входные группы будут сделаны так, чтобы пропускать максимальное количество света, а попасть в холл с улицы можно будет при помощи IP-домофона.

На подземном этаже разместится паркинг на 200 машино-мест, в него можно будет попасть на лифте из любой секции жилого комплекса. Там же запроектированы кладовки. На территории комплекса также будет оборудована гостевая парковка со стороны Муринской дороги.

В стилобатной части ЖК разместятся различные коммерческие объекты. Кроме этого там будут открыты кабинеты психолога и врача-педиатра.

Продажа квартир ведется через счета эскроу.

Санкт-Петербург, Красногвардейский
от 4.4 до 17.8 млн
 
Цены за квартиры от 4 мая
по данным официального сайта
Акции в мае
ЖК «Старлайт», м. Девяткино Фотографии
6

ЖК «Старлайт» - цены за квартиры от застройщика 4 мая

студии
19.02 — 23.14 м2
4.4 — 6.3  млн руб.
1-комнатные
27.86 — 37.08 м2
7.3 — 10.2  млн руб.
2-комнатные
47.78 — 51.74 м2
12.4 — 14.4  млн руб.
3-комнатные
63.28 — 65.54 м2
15.2 — 17.8  млн руб.

Расположение

Регион Санкт-Петербург
Район Красногвардейский
Метро
Адрес
Муринская дорога, 69
на карте

Как купить

ДДУ с эскроу-счетом

Характеристики ЖК «Старлайт» (корпус 1)

Застройщик
Срок сдачи
1 квартал 2027 года корпус 1
Презентация
Количество подъездов
3
Количество этажей
7-25
Высота потолка
2.74
Лифт
есть
Грузовой лифт
есть
Отделка
есть
Рядом водоем
да
Наличие ком помещений на первых этажах
есть
Класс новостройки
комфорт
Стадия строительства
отделка фасада
Парковка
подземная вместительность 200
гостевая вместительность 58

Подробная информация

В конце декабря 2023 года петербургская ГК «Лидер Групп» объявила об открытии продаж в своем новом проекте комфорт-класса – ЖК «Старлайт». Комплекс возводится в Красногвардейском районе Санкт-Петербурга, в Полюстрово, недалеко от железнодорожной станции «Новая Охта».

Проект комплекса подготовило архитектурное бюро «Б2» Феликса Буянова из Петербурга, которое отличается футуристичным дизайном зданий. Компания создала проекты для более чем десятка жилых комплексов, а также для торговых и бизнес-центров. Проект для «Старлайта» выделяет не только сами здания, но и внутреннее пространство. Достопримечательностью двора станет арт-подсветка, которая будет создавать проекцию звездного неба.

На общей галерее-стилобате ЖК разместятся три корпуса: первый, ступенчатый с одной стороны, будет высотой в семь этажей. Два других – это башни высотой 80 метров каждая (25 этажей).

В комплексе запроектированы 708 квартир: от небольших студий до трехкомнатных квартир евроформата. В семиэтажном корпусе разместятся квартиры с террасами. Есть варианты с балконами, они будут с панорамным остеклением.

В комплексе можно выбрать лоты с любой отделкой: есть варианты с готовым ремонтом, предчистовой отделкой или без нее.

Высота потолков в проекте – 2,72 метра, квартиры идут с увеличенными окнами высотой 1,8 метра. Еще одной особенностью проекта станет коллекторная система отопления.

Для хранения колясок и велосипедов на первом этаже будет специальное помещение. Входные группы будут сделаны так, чтобы пропускать максимальное количество света, а попасть в холл с улицы можно будет при помощи IP-домофона.

На подземном этаже разместится паркинг на 200 машино-мест, в него можно будет попасть на лифте из любой секции жилого комплекса. Там же запроектированы кладовки. На территории комплекса также будет оборудована гостевая парковка со стороны Муринской дороги.

В стилобатной части ЖК разместятся различные коммерческие объекты. Кроме этого там будут открыты кабинеты психолога и врача-педиатра.

Продажа квартир ведется через счета эскроу.

строится
Задать вопрос
Выбирайте квартиру в ЖК «Старлайт» по ценам от застройщика Лидер Групп.
Этаж 24/25
СПБ, ЖК «Старлайт»
Девяткино
34 мин.
Строится
Этаж 25/25
СПБ, ЖК «Старлайт»
Девяткино
34 мин.
Строится
Этаж 18/25
СПБ, ЖК «Старлайт»
Девяткино
34 мин.
Строится
Этаж 9/25
СПБ, ЖК «Старлайт»
Девяткино
34 мин.
Строится
Посмотреть 30 квартир в ЖК «Старлайт»
Этаж 7/25
СПБ, ЖК «Старлайт»
Девяткино
34 мин.
Строится
Этаж 7/25
СПБ, ЖК «Старлайт»
Девяткино
34 мин.
Строится
Этаж 7/25
СПБ, ЖК «Старлайт»
Девяткино
34 мин.
Строится
Этаж 23/25
СПБ, ЖК «Старлайт»
Девяткино
34 мин.
Строится
Посмотреть 10 квартир в ЖК «Старлайт»
Этаж 23/25
СПБ, ЖК «Старлайт»
Девяткино
34 мин.
Строится
2-комн. квартира 47,86 м2 13 161 500
Этаж 9/25
СПБ, ЖК «Старлайт»
Девяткино
34 мин.
Строится
Этаж 23/25
СПБ, ЖК «Старлайт»
Девяткино
34 мин.
Строится
Этаж 22/25
СПБ, ЖК «Старлайт»
Девяткино
34 мин.
Строится
Посмотреть 10 квартир в ЖК «Старлайт»
3-комн. квартира 63,28 м2 15 187 200
Этаж 2/25
СПБ, ЖК «Старлайт»
Девяткино
34 мин.
Строится
3-комн. квартира 63,82 м2 17 550 500
Этаж 22/25
СПБ, ЖК «Старлайт»
Девяткино
34 мин.
Строится
Этаж 9/25
СПБ, ЖК «Старлайт»
Девяткино
34 мин.
Строится
Этаж 23/25
СПБ, ЖК «Старлайт»
Девяткино
34 мин.
Строится
Посмотреть 5 квартир в ЖК «Старлайт»
ЖК «Старлайт»Проект разработан архитектурным бюро «Б2» Феликса Буянова, известного своим футуристическим почерком и передовыми взглядами на урбанистику.Корпуса объеденены стилобатом, в котором разместится инфраструктура шаговой доступности.Арт-подсветка с проекцией звёздного неба.Во дворе запланированы детская площадка, спортивная площадка и зоны отдыха.Зона отдыха.
Рассказать друзьям о ЖК «Старлайт»
Копировать ссылку

Скидки и акции на новостройки Санкт-Петербурга

Посмотреть все спецпредложения

ЖК «Старлайт» на карте

Как проехать

Станция метро «Гражданский проспект» → автобус № 177 (в пути 8 минут) → Остановка «Улица Корнея Чуковского» → пройти пешком 340 м (4 минуты)

Инфраструктура

Комплекс строится в локации с развитой инфраструктурой. В соседнем здании находится школа, с другой стороны он соседствует с Новоохтинским парком с его скейт-парком и площадкой для тренировки собак. За семь минут от ЖК можно дойти до детского сада и отдела полиции (они находятся через дорогу), еще одного детского сада и школы, торгового центра. В соседних домах работают различные сетевые магазины.

Застройщик Лидер Групп

Сданных
объектов
29
Строящихся
объектов
9
Рейтинг
Новострой-СПб
4.3
Сданных
вовремя
56%
Все новостройки застройщика

Отзывы о ЖК «Старлайт»

Самый полезный отзыв
МТ
10 февраля 2025
Оценка
Достоинства
Транспортная доступность
Социальная инфраструктура
Планировки
Способы покупки
Двор, окружение
Расположение
Рядом течет река Охта — пусть и простенькая, но все равно приятно проводить время у воды, гуляя по берегу или наслаждаясь пикниками на свежем воздухе. Парадоксально, но до метро тоже можно дойти пешком всего за 20 минут. Хотя могли бы чувствовать себя вдали от городской суеты, просто прогуливаясь, мы легко можем добраться до сердца города.
Ответить
Самый новый отзыв
С
27 октября 2025
Оценка
Нравится, что тут будет много зеленых зон, речка. Да и сам проект архитектурой привлекает внимание. Но не знаю про соседние дома и их расположение, как это все в итоге увяжется.
Ответить

Оставить отзыв

Добавьте отзыв, заполнив личные данные, или сначала войдите на сайт, тогда информация будет автоматически взята из личного профиля.

Оценка*

Вопросы и ответы о ЖК «Старлайт»

Задать вопрос

Напишите свой вопрос ниже — заполнив личные данные или войдите на сайт, тогда информация будет автоматически взята из личного профиля.