В условиях высокой конкуренции и непростой экономической обстановки застройщикам приходится оперативно реагировать на постоянно меняющиеся запросы покупателей. Так появились квартиры-трансформеры – пока еще новое явление на рынке российской недвижимости. Новострой-СПб рассказывает, что это за продукт, кому он подходит и сколько стоит такое жилье.
Квартира-трансформер, ее специфика и особенности
Квартира-трансформер (или квартира с гибкой планировкой) – это многофункциональное жилое пространство, которое может видоизменяться под потребности конкретной семьи. Нужный эффект достигается при помощи трансформируемой мебели и передвижных перегородок, либо за счет того, что возможность перепланировки предусмотрена исходным проектом.
Изначально такое жилье появилось на Западе, где очень ценятся небольшие, но максимально комфортные и «полезные» площади. Благодаря особым раздвижным механизмам на 35-45 квадратных метрах размещается спальня, гостиная, кухня, столовая, гардеробная и даже кабинет. Получается некий универсальный продукт «5-6 в 1».
В России подобных решений пока нет, как нет и четкого определения термина «квартира-трансформер». Законодательно он не закреплен, поэтому каждый застройщик вкладывает в него свой смысл, комментирует Надежда Калашникова, директор по развитию Компании Л1.
Большинство сходится во мнении, что «трансформеры» – это квартиры евроформата с большими кухнями-гостиными, которым можно придать дополнительный функционал. Например, установить легкую ширму и выделить спальную зону, или отделить полностью кухонное пространство от остального помещения.
Другие относят к трансформерам жилье со свободной планировкой, хотя такие варианты встречаются все реже. Покупатели поняли, что самостоятельное зонирование всей квартиры – это довольно хлопотно и дорого, и предпочитают выбирать недвижимость с базовыми, но легко изменяемыми планировками.
«Квартира-трансформер по своей сути – это способ создания полифункционального пространства в малогабаритных лотах. Особенно часто встречается в сфере дизайна интерьера, где с помощью нестандартных решений вроде мобильной или трансформируемой мебели оптимизируются свободные площади. Популярность такого жилья связана с тем, что квартира сегодня – это не просто квадратные метры. Она должна решать разные задачи жильцов, исходя из их индивидуальных потребностей и образа жизни»
Наталия Коротаевская, директор по маркетингу и рекламе Группы «Аквилон»
Между тем квартиры-трансформеры, лоты евроформата и жилплощади со свободными планировками – это все-таки разные виды недвижимости, настаивает Ян Фельдман, директор по маркетингу ГК «Ленстройтрест». В случае с квартирами-трансформерами речь идет о пространстве, где есть внутренние перегородки, но их расположение можно изменить в зависимости от текущих предпочтений – убрать или, наоборот, добавить.
При этом какую бы конфигурацию покупатель ни выбрал, в помещениях всегда будет достаточно света, комфорта, а также метража для расстановки дополнительной мебели.
Квартиры же свободной планировки подразумевают отсутствие несущих стен (в них есть только ограниченное количество несущих колонн). Покупатель получает открытое пространство, которое может оборудовать в соответствии со своими предпочтениями.
Тем не менее, к трансформерам можно отнести некоторые квартиры с европланировками, но не все, считает Роман Мирошников, исполнительный директор компании «Ойкумена». Эффективное зонирование пространства зависит от количества окон. Немалую роль играет и площадь балкона: увеличенное балконное пространство становится, по сути, еще одним отдельным помещением – кабинетом, мастерской или игровой комнатой. При этом такие метры стоят дешевле жилых – при их оплате применяется понижающий коэффициент.
«То, что сейчас на рынке Петербурга называется квартирами-трансформерами, по всей видимости, лишь маркетинговый ход. За ними скрываются вполне обычные квартиры с более-менее продуманным зонированием, позволяющим по-разному организовывать пространство. Либо так именуются свободные планировки без межкомнатных перегородок, в которых нужно самому решить – где и какие ставить стены. Впрочем, даже такая квартира не может стать полностью трансформирующейся, так как существуют определенные ограничения. Например, неизменным должно оставаться расположение «мокрых зон» (кухни и санузлов), в противном случае нужно будет согласовывать перепланировку»
Пресс-служба компании LEGENDA
Преимущества и недостатки квартир-трансформеров
Главное преимущество квартир-трансформеров заключается в их многофункциональности: в любой момент пространство можно поделить и использовать, исходя из индивидуальных потребностей и предпочтений жильцов. При помощи мобильных заграждений получится выделить детскую или игровую комнату, сделать рабочий кабинет или дополнительную мини-спальню.
«Квартира-трансформер позволяет организовать пространство под конкретный сценарий жизни. Например, сейчас покупатель заинтересован в «трешке», поскольку в его семье растут дети и ему важно наличие трех небольших комнат для каждого члена семьи. Через несколько лет дети выросли и две комнаты освободились. Появилась возможность объединить их в одно пространство, но более просторное. Также можно действовать наоборот – из большого помещения сделать несколько компактных комнат под конкретный функционал», – рассказывает Ян Фельдман.
Из минусов таких квартир можно отметить лишь некоторую нехватку свободных площадей. Однако, благодаря продуманности и эргономичности такого жилья, она почти не ощущается. Также к недостаткам можно отнести и то, что зонирование пространства и установка гипсокартонных перегородок потребует проведения минимального ремонта, сопряженного с временными и денежными затратами.
«Квартира-трансформер, с одной стороны, расширяет возможности клиентов по выбору жилья, отвечающего индивидуальным потребностям семьи. Еще на этапе приобретения клиент укажет на ту планировку, которая ему нравится, не меняя при этом площадные характеристики, расположение и выбранный этаж. Это положительно влияет и на эмоциональную составляющую столь крупной и важной покупки.
С другой стороны, наличие богатого выбора является еще и минусом: затягивается процесс выбора квартиры, появляются сомнения, метания. Поэтому в такой ситуации количество вариантов для планировки жилого пространства должно быть ограничено двумя-тремя. Cегодня такие предложения единичны. Не все застройщики готовы прорабатывать квартирография в нескольких вариантах: это увеличивает их затраты, но вряд ли отражается на доходах»
Ольга Ульянова, директор департамента рекламы и маркетинга ГК «Полис Групп»
Стоимость квартир-трансформеров
Квартиры с классической планировкой и трансформеры не отличаются по стоимости. Цена на недвижимость формируется в первую очередь за счет метража, локации, класса новостройки, видовых характеристик объекта, уровня и качества сопутствующей инфраструктуры. Планировки в этот перечень не входят.
Согласование перепланировки
В последнее время ходят слухи, что за перепланировками станут следить особо тщательно: грядут проверки, штрафы и предписания от соответствующих инстанций с требованиями «вернуть как было». Не ожидают ли владельцев квартир-трансформеров сложности из-за новомодных конфигураций квартир?
Эксперты уверяют, что опасения напрасны. Все предусмотренные застройщиками перепланировки выполнены строго по нормативам. Даже если собственник будет в дальнейшем переобустраивать свое жилье по заранее готовому проекту, то это не вызовет никаких затруднений. Если же речь пойдет об установке/демонтаже внутренних ненесущих перегородок в квартире-трансформере, то их не нужно согласовывать.
«Для изменения планировки в квартире не обязательно ставить капитальные перегородки, а значит, и согласовывать перепланировку. Сегодня достаточно много вариантов мобильных перегородок, дверей-купе, ширм, которые позволяют обособить одно помещение от другого. Но, например, если меняется состав семьи и необходимо одну из комнат отделить и изолировать от других с шумоизоляцией, тогда не обойтись без возведения капитальных стен, а значит, и согласования нового плана квартиры и проведения работ»
Роман Мирошников, исполнительный директор компании «Ойкумена»
Петербургские трансформеры
Как уже говорилось ранее, у каждого девелопера свои представления о квартирах-трансформерах. Однако в Петербурге квартиры «Трансформер» первой предложила компания ЮИТ – и даже зарегистрировала соответствующий товарный знак.
Наряду с базовым вариантом планировки, такое жилье имеет две-три альтернативных модификации. Реализуются они путем изменения конфигурации полноценных внутриквартирных ненесущих перегородок.




Таким образом, в квартире можно поменять количество комнат, поясняет Вадим Лавров, руководитель направления маркетингового анализа сегмента «Жилищное строительство, Россия» концерна ЮИТ. Первоначально выбранная планировка будет выполнена и зарегистрирована к моменту ввода дома в эксплуатацию, но в будущем собственник оставляет за собой право трансформировать квартиру на основе одного из уже готовых вариантов планировки.
«Группа ЛСР» разработала продукт под названием «Супер Новая». Он представляет собой жилые помещения, где оптимально зонировать пространство помогают дополнительные проемы и продуманное соотношение стен. В таких квартирах удобно использовать встроенную и трансформирующуюся мебель. Такие лоты составляют большую часть в жилом комплексе «Цветной город». В продажу они поступили осенью 2018 года.




У компании Bonava тоже есть проекты с квартирами-трансформерами. В жилом комплексе Skandi Klubb так назвали небольшие квартиры с круговыми планировками, где в центре находится санузел, а по периметру – пространство со свободным зонированием. Подобная планировка позволяет гибко подходить к организации пространства, снимает проблему длинных неуютных коридоров в квартире, увеличивает и делает просторнее жилую площадь, поясняет Мария Черная, генеральный директор ООО «Бонава Санкт-Петербург».
Квартира с круговой планировкой от Bonava
Полноценные квартиры-трансформеры имеются и в шестой очереди проекта Magnifika Lifestyle. Концепция DUOS дает возможность превратить трехкомнатный лот в два самостоятельных – одно- и двухкомнатную квартиру. Несложная трансформация позволяет жителям менять условия жизни в зависимости от текущих потребностей.
Изменился состав семьи? Модифицировать конфигурацию жилых помещений очень легко. Выросли дети – можно добавить спальню. Нет острой потребности в площадях – клиент отделит часть помещения и сдаст в наем, получая доход от своего имущества. Фактически покупателям предоставляется техническая возможность объединять и разъединять квартиры. Правда, для кого-то может стать минусом необходимость заниматься оформлением прав на такие объекты, отмечает Мария Черная.
В проекте «Приморский квартал» от компании «Мегалит-Охта Групп» в качестве квартир-трансформеров представлены шеф-квартиры с необычной планировкой, разработанной специально для больших и многодетных семей, а также семей, состоящих из нескольких поколений, рассказывает руководитель проектов Денис Казберов.
Решение представляет собой сплит из двух квартир: две кухни и спальни, общая просторная гостиная и четыре балкона. Такая планировка легко адаптируется под потребности, образ жизни и состав ее жильцов. Это может быть жилье для двух или даже трех поколений одной семьи. У каждого будет своя кухня, спальня и общая комната для проведения совместного досуга. Или, например, вторую кухню можно превратить в рабочий кабинет, гостевую спальню, дополнительную детскую или даже мастерскую, ведь там есть водопровод, воздуховод и естественное освещение.


Группа ЦДС реализует квартиры в одном зафиксированном в Росреестре варианте. Однако в широком понимании практически все квартиры у компании – трансформеры. Это означает, что в большинстве случаев они лишены межкомнатных несущих стен, поэтому собственник может организовать пространство по своему усмотрению, поясняет Наталья Кукушкина, главный специалист по маркетингу Группы ЦДС.
Планировки квартир максимально адаптивны. Например, в большой кухне-гостиной может быть два окна, что при необходимости позволит жителям разделить пространство на два самостоятельных помещения. Если в квартире две спальни, то часто они имеют разный размер, например, одна побольше – 15-16 кв. м, вторая поменьше. Даже в «однушках» и студиях есть пространство для маневра.
Классическую «однушку» можно легко превратить в модный опенспейс, если убрать перегородку, а в студии с двумя окнами есть возможность выделить приватную спальню.
В Компании Л1 к квартирам-трансформерам также относится жилье, которое легко переделать под нужды семьи. Например, просторные, площадью более 40 квадратов, студии в ЖК «Маршал». Такая квартира имеет два окна, поэтому ее можно оформить как студию, с единым пространством, или установить перегородку и превратить в полноценную «однушку».
Другой вариант – трехкомнатная квартира в ЖК «Классика. Дом для души». Здесь есть полноценная 35-метровая гостиная с тремя окнами. Помещение кухни отделено. Гостиную можно оставить единым пространством или поделить на меньшее, выделив дополнительную спальню или кабинет.
К трансформерам можно отнести и квартиры с утепленными лоджиями. Их можно превратить не только в место для отдыха, но и небольшой спортзал или обустроить здесь рабочее место, добавляет Надежда Калашникова.
В проектах ГК «Ленстройтрест» есть квартиры-трансформеры с опцией SOTA. Это комната размером около 5-7 кв. м, в которой покупатель может заказать обустройство кабинета, спортзала, кладовой, мастерской или помещения другого функционала. Всего разработано 12 готовых решений. В основе SOTA – инженерное обеспечение. Для каждого из вариантов предусмотрен специализированный набор систем вентиляции, кондиционирования, отопления, электроснабжения и освещения. Все квартиры достаточно компактны, что помогает не переплачивать за лишние метры.


У Группы «Аквилон» существует оригинальный подход к проектированию – «Разумные метры». Он позволяет создавать планировки, где максимально эффективно использован каждый квадратный метр. Компания отказалась от длинных и узких коридоров, зато предусматривает большие кухни или объединенные кухни-гостиные. Квартиры спроектированы так, чтобы у каждого члена семьи было личное пространство.
Обязательное требование к планировке – наличие встроенных систем хранения (ниши, гардеробные, постирочные). Например, в квартирах-студиях в ЖК комфорт-класса «Аквилон Stories», строящемся в Кудрово, есть ниши для установки шкафа-купе или организации гардеробной, а также большие балконы глубиной 1,8 м, которые можно использовать как рабочее место или зону для отдыха.
Работая над увеличением функциональности жилой среды, компания внедрила во все свои новые проекты сити-боксы. Это индивидуальные кладовые для хранения вещей расположенные на подземном этаже, с возможностью спуска на лифте.
Компания «Терминал-Ресурс» при планировании квартирографии малоэтажных жилых комплексов «Образцовые кварталы» также сделала выбор в пользу оптимального использования квадратных метров. Там есть просторные кухни, высокие потолки и раздельные санузлы. И нет узких коридоров, маленьких комнат и огромного количества перегородок.
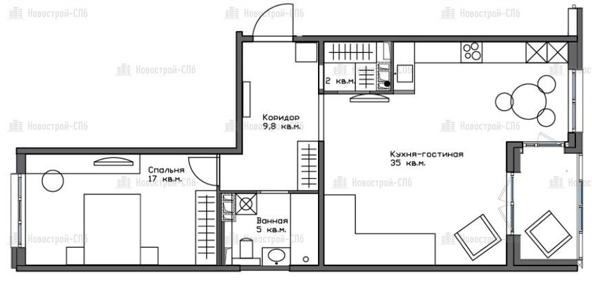
Покупателю предстоит сделать собственный выбор: объединить или разделить кухню с гостиной, площадь которой достигает 35 кв. м. Даже если выделить дополнительную изолированную комнату, то площадь кухни все равно составит от 9 до 15 кв. м. Позже планировка может быть изменена путем возведения или сноса ненесущей перегородки.



Есть еще одна особенность «Образцовых кварталов» – мансардный этаж с высотой потолков более 4 метров. Такое планировочное решение позволяет создать интересные и практичные дизайн-проекты. Например, можно организовать детский или спортивный уголок, обустроить вдоль стены библиотеку или места для хранения, рассказывает Елена Тян, руководитель отдела продаж «Терминал-Ресурс».
Девелопер LEGENDA предлагает свыше 500 планировочных решений – это самый большой ассортимент на рынке недвижимости Петербурга. Планировки разработаны с учетом разных категорий покупателей с самыми разными потребностями и жизненными сценариями.



В квартирах предусматривается максимально возможный комплект функций (гардеробные, прачечные, отдельные кухни, хозяйственные блоки), выбор которых остается за покупателем. Перепланировок в таких квартирах практически не бывает – в них просто нет необходимости.
Читайте также
Покупаем две, делаем одну: как грамотно купить квартиры для объединения
Автор: Евгения Рекшан
Дата публикации 22 апреля 2021
Отзывы
дате добавления