Переверните экран
Поиск бизнес центров

Найдите современный офис в деловых районах Санкт-Петербурга

Найдите современный офис в деловых районах Санкт-Петербурга

Перейти к поиску
Новостройки Квартиры Ипотека Медиа О проекте Контакты Реклама на сайте Vk Youtube Telegram Дзен Продавцы и застройщики Коммерческие помещения Квартиры на карте Эксперты и авторы Машиноместа Акции от застройщиков Банки и программы Апартаменты Новостройки на карте 4-комнатные и более Готовые новостройки 3-комнатные Военная ипотека Покупателю Новостройки Санкт-Петербурга Видеообзор новостроек Семейная ипотека Аналитика рынка Панорамы новостроек 1-комнатные Субсидированная застройщиком Мнение эксперта Студии Ипотечный калькулятор Новости недвижимости Новостройки Ленинградской области ИТ-ипотека Квартиры со скидками до 25% Новостройки премиум-класса Новостройки бизнес-класса Дома и коттеджи Коттеджные поселки в Санкт-Петербурге Коттеджные поселки в Ленинградской обл Готовые коттеджные поселки Строящиеся коттеджные поселки Коттеджные поселки у леса Коттеджные поселки у водоема Коттеджные поселки в ипотеку Бизнес-центры Коттеджи Ипотека со ставкой 0,1% Траншевая ипотека

ЖК «Слобода»

«Слобода» — малоэтажный жилой квартал комфорт-класса, в составе которого будет открыт детский сад и собственный приватный парк с прогулочной аллеей. ЖК располагается в пригороде Гатчины, в деревне Малое Верево. Это экологически благополучная локация вдали от плотной городской застройки, которая подойдет тем, кто ценит тишину, размеренный ритм жизни и близость к природе.

Квартал находится на большом удалении от города, поэтому подойдет тем, кто часто пользуется личным авто и готов к длительным ежедневным поездкам. До Киевского шоссе — около 10 минут езды, что обеспечивает быстрый доступ к Петербургу: по шоссе до КАД можно доехать за 15 минут, до большинства районов города — за 40 минут. Всего 10 минут займет дорога до центра Гатчины с полноценной городской инфраструктурой и большими парками. Общественный транспорт доступен, но менее удобен: ближайшая остановка находится в 25 минутах пешком, от нее идут маршруты до станции метро «Московская» и Гатчины.

Малоэтажный квартал будет строиться в три этапа и состоять из корпусов до четырех этажей. Невысокая застройка создает ощущение простора и повышает приватность. Аккуратные фасады из клинкерного кирпича естественных оттенков гармонично сочетаются с природным окружением. Дизайнерские холлы в светлой палитре формируют аккуратное и спокойное первое впечатление. Несмотря на малую этажность, в домах будут колясочные и лифты, что особенно важно для семей с маленькими детьми.

Личные автомобили жители смогут оставить на наземной парковке, которая, как и вся внутренняя территория, находится под постоянным видеонаблюдением. Дворы домов объединены в приватный парк с прогулочной аллеей, проходящей вдоль всего квартала. Там можно прогуляться, отдохнуть на скамейке, выйти на пробежку или прогулку с питомцем. Для детей будет установлена игровая площадка с рельефным ландшафтом, лабиринтом, горками и качелями.

В проекте представлены разные форматы: как компактные студии для одного человека или пары, так и семейные евро-трехкомнатные квартиры, где будет достаточно места для совместного отдыха, работы и учебы. Все квартиры передаются с чистовой отделкой: выполнены основные работы, подключены коммуникации — поэтому можно сэкономить на ремонте и быстро переехать.

Ленинградская область, Малое Верево
от 4.5 до 8.8 млн
 
Цены за квартиры от 30 апреля
по данным официального сайта
Узнать об акциях
ЖК «Слобода», м. Московская Фотографии
7

ЖК «Слобода» - цены за квартиры от застройщика 30 апреля

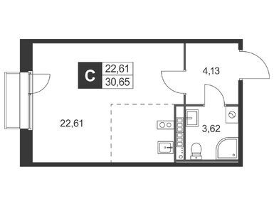
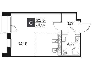
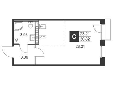
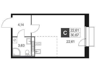
студии
30.13 — 32.78 м2
4.5 — 5  млн руб.
1-комнатные
32.73 — 44.87 м2
5.1 — 7  млн руб.
2-комнатные
43.44 — 55.37 м2
6.7 — 8.8  млн руб.

Расположение

Регион Ленинградская область
Район Гатчинский район
Локация Малое Верево
Метро
Ж/Д-станция
Шоссе Киевское
Адрес
ул. Кутышева
на карте

Характеристики

Срок сдачи
4 квартал 2027 года корпус 1
4 квартал 2027 года корпус 2
4 квартал 2027 года корпус 3
Этажность
4
Высота потолка
2.64 — 3.24
Парковка
наземная
гостевая
Класс новостройки
комфорт
Рейтинг
3.8
Стадия строительства
котлован/фундамент корпус 1
уточняется корпус 2
уточняется корпус 3

Подробная информация

«Слобода» — малоэтажный жилой квартал комфорт-класса, в составе которого будет открыт детский сад и собственный приватный парк с прогулочной аллеей. ЖК располагается в пригороде Гатчины, в деревне Малое Верево. Это экологически благополучная локация вдали от плотной городской застройки, которая подойдет тем, кто ценит тишину, размеренный ритм жизни и близость к природе.

Квартал находится на большом удалении от города, поэтому подойдет тем, кто часто пользуется личным авто и готов к длительным ежедневным поездкам. До Киевского шоссе — около 10 минут езды, что обеспечивает быстрый доступ к Петербургу: по шоссе до КАД можно доехать за 15 минут, до большинства районов города — за 40 минут. Всего 10 минут займет дорога до центра Гатчины с полноценной городской инфраструктурой и большими парками. Общественный транспорт доступен, но менее удобен: ближайшая остановка находится в 25 минутах пешком, от нее идут маршруты до станции метро «Московская» и Гатчины.

Малоэтажный квартал будет строиться в три этапа и состоять из корпусов до четырех этажей. Невысокая застройка создает ощущение простора и повышает приватность. Аккуратные фасады из клинкерного кирпича естественных оттенков гармонично сочетаются с природным окружением. Дизайнерские холлы в светлой палитре формируют аккуратное и спокойное первое впечатление. Несмотря на малую этажность, в домах будут колясочные и лифты, что особенно важно для семей с маленькими детьми.

Личные автомобили жители смогут оставить на наземной парковке, которая, как и вся внутренняя территория, находится под постоянным видеонаблюдением. Дворы домов объединены в приватный парк с прогулочной аллеей, проходящей вдоль всего квартала. Там можно прогуляться, отдохнуть на скамейке, выйти на пробежку или прогулку с питомцем. Для детей будет установлена игровая площадка с рельефным ландшафтом, лабиринтом, горками и качелями.

В проекте представлены разные форматы: как компактные студии для одного человека или пары, так и семейные евро-трехкомнатные квартиры, где будет достаточно места для совместного отдыха, работы и учебы. Все квартиры передаются с чистовой отделкой: выполнены основные работы, подключены коммуникации — поэтому можно сэкономить на ремонте и быстро переехать.

Задать вопрос
Выбирайте квартиру в ЖК «Слобода» по ценам от застройщика СЗ «Слобода Верево».
Этаж 1/4
ЛО, ЖК «Слобода»
Московская
25 мин.
Строится
Этаж 3/4
ЛО, ЖК «Слобода»
Московская
25 мин.
Строится
Этаж 2/4
ЛО, ЖК «Слобода»
Московская
25 мин.
Строится
студия 30,82 м2 5 048 971
Этаж 2/4
ЛО, ЖК «Слобода»
Московская
25 мин.
Строится
Посмотреть 24 квартиры в ЖК «Слобода»
Этаж 4/4
ЛО, ЖК «Слобода»
Московская
25 мин.
Строится
1-комн. квартира 34,54 м2 5 656 997
Этаж 2/4
ЛО, ЖК «Слобода»
Московская
25 мин.
Строится
Этаж 3/4
ЛО, ЖК «Слобода»
Московская
25 мин.
Строится
Этаж 3/4
ЛО, ЖК «Слобода»
Московская
25 мин.
Строится
Посмотреть 22 квартиры в ЖК «Слобода»
Этаж 4/4
ЛО, ЖК «Слобода»
Московская
25 мин.
Строится
2-комн. квартира 55,25 м2 8 702 190
Этаж 1/4
ЛО, ЖК «Слобода»
Московская
25 мин.
Строится
2-комн. квартира 55,37 м2 8 836 733
Этаж 3/4
ЛО, ЖК «Слобода»
Московская
25 мин.
Строится
ЖК «Слобода»Строительство жилого квартала осуществляется в три этапа, высота зданий не превышает четырех этажей.На первых этажах зданий откроются магазин, кофейня, аптека и салон красоты.Наземная парковка.Дизайнерские холлы, созданные по индивидуальному проекту.Колясочные,велосипедные.
Рассказать друзьям о ЖК «Слобода»
Копировать ссылку

Скидки и акции на новостройки Ленинградской области

Посмотреть все спецпредложения

ЖК «Слобода» на карте

Как проехать

Станция метро «Московская» → пройти 238 метров (3 минуты) → Остановка «Московская площадь» → Маршрутное такси № К18, К18А, К100 (41 минута в пути) → Остановка «Большое Верево» → пройти 2000 метров (26 минут)

Инфраструктура

С учетом удаленности от города кварталу нужно быть самодостаточным. На первых этажах откроются магазин, кофейня, аптека, салон красоты, поэтому базовые повседневные сервисы будут в пешей доступности. Прямо во дворе будет работать собственный детский сад на 210 мест, а в 30 минутах ходьбы уже принимают учеников детский сад и муниципальная школа.

За 15 минут на авто можно доехать до Гатчины с полноценной городской средой: магазинами, медициной, ресторанами, сервисами, развлечениями и парками. На отдых в выходные можно выехать в пригороды юга Ленобласти: до Пушкина, Павловска, Стрельны и Петергофа всего 30–50 минут езды.

Застройщик СЗ «Слобода Верево»

Empty image
Строящихся
объектов
1
Рейтинг
Новострой-СПб
4
Подробнее о застройщике

Отзывы о ЖК «Слобода»

Самый новый отзыв
ММ
02 апреля
Оценка
Достоинства
Экология
Двор, окружение
Нормальный малоэтажный кирпич в пригороде Гатчины. Тихо, тепло, до Питера можно быстро долететь на электричке за 40 минут. Базовая инфраструктура под боком, остальное — в 10 минутах езды. Хороший вариант для тех, кто ищет бюджетное жилье на юге.
Ответить

Оставить отзыв

Добавьте отзыв, заполнив личные данные, или сначала войдите на сайт, тогда информация будет автоматически взята из личного профиля.

Оценка*

Вопросы и ответы о ЖК «Слобода»

Задать вопрос

Напишите свой вопрос ниже — заполнив личные данные или войдите на сайт, тогда информация будет автоматически взята из личного профиля.