Переверните экран
Поиск домов и коттеджей

Найдите идеальный дом или коттедж в Санкт-Петербурге и области

Найдите идеальный дом или коттедж в Санкт-Петербурге и области

Перейти к поиску
Новостройки Квартиры Ипотека Медиа О проекте Контакты Реклама на сайте Vk Youtube Telegram Дзен Продавцы и застройщики Коммерческие помещения Квартиры на карте Эксперты и авторы Машиноместа Акции от застройщиков Банки и программы Апартаменты Новостройки на карте 4-комнатные и более Готовые новостройки 3-комнатные Военная ипотека Покупателю Новостройки Санкт-Петербурга Видеообзор новостроек Семейная ипотека Аналитика рынка Панорамы новостроек 1-комнатные Субсидированная застройщиком Мнение эксперта Студии Ипотечный калькулятор Новости недвижимости Новостройки Ленинградской области ИТ-ипотека Квартиры со скидками до 25% Новостройки премиум-класса Новостройки бизнес-класса Дома и коттеджи Бизнес-центры Бизнес-центры в Санкт-Петербурге Бизнес-центры рядом с метро Строящиеся бизнес-центры Бизнес-центры класса A Ипотека со ставкой 0,1% Траншевая ипотека

ЖК «Дом на Клубном» (Коммунар)

ЖК «Дом на Клубном» состоит из двух домов, расположенных зеркально дворовой территории. В каждом доме предусмотрено две секции. Здания построены вдоль Транспортного и Клубного переулков. Количество этажей жилых домов - 10 эт., в том числе: подземных (подвал) - 1 эт., наземных - 9 эт. Квартиры в новостройке с полной отделкой. На территорию комплекса можно попасть с двух сторон: с пер. Клубный и с пер. Транспортный. Для жителей новостройки будет построена открытая парковка на 106 машиномест. Для гостей предусмотрены две парковки на 10 машин каждая.

В ЖК «Дом на Клубном» будет 250 квартир, в том числе: студий - 144, однокомнатных - 70, двухкомнатных - 36. Предусмотрено остекление лоджий и балконов.

Продажа квартир завершена.

Ленинградская область, Коммунар
Нет в продаже
квартир от застройщика
Звоните, мы ещё работаем!
Акции в марте
ЖК «Дом на Клубном» (Коммунар), м. Московская Фотографии
8
Оставьте свои контакты, чтобы первым узнать о появлении в продаже квартир от собственников

Расположение

Регион Ленинградская область
Район Гатчинский район
Локация Коммунар
Метро
Адрес
Клубный пер., д. 1, корп. 1, 2
на карте

Характеристики

Застройщик
Срок сдачи
сдан корпус 1
сдан корпус 2
Тип здания
Этажность
9
Высота потолка
2.77
Отделка
есть
Рейтинг
3.8
Стадия строительства
выдача ключей + заселение корпус 1
выдача ключей + заселение корпус 2

Подробная информация

ЖК «Дом на Клубном» состоит из двух домов, расположенных зеркально дворовой территории. В каждом доме предусмотрено две секции. Здания построены вдоль Транспортного и Клубного переулков. Количество этажей жилых домов - 10 эт., в том числе: подземных (подвал) - 1 эт., наземных - 9 эт. Квартиры в новостройке с полной отделкой. На территорию комплекса можно попасть с двух сторон: с пер. Клубный и с пер. Транспортный. Для жителей новостройки будет построена открытая парковка на 106 машиномест. Для гостей предусмотрены две парковки на 10 машин каждая.

В ЖК «Дом на Клубном» будет 250 квартир, в том числе: студий - 144, однокомнатных - 70, двухкомнатных - 36. Предусмотрено остекление лоджий и балконов.

Продажа квартир завершена.

сдан
Задать вопрос
Выбирайте квартиру в ЖК «Дом на Клубном» (Коммунар) по ценам от застройщика ТЭК.
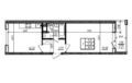
ЖК «Дом на Клубном».ЖК «Дом на Клубном» (Коммунар).Планировка квартиры-студии площадью 25.2 кв.м.Планировка квартиры-студии площадью 28.2 кв.м.Планировка однокомнатной квартиры площадью 38.8 кв.м.Планировка однокомнатной квартиры площадью 39.4 кв.м.Планировка двухкомнатной квартиры площадью 60.67 кв.м.ЖК «Дом на Клубном».
Рассказать друзьям о ЖК «Дом на Клубном» (Коммунар)
Копировать ссылку

Скидки и акции на новостройки Ленинградской области

Посмотреть все спецпредложения

ЖК «Дом на Клубном» (Коммунар) на карте

Как проехать

Метро «Московская» → Пройти пешком 120 метров (1 минута) → Остановка «Демонстрационный проезд» → автобус №№ 545, 545А (30 минут) → Остановка «Центр г. Коммунар» → Пройти пешком 240 метров (2 минуты)

Инфраструктура

В шаговой доступности от ЖК «Дом на Клубном» расположены магазины, аптеки, три детских сада, три школы, два отделения почтовой связи ФГУП «Почта России», кафе, Дом Культуры, Школа Искусств, библиотеки, Спортивная школа. В 700 метрах от новостройки расположен водоем и парковая зона. На территории ЖК «Дом на Клубном» будет оборудованы зоны отдыха для детей и взрослых, площадки для выгула собак, установлены фонари, малые архитектурные формы,проведено ландшафтное озеленение территории.

Застройщик ТЭК

Сданных
объектов
1
Рейтинг
Новострой-СПб
4
Сданных
вовремя
100%
Подробнее о застройщике

Отзывы о ЖК «Дом на Клубном» (Коммунар)

Самый полезный отзыв
Д
Дениска
01 августа 2015
Неплохо было бы указать банки, которые предоставляют ипотеку. Можно конечно позвонить менеджерам, но лучше если эта информация будет доступна для всех. Заранее спасибо.
Ответить
Самый новый отзыв
А
Алена
25 августа 2015
Радует экологическая обстановка в районе. Вредных производств нет, а водоем и парковая зона в 5-ти минутах ходьбы.
Ответить

Оставить отзыв

Добавьте отзыв, заполнив личные данные, или сначала войдите на сайт, тогда информация будет автоматически взята из личного профиля.

Оценка*

Вопросы и ответы о ЖК «Дом на Клубном» (Коммунар)

Задать вопрос

Напишите свой вопрос ниже — заполнив личные данные или войдите на сайт, тогда информация будет автоматически взята из личного профиля.