Переверните экран
Новостройки Квартиры Ипотека Медиа О проекте Контакты Реклама на сайте Vk Youtube Telegram Дзен Продавцы и застройщики Коммерческие помещения Квартиры на карте Эксперты и авторы Машиноместа Акции от застройщиков Банки и программы Апартаменты Новостройки на карте 4-комнатные и более Готовые новостройки 3-комнатные Военная ипотека Покупателю Новостройки Санкт-Петербурга Видеообзор новостроек Семейная ипотека Аналитика рынка Панорамы новостроек 1-комнатные Субсидированная застройщиком Мнение эксперта Студии Ипотечный калькулятор Новости недвижимости Новостройки Ленинградской области IT-ипотека Квартиры со скидками до 25% Новостройки премиум-класса Новостройки бизнес-класса Дома и коттеджи Бизнес-центры Бизнес-центры в Санкт-Петербурге Бизнес-центры рядом с метро Строящиеся бизнес-центры Бизнес-центры класса A

ЖК GloraX Заневский (Глоракс Заневский)

«GloraX Заневский» – современный проект бизнес-класса от федерального девелопера «GloraX». Отель находится в Красногвардейском районе Санкт-Петербурга, в 5 минутах от Невского проспекта. В двух минутах пешком расположена станция метрополитена «Ладожская», за 10 минут можно дойти до Ладожского вокзала, рядом Индустриальный проспект с выездом на КАД и ЗСД. Дорога до аэропорта «Пулково» займет около 40 минут на автомобиле.

В проекте возведено 2 корпуса с переменной высотой от 6 до 15 этажей. Уникальная архитектура в стиле современного биотека разработана петербургским бюро «А. Лен». Фасады светлых оттенков облицованы композитным материалом и стеклом, обилие декоративных элементов делает облик здания ритмичным, разноуровневая подсветка создает запоминающийся образ новостройки даже в темное время суток

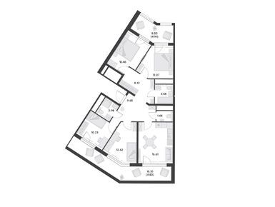
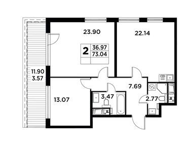
«GloraX Заневский» предлагает на выбор студии и лоты от одно- до четырехкомнатных с панорамным остеклением окон, французскими балконами, просторными кухнями-гостиными, большими угловыми лоджиями, гардеробными и постирочными помещениями, несколькими разнесенными спальнями, личными и гостевыми санузлами. На верхних этажах домов расположены обширные пентхаусы с окнами на 2 стороны света и приватными террасами с видом на реку Оккервиль. Высота потолков в юнитах достигает 3,1 м. Лоты сдаются с готовой чистовой отделкой в светлых оттенках и меблировкой и подходят как для постоянного проживания, так и для временного пользования.

Центральное лобби проекта обустроено с акцентом на комфортное пребывание пользователей. В фойе высокие потолки, комфортная мебель, современные системы центрального кондиционирования и продуманное освещение. В зонах отдыха предусмотрен ресторан и кофейня, для работы коворкинг оснащен скоростным интернетом и конференц-залами, постояльцам доступен кинозал с проектором, спортивный центр со спа-зоной, локеры для хранения личных вещей, прачечная с химчисткой, медицинский кабинет, услуги консьержа и уборки номеров. Для автовладельцев построен отапливаемый подземный паркинг на 295 машино-мест, по всей территории работают видеокамеры с возможностью дистанционного наблюдения и бесшовный WI-FI.

Во дворах комплекса «GloraX Заневский» проложены пешие бульвары и велодорожки, предусмотрены лаунж-зоны с подвесными качелями и цветниками, общественное пространство с летним баром и просторными перголами. Для спортивных занятий воркаут-зоны оснащены тренажерами, детям понравятся игровые площадки с развивающим оборудованием из экологичных материалов. Дворы полностью закрыты от машин, здесь безопасно и уютно. В вечернее время территория освещается фонарями и архитектурной подсветкой на фасадах зданий.

Покупателям доступна покупка в ипотеку. Также застройщик предоставляет услуги покупки недвижимости по программе Trade-in.

Санкт-Петербург, Красногвардейский
от 23.2 до 37.8 млн
 
Цены за квартиры от 15 ноября
по данным официального сайта
Звоните, мы ещё работаем!
Узнать об акциях
ЖК GloraX Заневский (Глоракс Заневский), м. Ладожская Фотографии
13

Цены на машиноместа

Подземная
13.30 — 29.70 м2
1.3 — 2.1  млн руб.

Расположение

Район Красногвардейский
Метро
Адрес
Заневский пр., 65А
на карте

Способы оплаты

Рассрочка
от 20%

Как купить

ДДУ с эскроу-счетом
Trade-In

Характеристики

Застройщик
GloraX (Глоракс) Специализированный застройщик «Развитие»
Срок сдачи
сдан корпус 1
сдан корпус 2
Презентация
Этажность
6 — 15
Высота потолка
2.85 — 3.00
Отделка
есть
Закрытая территория
есть
Охрана
есть
Двор без машин
да
Парковка
наземная
Класс новостройки
бизнес
Рейтинг
4.3
Стадия строительства
выдача ключей + заселение корпус 1
выдача ключей + заселение корпус 2

Подробная информация

«GloraX Заневский» – современный проект бизнес-класса от федерального девелопера «GloraX». Отель находится в Красногвардейском районе Санкт-Петербурга, в 5 минутах от Невского проспекта. В двух минутах пешком расположена станция метрополитена «Ладожская», за 10 минут можно дойти до Ладожского вокзала, рядом Индустриальный проспект с выездом на КАД и ЗСД. Дорога до аэропорта «Пулково» займет около 40 минут на автомобиле.

В проекте возведено 2 корпуса с переменной высотой от 6 до 15 этажей. Уникальная архитектура в стиле современного биотека разработана петербургским бюро «А. Лен». Фасады светлых оттенков облицованы композитным материалом и стеклом, обилие декоративных элементов делает облик здания ритмичным, разноуровневая подсветка создает запоминающийся образ новостройки даже в темное время суток

«GloraX Заневский» предлагает на выбор студии и лоты от одно- до четырехкомнатных с панорамным остеклением окон, французскими балконами, просторными кухнями-гостиными, большими угловыми лоджиями, гардеробными и постирочными помещениями, несколькими разнесенными спальнями, личными и гостевыми санузлами. На верхних этажах домов расположены обширные пентхаусы с окнами на 2 стороны света и приватными террасами с видом на реку Оккервиль. Высота потолков в юнитах достигает 3,1 м. Лоты сдаются с готовой чистовой отделкой в светлых оттенках и меблировкой и подходят как для постоянного проживания, так и для временного пользования.

Центральное лобби проекта обустроено с акцентом на комфортное пребывание пользователей. В фойе высокие потолки, комфортная мебель, современные системы центрального кондиционирования и продуманное освещение. В зонах отдыха предусмотрен ресторан и кофейня, для работы коворкинг оснащен скоростным интернетом и конференц-залами, постояльцам доступен кинозал с проектором, спортивный центр со спа-зоной, локеры для хранения личных вещей, прачечная с химчисткой, медицинский кабинет, услуги консьержа и уборки номеров. Для автовладельцев построен отапливаемый подземный паркинг на 295 машино-мест, по всей территории работают видеокамеры с возможностью дистанционного наблюдения и бесшовный WI-FI.

Во дворах комплекса «GloraX Заневский» проложены пешие бульвары и велодорожки, предусмотрены лаунж-зоны с подвесными качелями и цветниками, общественное пространство с летним баром и просторными перголами. Для спортивных занятий воркаут-зоны оснащены тренажерами, детям понравятся игровые площадки с развивающим оборудованием из экологичных материалов. Дворы полностью закрыты от машин, здесь безопасно и уютно. В вечернее время территория освещается фонарями и архитектурной подсветкой на фасадах зданий.

Покупателям доступна покупка в ипотеку. Также застройщик предоставляет услуги покупки недвижимости по программе Trade-in.

Отдел продаж
09:00 — 21:00
Заказать обратный звонок
Задать вопрос
Выбирайте квартиру в ЖК GloraX Заневский по ценам от застройщика GloraX (Глоракс).
2-комн. квартира 67,90 м2 23 199 999
Этаж 14
СПБ, ЖК GloraX Заневский (Глоракс Заневский)
Ладожская
2 мин.
Сдан
2-комн. квартира 72,30 м2 23 299 999
Этаж 14/15
СПБ, ЖК GloraX Заневский (Глоракс Заневский)
Ладожская
2 мин.
Сдан
2-комн. квартира 77,70 м2 25 199 999
Этаж 14
СПБ, ЖК GloraX Заневский (Глоракс Заневский)
Ладожская
2 мин.
Сдан
3-комн. квартира 89,00 м2 28 229 999
Этаж 14/15
СПБ, ЖК GloraX Заневский (Глоракс Заневский)
Ладожская
2 мин.
Сдан
3-комн. квартира 92,50 м2 26 669 999
Этаж 13/15
СПБ, ЖК GloraX Заневский (Глоракс Заневский)
Ладожская
2 мин.
Сдан
3-комн. квартира 95,30 м2 23 749 999
Этаж 2/15
СПБ, ЖК GloraX Заневский (Глоракс Заневский)
Ладожская
2 мин.
Сдан
3-комн. квартира 98,60 м2 29 889 999
Этаж 14/15
СПБ, ЖК GloraX Заневский (Глоракс Заневский)
Ладожская
2 мин.
Сдан
Посмотреть 9 квартир в ЖК GloraX Заневский
Этаж 14
СПБ, ЖК GloraX Заневский (Глоракс Заневский)
Ладожская
2 мин.
Сдан
4-комн. квартира 116,90 м2 35 029 999
Этаж 14
СПБ, ЖК GloraX Заневский (Глоракс Заневский)
Ладожская
2 мин.
Сдан
Этаж 14/15
СПБ, ЖК GloraX Заневский (Глоракс Заневский)
Ладожская
2 мин.
Сдан
ЖК GloraX City ЗаневскийГенеральный план.Для детей будет построена детская площадка с акцентом на натуральные материалы.Эксклюзивный дизайн входных групп от студии BalconБолее 63 уникальных планировок, с террасами, французскими балконами и лоджиямиВ квартирах с отделкой white box застройщик выравнивает, штукатурит и шпаклюет стены, а затем проводит обеспыливание.Дизайн входных группЗастройщик предлагает квартиры с базовой отделкой White box и чистовой отделкой Comfort.Зеркала с бронзовым тонированием.Лифтовые холлы проработаны в рамках единого стильного дизайна.Каждая секция оборудована двумя современными, бесшумными, высокоскоростными лифтами.Стены выравниваются специальной штукатуркой, предназначенной для использования во влажных помещениях.В санузлах устанавливается качественное сантехническое оборудование известных марок.
Рассказать друзьям о ЖК GloraX Заневский
Копировать ссылку

Скидки и акции на новостройки Санкт-Петербурга

Посмотреть все спецпредложения

ЖК GloraX Заневский (Глоракс Заневский) на карте

Как проехать

Станция метро «Ладожская» → пройти пешком 530 м

Узнайте, нужно ли заказывать пропуск при посещении отдела продаж компании Отдел продаж по телефону +7 (812) 424-49-10.

Инфраструктура

В ближайшем окружении проекта расположены крупные торговые центры, фитнес-залы и разные службы быта, а на первых этажах корпусов работают стрит-ритейлы с магазинами, аптеками и салонами красоты. В пределах нескольких километров есть 4 школы, 3 детских сада, университеты, больницы и поликлиники.

Пешком от отеля можно дойти до благоустроенного Ладожского парка, парка «Охта-Оккервиль» и Малоохотинского парка. В пределах 20 минут на автомобиле расположен Зимний дворец, набережная реки Невы, музей фонарей под открытым небом и Дворцовая площадь.

Застройщик GloraX (Глоракс)

Сданных
объектов
13
Строящихся
объектов
7
Рейтинг
Новострой-СПб
4.4
Сданных
вовремя
100%
Все новостройки застройщика

Отзывы о ЖК GloraX Заневский

Самый полезный отзыв
H
10 мая 2023
Оценка:
Хорошее расположение при приемлемой цене за квадратный метр. Рядом метро Ладожская и проспект Энергетиков с кучей автобусных маршрутов. Пока ключи не получу говорить о качестве строительства судить сложно. Но в целом по проведению сделки, отношению менеджеров остались только положительные эмоции.
Ответить
Полезный отзыв?
Самый новый отзыв
ТБ
29 мая
Оценка:
Планировки
Способы покупки
Внешний вид фасада
Двор, окружение
Расположение
Месторасположение, надо сказать, довольно-таки удобное. Это сразу подкупило. Апартаменты укомплектованы мебелью и сантехникой, что тоже огромный плюс. Даже телевизор есть, но пока, к сожалению, нет подключения к кабельным сетям, придется что-то придумывать. Единственное, что немного расстроило - окна, на мой взгляд, недостаточно хорошо пропускают уличные шумы. Особенно это ощущается со стороны Заневского проспекта. В остальном пока все устраивает.
Ответить
Полезный отзыв?
Добавьте отзыв, заполнив личные данные, или сначала войдите на сайт, тогда информация будет автоматически взята из личного профиля.
Оценка*

Вопросы и ответы о ЖК GloraX Заневский

Будьте первым, кто задаст вопрос
Задать вопрос
Напишие свой вопрос ниже — заполнив личные данные или войдите на сайт, тогда информация будет автоматически взята из личного профиля.