Переверните экран
Поиск домов и коттеджей

Найдите идеальный дом или коттедж в Санкт-Петербурге и области

Найдите идеальный дом или коттедж в Санкт-Петербурге и области

Перейти к поиску
Новостройки Квартиры Ипотека Медиа О проекте Контакты Реклама на сайте Vk Youtube Telegram Дзен Продавцы и застройщики Коммерческие помещения Квартиры на карте Эксперты и авторы Машиноместа Акции от застройщиков Банки и программы Апартаменты Новостройки на карте 4-комнатные и более Готовые новостройки 3-комнатные Военная ипотека Покупателю Новостройки Санкт-Петербурга Видеообзор новостроек Семейная ипотека Аналитика рынка Панорамы новостроек 1-комнатные Субсидированная застройщиком Мнение эксперта Студии Ипотечный калькулятор Новости недвижимости Новостройки Ленинградской области ИТ-ипотека Квартиры со скидками до 25% Новостройки премиум-класса Новостройки бизнес-класса Дома и коттеджи Коттеджные поселки в Санкт-Петербурге Коттеджные поселки в Ленинградской обл Готовые коттеджные поселки Строящиеся коттеджные поселки Коттеджные поселки у леса Коттеджные поселки у водоема Коттеджные поселки в ипотеку Бизнес-центры Коттеджи Ипотека со ставкой 0,1% Траншевая ипотека
1-комн. квартира, 46.00 м2, 1 этаж
Срок сдачи 2 квартал 2026 года
6 118 000 
133 000 2
обновлено 4 мая

Описание 1-комн. квартиры

Новостройка
Застройщик
Срок ГК
2 квартал 2026 года
Тип проекта
Общая площадь
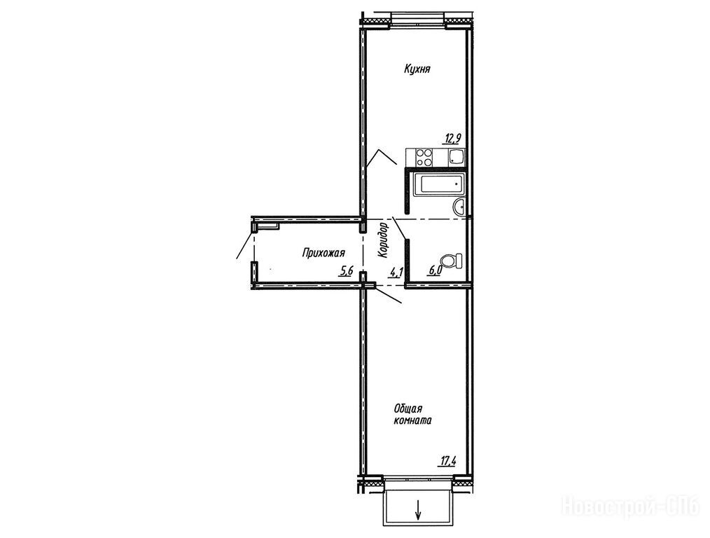
46.00 м2
Этаж
1 / 17
Отделка
предчистовая
Грузовой лифт
есть

Расположение 1-комн. квартиры

Метро
Дом
9
Адрес
Парковая улица

Способы покупки

Особенности

Продается однокомнатная квартира в новостройке ЖК «Сибирь» по адресу Ленинградская область, Тосненский район, поселок Тельмана, Парковая улица. Общая площадь квартиры - 46 кв. м. Тип проекта, по которому построен дом — Панельный, компания-застройщик — ГК «Союз». Стоимость квартиры — 6 118 000 руб. Способы оплаты можно уточнить у продавца. Срок сдачи — 2 квартал 2026. Более подробная информация по телефону.
Инфоцентр новостроек
Инфоцентр новостроек
+7 (812) 424-49-09
Время работы 9:00 — 21:00
Этаж 2/17
ЛО, ЖК «Сибирь»
Шушары
23 мин.
Сдан
студия 26,60 м2 4 947 600
Этаж 3/17
ЛО, ЖК «Сибирь»
Шушары
23 мин.
Сдан
Посмотреть 12 квартир в ЖК «Сибирь»
Этаж 13/17
ЛО, ЖК «Сибирь»
Шушары
23 мин.
Сдан
1-комн. квартира 33,70 м2 5 931 200
Этаж 13/17
ЛО, ЖК «Сибирь»
Шушары
23 мин.
Сдан
1-комн. квартира 33,90 м2 5 966 400
Этаж 8/17
ЛО, ЖК «Сибирь»
Шушары
23 мин.
Сдан
1-комн. квартира 34,00 м2 5 984 000
Этаж 13/17
ЛО, ЖК «Сибирь»
Шушары
23 мин.
Сдан
Посмотреть 184 квартиры в ЖК «Сибирь»
2-комн. квартира 37,00 м2 5 291 000
Этаж 1/17
ЛО, ЖК «Сибирь»
Шушары
23 мин.
Строится
2-комн. квартира 40,80 м2 5 793 600
Этаж 11/17
ЛО, ЖК «Сибирь»
Шушары
23 мин.
Строится
2-комн. квартира 40,90 м2 5 889 600
Этаж 1/17
ЛО, ЖК «Сибирь»
Шушары
23 мин.
Сдан
2-комн. квартира 41,00 м2 5 822 000
Этаж 4/17
ЛО, ЖК «Сибирь»
Шушары
23 мин.
Строится
Посмотреть 197 квартир в ЖК «Сибирь»
3-комн. квартира 58,50 м2 7 488 000
Этаж 1/17
ЛО, ЖК «Сибирь»
Шушары
23 мин.
Строится
3-комн. квартира 59,20 м2 8 021 600
Этаж 2/17
ЛО, ЖК «Сибирь»
Шушары
23 мин.
Строится
3-комн. квартира 61,10 м2 9 409 400
Этаж 9/17
ЛО, ЖК «Сибирь»
Шушары
23 мин.
Сдан
3-комн. квартира 62,70 м2 8 025 600
Этаж 1/17
ЛО, ЖК «Сибирь»
Шушары
23 мин.
Строится
Посмотреть 130 квартир в ЖК «Сибирь»
4-комн. квартира 80,90 м2 10 517 000
Этаж 13/17
ЛО, ЖК «Сибирь»
Шушары
23 мин.
Строится
4-комн. квартира 81,00 м2 10 530 000
Этаж 2/17
ЛО, ЖК «Сибирь»
Шушары
23 мин.
Строится
4-комн. квартира 81,20 м2 14 616 000
Этаж 10/17
ЛО, ЖК «Сибирь»
Шушары
23 мин.
Сдан
4-комн. квартира 81,40 м2 12 291 400
Этаж 3/17
ЛО, ЖК «Сибирь»
Шушары
23 мин.
Сдан
Посмотреть 65 квартир в ЖК «Сибирь»

Скидки и спецпредложения от застройщиков

ЖК «Сибирь» на карте

Выгодные предложения на новостройки

Отзывы о ЖК «Сибирь»

Самый полезный отзыв
ВН
10 февраля 2025
Оценка:
Достоинства
Социальная инфраструктура
Планировки
Способы покупки
Двор, окружение
Расположение
Действительно хороший ЖК вблизи города, но все ж в Колпино, который предлагает отличное сочетание уюта и удобства. Одним из самых сильных плюсов для меня стала развитая инфраструктура — рядом находятся магазины, удобные дороги и транспортные узлы. Значит, что все самое необходимое всегда будет под рукой, и не придется тратить время на долгие поездки.
Ответить
Самый новый отзыв
ОО
15 января
Оценка:
Достоинства
Двор, окружение
Расположение
У меня смешанные впечатления: люди жалуются, что курьерам и гостям сложно попадать на территорию из-за шлагбаумов и неработающих контактов. Это кажется мелочью, пока не живешь, потом превращается в ежедневный раздражитель
Ответить

Оставить отзыв

Добавьте отзыв, заполнив личные данные, или сначала войдите на сайт, тогда информация будет автоматически взята из личного профиля.
Оценка*