Переверните экран
Поиск домов и коттеджей

Найдите идеальный дом или коттедж в Санкт-Петербурге и области

Найдите идеальный дом или коттедж в Санкт-Петербурге и области

Перейти к поиску
Новостройки Квартиры Ипотека Медиа О проекте Контакты Реклама на сайте Vk Youtube Telegram Дзен Продавцы и застройщики Коммерческие помещения Квартиры на карте Эксперты и авторы Машиноместа Акции от застройщиков Банки и программы Апартаменты Новостройки на карте 4-комнатные и более Готовые новостройки 3-комнатные Военная ипотека Покупателю Новостройки Санкт-Петербурга Видеообзор новостроек Семейная ипотека Аналитика рынка Панорамы новостроек 1-комнатные Субсидированная застройщиком Мнение эксперта Студии Ипотечный калькулятор Новости недвижимости Новостройки Ленинградской области ИТ-ипотека Квартиры со скидками до 25% Новостройки премиум-класса Новостройки бизнес-класса Дома и коттеджи Коттеджные поселки в Санкт-Петербурге Коттеджные поселки в Ленинградской обл Готовые коттеджные поселки Строящиеся коттеджные поселки Коттеджные поселки у леса Коттеджные поселки у водоема Коттеджные поселки в ипотеку Бизнес-центры Коттеджи Ипотека со ставкой 0,1% Траншевая ипотека
1-комн. квартира, 47.65 м2, 1 этаж
Сдан
11 296 828 
237 079 2
обновлено 4 мая

Описание 1-комн. квартиры

Застройщик
Срок ГК
Дом сдан
Стадия строительства
выдача ключей + заселение
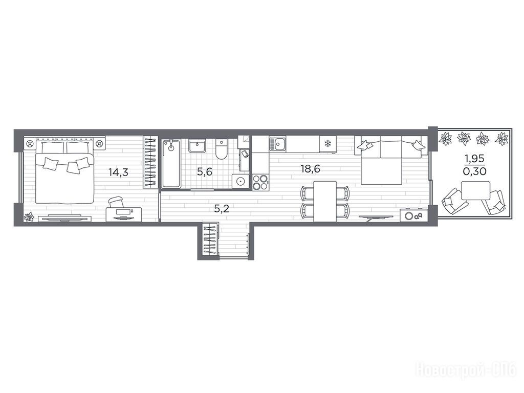
Общая площадь
47.65 м2
Жилая площадь
14.30 м2
Площадь кухни
18.60 м2
Этаж
1 / 5
Отделка
чистовая
Грузовой лифт
есть

Расположение 1-комн. квартиры

Локация
Метро
Ж/Д-станция
Дом
1
Адрес
Пулковское шоссе, участок 24 корп.1, секция 1

Способы покупки

Особенности

Продается однокомнатная квартира в новостройке ЖК «Плюс Пулковский» по адресу Санкт-Петербург, Московский, Пулковское шоссе, участок 24 корп.1. Общая площадь квартиры - 47.65 кв. м. Тип проекта, по которому построен дом — Монолитно-кирпичный, компания-застройщик — ГК «ПСК». Стоимость квартиры — 11 296 828 руб. Способы оплаты можно уточнить у продавца. Более подробная информация по телефону.
Инфоцентр новостроек
Инфоцентр новостроек
+7 (812) 424-49-09
Время работы 9:00 — 21:00
Этаж 2/5
СПБ, ЖК «Плюс Пулковский»
Московская
15 мин.
Сдан
Этаж 1/5
СПБ, ЖК «Плюс Пулковский»
Московская
15 мин.
Сдан
студия 20,50 м2 5 680 550
Этаж 3/5
СПБ, ЖК «Плюс Пулковский»
Московская
15 мин.
Строится
студия 21,00 м2 5 539 800
Этаж 1/5
СПБ, ЖК «Плюс Пулковский»
Московская
15 мин.
Строится
Посмотреть 143 квартиры в ЖК «Плюс Пулковский»
1-комн. квартира 32,30 м2 8 494 447
Этаж 3/5
СПБ, ЖК «Плюс Пулковский»
Московская
15 мин.
Строится
1-комн. квартира 32,55 м2 8 576 925
Этаж 2/5
СПБ, ЖК «Плюс Пулковский»
Московская
15 мин.
Строится
1-комн. квартира 32,60 м2 8 173 113
Этаж 4/5
СПБ, ЖК «Плюс Пулковский»
Московская
15 мин.
Строится
1-комн. квартира 32,82 м2 8 873 580
Этаж 5/5
СПБ, ЖК «Плюс Пулковский»
Московская
15 мин.
Сдан
Посмотреть 164 квартиры в ЖК «Плюс Пулковский»
2-комн. квартира 44,30 м2 12 005 300
Этаж 1/5
СПБ, ЖК «Плюс Пулковский»
Московская
15 мин.
Строится
2-комн. квартира 44,56 м2 12 655 040
Этаж 2/5
СПБ, ЖК «Плюс Пулковский»
Московская
15 мин.
Строится
2-комн. квартира 44,76 м2 12 769 222
Этаж 5/5
СПБ, ЖК «Плюс Пулковский»
Московская
15 мин.
Строится
2-комн. квартира 44,79 м2 12 675 570
Этаж 2/5
СПБ, ЖК «Плюс Пулковский»
Московская
15 мин.
Строится
Посмотреть 75 квартир в ЖК «Плюс Пулковский»
3-комн. квартира 61,66 м2 15 896 872
Этаж 2/5
СПБ, ЖК «Плюс Пулковский»
Московская
15 мин.
Строится
3-комн. квартира 61,80 м2 15 433 623
Этаж 1/5
СПБ, ЖК «Плюс Пулковский»
Московская
15 мин.
Строится
3-комн. квартира 61,86 м2 16 194 948
Этаж 4/5
СПБ, ЖК «Плюс Пулковский»
Московская
15 мин.
Строится
3-комн. квартира 61,90 м2 15 258 350
Этаж 1/5
СПБ, ЖК «Плюс Пулковский»
Московская
15 мин.
Строится
Посмотреть 61 квартира в ЖК «Плюс Пулковский»

Скидки и спецпредложения от застройщиков

ЖК «Плюс Пулковский» на карте

Выгодные предложения на новостройки

Отзывы о ЖК «Плюс Пулковский»

Самый полезный отзыв
Ф
31 октября 2023
Оценка:
Достоинства
Транспортная доступность
Планировки
Недостатки
Готовность
Вижу большой прогресс по сравнению с прошлым их кварталом Славянка. Не то чтобы он был плох, но вот, уже дворы закрыли от машин, центральную аллею спроектировали через весь квартал – чисто пешеходную. Вечерами гулять размеренно будет в удовольствие. Дворики патио для квартир на первых этажах и высокие 3,5 метра потолки.
Ответить
Самый новый отзыв
М
23 апреля
Оценка:
Вторая очередь тоже введена в эксплуатацию) Никакого нарушения сроков со стороны ПСК. Теперь ждем свои ключи, а то уже завидно тем, кто в первые корпуса въехал)
Ответить

Оставить отзыв

Добавьте отзыв, заполнив личные данные, или сначала войдите на сайт, тогда информация будет автоматически взята из личного профиля.
Оценка*