Переверните экран
Поиск бизнес центров

Найдите современный офис в деловых районах Санкт-Петербурга

Найдите современный офис в деловых районах Санкт-Петербурга

Перейти к поиску
Новостройки Квартиры Ипотека Медиа О проекте Контакты Реклама на сайте Vk Youtube Telegram Дзен Продавцы и застройщики Коммерческие помещения Квартиры на карте Эксперты и авторы Машиноместа Акции от застройщиков Банки и программы Апартаменты Новостройки на карте 4-комнатные и более Готовые новостройки 3-комнатные Военная ипотека Покупателю Новостройки Санкт-Петербурга Видеообзор новостроек Семейная ипотека Аналитика рынка Панорамы новостроек 1-комнатные Субсидированная застройщиком Мнение эксперта Студии Ипотечный калькулятор Новости недвижимости Новостройки Ленинградской области IT-ипотека Квартиры со скидками до 25% Новостройки премиум-класса Новостройки бизнес-класса Дома и коттеджи Бизнес-центры Бизнес-центры в Санкт-Петербурге Бизнес-центры рядом с метро Строящиеся бизнес-центры Бизнес-центры класса A
1-комн. квартира, 41.50 м2, 1 этаж
Срок сдачи 2 квартал 2027 года
8 366 400 
201 600 2
обновлено 5 декабря

Описание 1-комн. квартиры

Новостройка
Застройщик
Срок ГК
2 квартал 2027 года
Стадия строительства
котлован/фундамент
Общая площадь
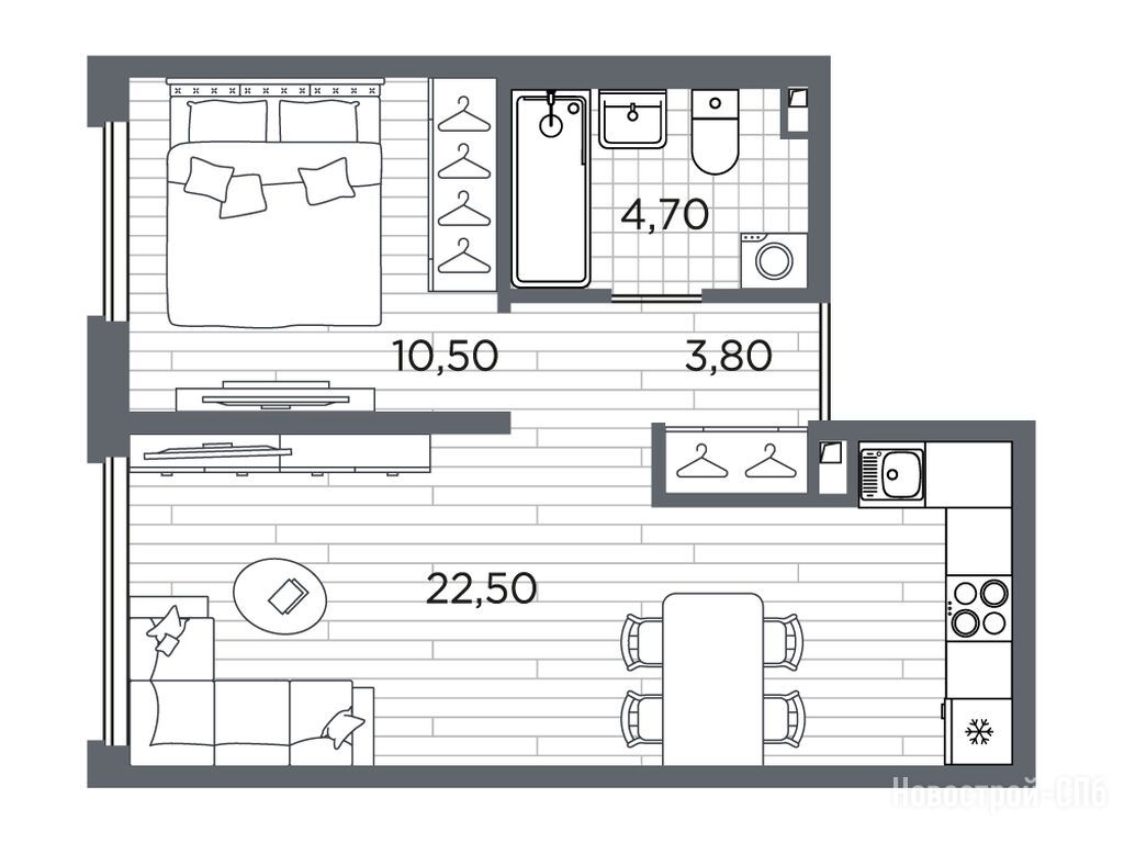
41.50 м2
Жилая площадь
10.50 м2
Площадь кухни
22.50 м2
Этаж
1 / 5
Отделка
чистовая

Расположение 1-комн. квартиры

Локация
Метро
Ж/Д-станция
Дом
9
Адрес
Пулковское шоссе, участок 24, секция 1

Способы покупки

Особенности

Продается однокомнатная квартира в новостройке ЖК «Plus Пулковский» по адресу Санкт-Петербург, Московский, Пулковское шоссе, участок 24. Общая площадь квартиры - 41.5 кв. м. Тип проекта, по которому построен дом — Монолитно-кирпичный, компания-застройщик — ПСК. Стоимость квартиры — 8 366 400 руб. Способы оплаты можно уточнить у продавца. Срок сдачи — 2 квартал 2027. Более подробная информация по телефону.
Инфоцентр новостроек
Инфоцентр новостроек
+7 (812) 424-49-09
Время работы 9:00 — 21:00
Посмотреть все спецпредложения
студия 21,40 м2 5 437 740
Этаж 2/5
СПБ, ЖК «Plus Пулковский»
Московская
15 мин.
Строится
студия 21,70 м2 5 275 270
Этаж 1/5
СПБ, ЖК «Plus Пулковский»
Московская
15 мин.
Строится
студия 22,63 м2 4 550 000
Этаж 1/5
СПБ, ЖК «Plus Пулковский»
Московская
15 мин.
Строится
Этаж 1/5
СПБ, ЖК «Plus Пулковский»
Московская
15 мин.
Строится
Посмотреть 65 квартир в ЖК «Plus Пулковский»
1-комн. квартира 32,30 м2 7 706 780
Этаж 3/5
СПБ, ЖК «Plus Пулковский»
Московская
15 мин.
Строится
1-комн. квартира 32,60 м2 7 517 560
Этаж 3/5
СПБ, ЖК «Plus Пулковский»
Московская
15 мин.
Строится
1-комн. квартира 33,00 м2 7 312 800
Этаж 1/5
СПБ, ЖК «Plus Пулковский»
Московская
15 мин.
Строится
1-комн. квартира 33,15 м2 7 806 825
Этаж 2/5
СПБ, ЖК «Plus Пулковский»
Московская
15 мин.
Строится
Посмотреть 156 квартир в ЖК «Plus Пулковский»
2-комн. квартира 44,50 м2 11 904 584
Этаж 1/5
СПБ, ЖК «Plus Пулковский»
Московская
15 мин.
Строится
2-комн. квартира 44,76 м2 11 557 032
Этаж 5/5
СПБ, ЖК «Plus Пулковский»
Московская
15 мин.
Строится
Этаж 2/5
СПБ, ЖК «Plus Пулковский»
Московская
15 мин.
Строится
2-комн. квартира 45,06 м2 11 562 396
Этаж 2/5
СПБ, ЖК «Plus Пулковский»
Московская
15 мин.
Строится
Посмотреть 54 квартиры в ЖК «Plus Пулковский»
3-комн. квартира 61,22 м2 14 870 338
Этаж 1/5
СПБ, ЖК «Plus Пулковский»
Московская
15 мин.
Строится
3-комн. квартира 61,66 м2 14 274 290
Этаж 2/5
СПБ, ЖК «Plus Пулковский»
Московская
15 мин.
Строится
3-комн. квартира 61,80 м2 13 812 300
Этаж 1/5
СПБ, ЖК «Plus Пулковский»
Московская
15 мин.
Строится
3-комн. квартира 62,08 м2 15 886 272
Этаж 3/5
СПБ, ЖК «Plus Пулковский»
Московская
15 мин.
Строится
Посмотреть 40 квартир в ЖК «Plus Пулковский»

Скидки и спецпредложения от застройщиков

ЖК «Plus Пулковский» на карте

Выгодные предложения на новостройки

Отзывы о ЖК «Plus Пулковский»

Самый полезный отзыв
Ф
31 октября 2023
Оценка:
Транспортная доступность
Планировки
Готовность
Вижу большой прогресс по сравнению с прошлым их кварталом Славянка. Не то чтобы он был плох, но вот, уже дворы закрыли от машин, центральную аллею спроектировали через весь квартал – чисто пешеходную. Вечерами гулять размеренно будет в удовольствие. Дворики патио для квартир на первых этажах и высокие 3,5 метра потолки.
Ответить
Полезный отзыв?
Самый новый отзыв
Л
03 декабря
Оценка:
Смогли точно определиться с выбором комплекса только после экскурсии на демо этаж и просмотра нескольких квартир. Сделано все красиво, аккуратно, видно, что материалы не самые дешевые в отделке использовались. В квартирах готовый ремонт, тепло, достаточно уютно, сантехника стоит хорошая. И пока смотрели, с менеджером обсудили пару вопросов. На прошлой неделе уже была сделка.
Ответить
Полезный отзыв?
Добавьте отзыв, заполнив личные данные, или сначала войдите на сайт, тогда информация будет автоматически взята из личного профиля.
Оценка*