Переверните экран
Новостройки Квартиры Ипотека Медиа О проекте Контакты Реклама на сайте Vk Youtube Telegram Дзен Продавцы и застройщики Коммерческие помещения Квартиры на карте Эксперты и авторы Машиноместа Акции от застройщиков Банки и программы Апартаменты Новостройки на карте 4-комнатные и более Готовые новостройки 3-комнатные Военная ипотека Покупателю Новостройки Санкт-Петербурга Видеообзор новостроек Семейная ипотека Аналитика рынка Панорамы новостроек 1-комнатные Субсидированная застройщиком Мнение эксперта Студии Ипотечный калькулятор Новости недвижимости Новостройки Ленинградской области IT-ипотека Квартиры со скидками до 25% Новостройки премиум-класса Новостройки бизнес-класса Дома и коттеджи Бизнес-центры Бизнес-центры в Санкт-Петербурге Бизнес-центры рядом с метро Строящиеся бизнес-центры Бизнес-центры класса A
Данное предложение на 16.12.2025 неактуально. Пожалуйста, ознакомьтесь с другими похожими предложениями в ЖК «Цивилизация на Неве».

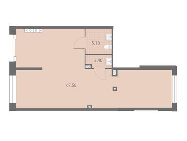
Помещение свободного назначения, 71.90 м 2

Санкт-Петербург, Невский, Октябрьская набережная, 42Р
30 636 590
426 100 2
обновлено 01 декабря

Описание

Номер лота
11
Срок ГК
3 квартал 2027
Стадия строительства
Тип здания
встроенное помещение
Этаж
1
Площадь
71.90 м2
Окна
с видом во двор и на улицу
Вход в помещение
отдельный с улицы
Рекомендованное назначение
Свободное назначение

Расположение

Район
Невский
Метро
Дом
7
Адрес
Октябрьская набережная, 42Р

Особенности

Продаётся помещение свободного назначения площадью 71.9 кв. м. в новостройке ЖК «Цивилизация на Неве» по адресу Санкт-Петербург, Невский, Октябрьская набережная, 42Р. Окна с видом во двор и на улицу. Высота потолков 0.00 м. Отдельный вход с улицы. Стоимость помещения — 30 636 590 руб. Способы оплаты и более подробная информация по телефону.

Планировка

Корпус 7 (ГК 3 квартал 2027)
Посмотреть все спецпредложения

Еще помещения в ЖК «Цивилизация на Неве»

Продажа
Санкт-Петербург, Невский
Улица Дыбенко
25 мин.
3.59
Высота потолка
Паркинг
Окна
отдельный с улицы
Вход
Корпус
ЖК «Цивилизация на Неве»
Продажа
Санкт-Петербург, Невский
Улица Дыбенко
25 мин.
3.59
Высота потолка
Паркинг
Окна
отдельный с улицы
Вход
Корпус
ЖК «Цивилизация на Неве»
Продажа
Санкт-Петербург, Невский
Улица Дыбенко
25 мин.
3.59
Высота потолка
Паркинг
Окна
отдельный с улицы
Вход
Корпус
ЖК «Цивилизация на Неве»
Продажа
Санкт-Петербург, Невский
Улица Дыбенко
25 мин.
3.59
Высота потолка
Паркинг
Окна
отдельный с улицы
Вход
Корпус
ЖК «Цивилизация на Неве»

Скидки и спецпредложения от застройщиков

ЖК «Цивилизация на Неве» на карте

Выгодные предложения на новостройки