Переверните экран
Новостройки Квартиры Ипотека Медиа О проекте Контакты Реклама на сайте Vk Youtube Telegram Дзен Продавцы и застройщики Коммерческие помещения Квартиры на карте Эксперты и авторы Машиноместа Акции от застройщиков Банки и программы Апартаменты Новостройки на карте 4-комнатные и более Готовые новостройки 3-комнатные Военная ипотека Покупателю Новостройки Санкт-Петербурга Видеообзор новостроек Семейная ипотека Аналитика рынка Панорамы новостроек 1-комнатные Субсидированная застройщиком Мнение эксперта Студии Ипотечный калькулятор Новости недвижимости Новостройки Ленинградской области IT-ипотека Квартиры со скидками до 25% Новостройки премиум-класса Новостройки бизнес-класса Дома и коттеджи Бизнес-центры Бизнес-центры в Санкт-Петербурге Бизнес-центры рядом с метро Строящиеся бизнес-центры Бизнес-центры класса A

Помещение свободного назначения, 79.72 м 2

Санкт-Петербург, Невский, Октябрьская набережная, д. 40
33 047 443
414 544 2
обновлено 15 декабря

Описание

Номер лота
12
Тип здания
встроенное помещение
Этаж
1
Площадь
79.72 м2
Высота потолка
3.59
Окна
с видом во двор и на улицу
Вход в помещение
отдельный с улицы
Электроснабжение
есть
Водопровод
есть
Канализация
есть
Рекомендованное назначение
Свободное назначение

Расположение

Район
Невский
Метро
Дом
ЖК «Цивилизация на Неве»
Адрес
Октябрьская набережная, д. 40

Особенности

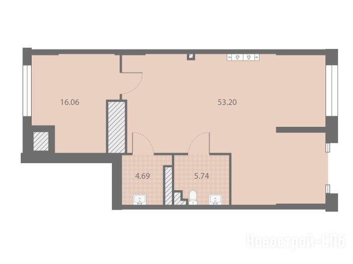
Продаётся помещение свободного назначения площадью 79.72 кв. м. в новостройке ЖК «Цивилизация на Неве» по адресу Санкт-Петербург, Невский, Октябрьская набережная, д. 40. Окна с видом во двор и на улицу. Высота потолков 3.59 м. Отдельный вход с улицы. Стоимость помещения — 33 047 443 руб. Способы оплаты и более подробная информация по телефону.

Планировка

Посмотреть все спецпредложения

Еще помещения в ЖК «Цивилизация на Неве»

Продажа
Санкт-Петербург, Невский
Улица Дыбенко
25 мин.
3.59
Высота потолка
Паркинг
Окна
отдельный с улицы
Вход
Корпус
ЖК «Цивилизация на Неве»
Продажа
Санкт-Петербург, Невский
Улица Дыбенко
25 мин.
3.59
Высота потолка
Паркинг
Окна
отдельный с улицы
Вход
Корпус
ЖК «Цивилизация на Неве»
Продажа
Санкт-Петербург, Невский
Улица Дыбенко
25 мин.
3.59
Высота потолка
Паркинг
Окна
отдельный с улицы
Вход
Корпус
ЖК «Цивилизация на Неве»
Продажа
Санкт-Петербург, Невский
Улица Дыбенко
25 мин.
3.59
Высота потолка
Паркинг
Окна
отдельный с улицы
Вход
Корпус
ЖК «Цивилизация на Неве»

Скидки и спецпредложения от застройщиков

ЖК «Цивилизация на Неве» на карте

Выгодные предложения на новостройки