Переверните экран
Поиск бизнес центров

Найдите современный офис в деловых районах Санкт-Петербурга

Найдите современный офис в деловых районах Санкт-Петербурга

Перейти к поиску
Новостройки Квартиры Ипотека Медиа О проекте Контакты Реклама на сайте Vk Youtube Telegram Дзен Продавцы и застройщики Коммерческие помещения Квартиры на карте Эксперты и авторы Машиноместа Акции от застройщиков Банки и программы Апартаменты Новостройки на карте 4-комнатные и более Готовые новостройки 3-комнатные Военная ипотека Покупателю Новостройки Санкт-Петербурга Видеообзор новостроек Семейная ипотека Аналитика рынка Панорамы новостроек 1-комнатные Субсидированная застройщиком Мнение эксперта Студии Ипотечный калькулятор Новости недвижимости Новостройки Ленинградской области ИТ-ипотека Квартиры со скидками до 25% Новостройки премиум-класса Новостройки бизнес-класса Дома и коттеджи Коттеджные поселки в Санкт-Петербурге Коттеджные поселки в Ленинградской обл Готовые коттеджные поселки Строящиеся коттеджные поселки Коттеджные поселки у леса Коттеджные поселки у водоема Коттеджные поселки в ипотеку Бизнес-центры Коттеджи Ипотека со ставкой 0,1% Траншевая ипотека

Квартал «Северный ветер»

Санкт-Петербург, Василеостровский
от 10.9 до 58.9 млн
 
Цены за квартиры от 4 мая
по данным официального сайта
Звоните, мы ещё работаем!
Акции в мае
3 отзыва сортировать по:
дате добавления
В
Виолетта
28 февраля
Оценка
Местоположение замечательное, но не хватает магазинов и образовательных учреждений.А вообще, квартира устраивает
Ответить
123 Кровавая
31 августа 2025
Оценка
Будущая квартира радует своей продуманной планировкой, всё очень удобно. И то, что вокруг будет вся необходимая инфраструктура, делает северный ветер отличным вариантом для инвестиций в комфортное будущее
Ответить
СВ
Степан Волохов
25 марта 2025
Оценка
Достоинства
Планировки
Способы покупки
Внешний вид фасада
Расположение
Это самый уютный проект, который я видел. Квартирография здесь нормальная, не похоже на типичный муравейник, в котором все забиты друг к другу. Особенно понравились общественные зоны
Ответить

Оставить отзыв

Добавьте отзыв, заполнив личные данные, или сначала войдите на сайт, тогда информация будет автоматически взята из личного профиля.

Оценка*

Отдел продаж
09:00 — 21:00
Заказать обратный звонок
Задать вопрос
студия 28,30 м2 12 130 000
Этаж 7/8
СПБ, Квартал «Северный ветер»
Приморская
10 мин.
Строится
студия 29,10 м2 12 050 000
Этаж 8/15
СПБ, Квартал «Северный ветер»
Приморская
10 мин.
Строится
студия 29,20 м2 11 640 000
Этаж 3/8
СПБ, Квартал «Северный ветер»
Приморская
10 мин.
Строится
студия 30,60 м2 12 410 000
Этаж 10/16
СПБ, Квартал «Северный ветер»
Приморская
10 мин.
Строится
Посмотреть 29 квартир в Квартале «Северный ветер»
1-комн. квартира 32,90 м2 14 780 000
Этаж 4/8
СПБ, Квартал «Северный ветер»
Приморская
10 мин.
Строится
Этаж 4/10
СПБ, Квартал «Северный ветер»
Приморская
10 мин.
Строится
1-комн. квартира 40,00 м2 16 900 000
Этаж 6/15
СПБ, Квартал «Северный ветер»
Приморская
10 мин.
Строится
1-комн. квартира 40,30 м2 16 760 000
Этаж 3/15
СПБ, Квартал «Северный ветер»
Приморская
10 мин.
Строится
Посмотреть 62 квартиры в Квартале «Северный ветер»
2-комн. квартира 61,00 м2 22 280 000
Этаж 2/15
СПБ, Квартал «Северный ветер»
Приморская
10 мин.
Строится
2-комн. квартира 63,70 м2 23 910 000
Этаж 5/8
СПБ, Квартал «Северный ветер»
Приморская
10 мин.
Строится
2-комн. квартира 64,60 м2 24 840 000
Этаж 12/15
СПБ, Квартал «Северный ветер»
Приморская
10 мин.
Строится
2-комн. квартира 64,70 м2 25 300 000
Этаж 5/10
СПБ, Квартал «Северный ветер»
Приморская
10 мин.
Строится
Посмотреть 65 квартир в Квартале «Северный ветер»
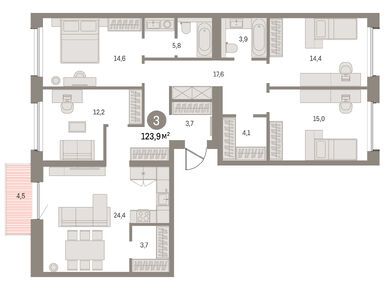
3-комн. квартира 62,10 м2 24 070 000
Этаж 6/12
СПБ, Квартал «Северный ветер»
Приморская
10 мин.
Строится
3-комн. квартира 70,20 м2 25 250 000
Этаж 2/9
СПБ, Квартал «Северный ветер»
Приморская
10 мин.
Строится
3-комн. квартира 70,30 м2 25 240 000
Этаж 6/9
СПБ, Квартал «Северный ветер»
Приморская
10 мин.
Строится
3-комн. квартира 71,10 м2 27 330 000
Этаж 2/8
СПБ, Квартал «Северный ветер»
Приморская
10 мин.
Строится
Посмотреть 63 квартиры в Квартале «Северный ветер»
4-комн. квартира 127,60 м2 47 620 000
Этаж 9/10
СПБ, Квартал «Северный ветер»
Приморская
10 мин.
Строится
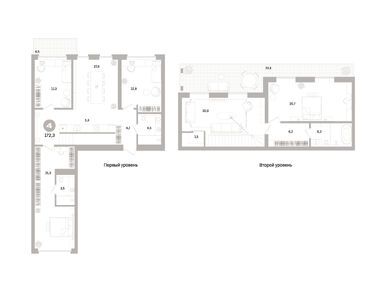
4-комн. квартира 172,30 м2 58 910 000
Этаж 7/8
СПБ, Квартал «Северный ветер»
Приморская
10 мин.
Строится
Посмотреть все спецпредложения