Переверните экран
Новостройки Квартиры Ипотека Медиа О проекте Контакты Реклама на сайте Vk Youtube Telegram Дзен Продавцы и застройщики Коммерческие помещения Квартиры на карте Эксперты и авторы Машиноместа Акции от застройщиков Банки и программы Апартаменты Новостройки на карте 4-комнатные и более Готовые новостройки 3-комнатные Военная ипотека Покупателю Новостройки Санкт-Петербурга Видеообзор новостроек Семейная ипотека Аналитика рынка Панорамы новостроек 1-комнатные Субсидированная застройщиком Мнение эксперта Студии Ипотечный калькулятор Новости недвижимости Новостройки Ленинградской области IT-ипотека Квартиры со скидками до 25% Новостройки премиум-класса Новостройки бизнес-класса Дома и коттеджи Бизнес-центры Бизнес-центры в Санкт-Петербурге Бизнес-центры рядом с метро Строящиеся бизнес-центры Бизнес-центры класса A
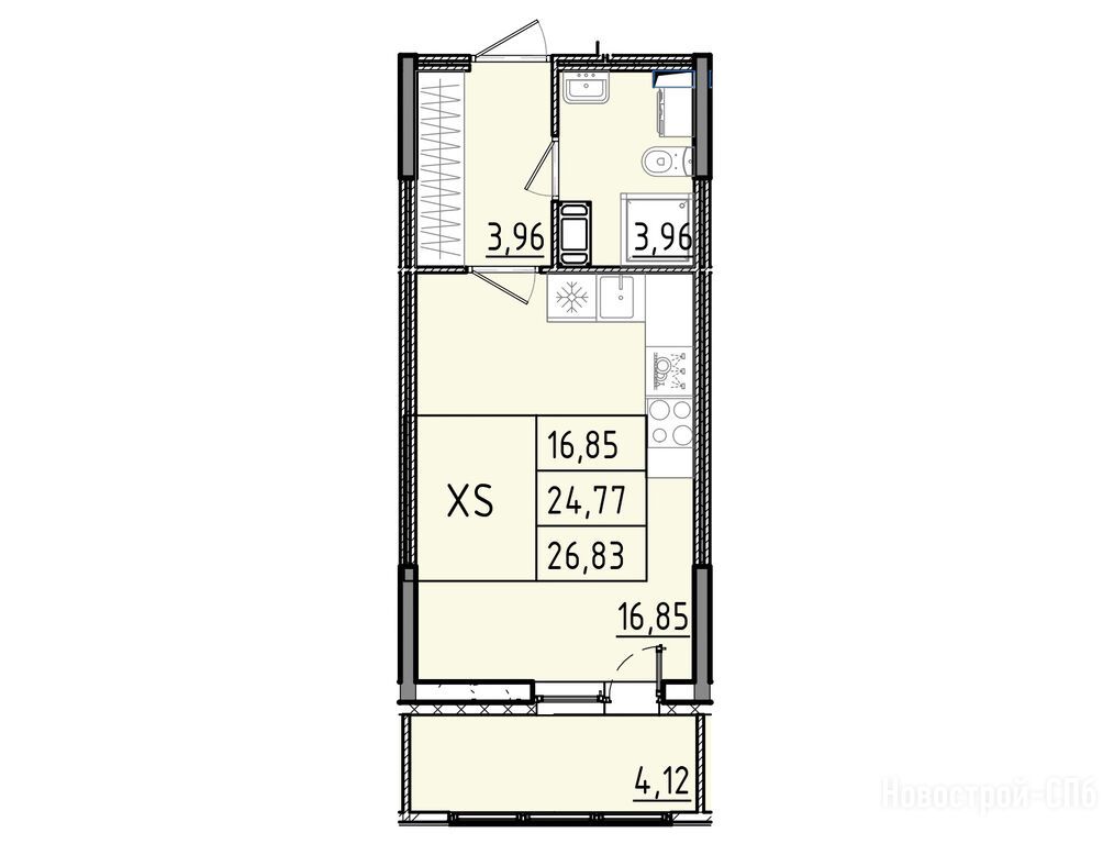
студия, 26.83 м2, 2 этаж
Срок сдачи 2 квартал 2027 года
4 500 030 
6 315 832
167 724 2
обновлено 16 декабря

Описание студии

Новостройка
Застройщик
Срок ГК
2 квартал 2027 года
Стадия строительства
котлован/фундамент
Тип проекта
Общая площадь
26.83 м2
Этаж
2 / 10
Отделка
чистовая

Расположение студии

Метро
Дом
1
Адрес
Ленинградская область, Всеволожский район, д. Новосергиевка

Способы покупки

Особенности

Продается студия в новостройке ЖК «Аквилон RekaPark» по адресу Ленинградская область, Всеволожский район, Ленинградская область, Всеволожский район, д. Новосергиевка. Общая площадь квартиры - 26.83 кв. м. Тип проекта, по которому построен дом — Кирпичный, компания-застройщик — Группа «Аквилон». Стоимость квартиры — 4 500 030 руб. Способы оплаты можно уточнить у продавца. Срок сдачи — 2 квартал 2027. Более подробная информация по телефону.
Инфоцентр новостроек
Инфоцентр новостроек
Время работы 9:00 — 21:00
Выбирайте квартиру в ЖК «Аквилон RekaPark» по ценам от застройщика
Посмотреть все спецпредложения
студия 23,90 м2 4 750 613
Этаж 6/10
ЛО, ЖК «Аквилон RekaPark»
Улица Дыбенко
10 мин.
Строится
студия 24,43 м2 5 357 078
Этаж 7/10
ЛО, ЖК «Аквилон RekaPark»
Улица Дыбенко
10 мин.
Строится
студия 24,72 м2 4 625 597
Этаж 5/10
ЛО, ЖК «Аквилон RekaPark»
Улица Дыбенко
10 мин.
Строится
студия 24,86 м2 4 723 707
Этаж 6/10
ЛО, ЖК «Аквилон RekaPark»
Улица Дыбенко
10 мин.
Строится
Посмотреть 131 квартира в ЖК «Аквилон RekaPark»
1-комн. квартира 34,02 м2 6 144 576
Этаж 4/10
ЛО, ЖК «Аквилон RekaPark»
Улица Дыбенко
10 мин.
Строится
1-комн. квартира 34,25 м2 6 361 455
Этаж 1/10
ЛО, ЖК «Аквилон RekaPark»
Улица Дыбенко
10 мин.
Строится
1-комн. квартира 35,52 м2 6 023 248
Этаж 3/10
ЛО, ЖК «Аквилон RekaPark»
Улица Дыбенко
10 мин.
Строится
1-комн. квартира 35,64 м2 6 539 707
Этаж 5/10
ЛО, ЖК «Аквилон RekaPark»
Улица Дыбенко
10 мин.
Строится
Посмотреть 29 квартир в ЖК «Аквилон RekaPark»
2-комн. квартира 33,96 м2 6 195 343
Этаж 5/10
ЛО, ЖК «Аквилон RekaPark»
Улица Дыбенко
10 мин.
Строится
2-комн. квартира 34,34 м2 6 320 394
Этаж 1/10
ЛО, ЖК «Аквилон RekaPark»
Улица Дыбенко
10 мин.
Строится
2-комн. квартира 34,58 м2 6 186 677
Этаж 4/10
ЛО, ЖК «Аквилон RekaPark»
Улица Дыбенко
10 мин.
Строится
2-комн. квартира 34,67 м2 6 263 220
Этаж 6/10
ЛО, ЖК «Аквилон RekaPark»
Улица Дыбенко
10 мин.
Строится
Посмотреть 56 квартир в ЖК «Аквилон RekaPark»
3-комн. квартира 52,99 м2 10 700 287
Этаж 9/10
ЛО, ЖК «Аквилон RekaPark»
Улица Дыбенко
10 мин.
Строится
3-комн. квартира 53,48 м2 10 114 597
Этаж 1/10
ЛО, ЖК «Аквилон RekaPark»
Улица Дыбенко
10 мин.
Строится
3-комн. квартира 54,17 м2 11 712 689
Этаж 7/10
ЛО, ЖК «Аквилон RekaPark»
Улица Дыбенко
10 мин.
Строится
3-комн. квартира 54,27 м2 11 190 390
Этаж 6/10
ЛО, ЖК «Аквилон RekaPark»
Улица Дыбенко
10 мин.
Строится
Посмотреть 50 квартир в ЖК «Аквилон RekaPark»
4-комн. квартира 74,17 м2 14 666 350
Этаж 7/10
ЛО, ЖК «Аквилон RekaPark»
Улица Дыбенко
10 мин.
Строится

Скидки и спецпредложения от застройщиков

ЖК «Аквилон RekaPark» на карте

Выгодные предложения на новостройки

Отзывы о ЖК «Аквилон RekaPark»

Самый полезный отзыв
ЛР
25 марта
Оценка:
Социальная инфраструктура
Планировки
Внешний вид фасада
Двор, окружение
Расположение
Внизу будут различные магазины, коворкинг и коммьюнити центр. Это именно то, что нужно для активной жизни: можно встретиться с друзьями или поучаствовать в мастер-классе. Разные удобства под рукой, а в город выбираться можно будет только для смены обстановки несколько раз в месяц.
Ответить
Полезный отзыв?
Самый новый отзыв
Н
31 августа
Оценка:
Планировки здесь просто великолепны - продуманные до мелочей, функциональные. А развитая инфраструктура обещает рост стоимости недвижимости, так что это отличная инвестиция
Ответить
Полезный отзыв?
Добавьте отзыв, заполнив личные данные, или сначала войдите на сайт, тогда информация будет автоматически взята из личного профиля.
Оценка*