Переверните экран
Поиск бизнес центров

Найдите современный офис в деловых районах Санкт-Петербурга

Найдите современный офис в деловых районах Санкт-Петербурга

Перейти к поиску
Новостройки Квартиры Ипотека Медиа О проекте Контакты Реклама на сайте Vk Youtube Telegram Дзен Продавцы и застройщики Коммерческие помещения Квартиры на карте Эксперты и авторы Машиноместа Акции от застройщиков Банки и программы Апартаменты Новостройки на карте 4-комнатные и более Готовые новостройки 3-комнатные Военная ипотека Покупателю Новостройки Санкт-Петербурга Видеообзор новостроек Семейная ипотека Аналитика рынка Панорамы новостроек 1-комнатные Субсидированная застройщиком Мнение эксперта Студии Ипотечный калькулятор Новости недвижимости Новостройки Ленинградской области IT-ипотека Квартиры со скидками до 25% Новостройки премиум-класса Новостройки бизнес-класса Дома и коттеджи Бизнес-центры Бизнес-центры в Санкт-Петербурге Бизнес-центры рядом с метро Строящиеся бизнес-центры Бизнес-центры класса A
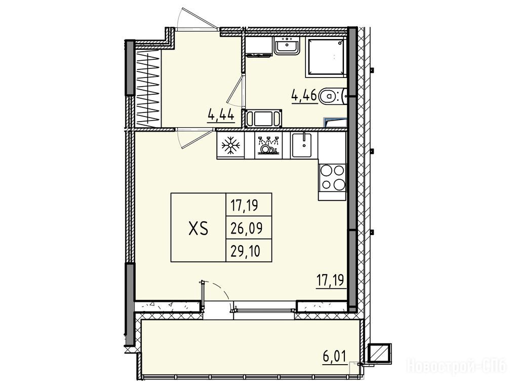
студия, 29.10 м2, 2 этаж
Срок сдачи 2 квартал 2027 года
4 882 572 
6 852 732
167 786 2
обновлено 3 февраля

Описание студии

Новостройка
Застройщик
Срок ГК
2 квартал 2027 года
Стадия строительства
котлован/фундамент
Тип проекта
Общая площадь
29.10 м2
Этаж
2 / 10
Отделка
чистовая

Расположение студии

Метро
Дом
1
Адрес
Ленинградская область, Всеволожский район, д. Новосергиевка

Способы покупки

Особенности

Продается студия в новостройке ЖК «Аквилон RekaPark» по адресу Ленинградская область, Всеволожский район, Ленинградская область, Всеволожский район, д. Новосергиевка. Общая площадь квартиры - 29.1 кв. м. Тип проекта, по которому построен дом — Кирпичный, компания-застройщик — Группа «Аквилон». Стоимость квартиры — 4 882 572 руб. Способы оплаты можно уточнить у продавца. Срок сдачи — 2 квартал 2027. Более подробная информация по телефону.
Инфоцентр новостроек
Инфоцентр новостроек
Время работы 9:00 — 21:00
Выбирайте квартиру в ЖК «Аквилон RekaPark» по ценам от застройщика
Посмотреть все спецпредложения
студия 23,90 м2 4 750 613
Этаж 6/10
ЛО, ЖК «Аквилон RekaPark»
Улица Дыбенко
10 мин.
Строится
студия 24,43 м2 5 357 078
Этаж 7/10
ЛО, ЖК «Аквилон RekaPark»
Улица Дыбенко
10 мин.
Строится
студия 24,72 м2 4 703 094
Этаж 5/10
ЛО, ЖК «Аквилон RekaPark»
Улица Дыбенко
10 мин.
Строится
студия 24,86 м2 4 723 707
Этаж 6/10
ЛО, ЖК «Аквилон RekaPark»
Улица Дыбенко
10 мин.
Строится
Посмотреть 126 квартир в ЖК «Аквилон RekaPark»
1-комн. квартира 34,02 м2 6 684 925
Этаж 6/10
ЛО, ЖК «Аквилон RekaPark»
Улица Дыбенко
10 мин.
Строится
1-комн. квартира 34,25 м2 6 662 652
Этаж 1/10
ЛО, ЖК «Аквилон RekaPark»
Улица Дыбенко
10 мин.
Строится
1-комн. квартира 35,52 м2 5 712 735
Этаж 3/10
ЛО, ЖК «Аквилон RekaPark»
Улица Дыбенко
10 мин.
Строится
1-комн. квартира 35,64 м2 6 737 866
Этаж 5/10
ЛО, ЖК «Аквилон RekaPark»
Улица Дыбенко
10 мин.
Строится
Посмотреть 27 квартир в ЖК «Аквилон RekaPark»
2-комн. квартира 33,96 м2 6 981 316
Этаж 7/10
ЛО, ЖК «Аквилон RekaPark»
Улица Дыбенко
10 мин.
Строится
2-комн. квартира 34,34 м2 6 861 548
Этаж 1/10
ЛО, ЖК «Аквилон RekaPark»
Улица Дыбенко
10 мин.
Строится
2-комн. квартира 34,58 м2 6 884 093
Этаж 6/10
ЛО, ЖК «Аквилон RekaPark»
Улица Дыбенко
10 мин.
Строится
2-комн. квартира 34,67 м2 6 582 063
Этаж 6/10
ЛО, ЖК «Аквилон RekaPark»
Улица Дыбенко
10 мин.
Строится
Посмотреть 56 квартир в ЖК «Аквилон RekaPark»
3-комн. квартира 52,99 м2 10 915 363
Этаж 9/10
ЛО, ЖК «Аквилон RekaPark»
Улица Дыбенко
10 мин.
Строится
3-комн. квартира 53,48 м2 10 317 900
Этаж 1/10
ЛО, ЖК «Аквилон RekaPark»
Улица Дыбенко
10 мин.
Строится
3-комн. квартира 54,17 м2 11 948 113
Этаж 7/10
ЛО, ЖК «Аквилон RekaPark»
Улица Дыбенко
10 мин.
Строится
3-комн. квартира 54,27 м2 11 595 779
Этаж 6/10
ЛО, ЖК «Аквилон RekaPark»
Улица Дыбенко
10 мин.
Строится
Посмотреть 56 квартир в ЖК «Аквилон RekaPark»
4-комн. квартира 74,17 м2 15 225 599
Этаж 7/10
ЛО, ЖК «Аквилон RekaPark»
Улица Дыбенко
10 мин.
Строится

Скидки и спецпредложения от застройщиков

ЖК «Аквилон RekaPark» на карте

Выгодные предложения на новостройки

Отзывы о ЖК «Аквилон RekaPark»

Самый полезный отзыв
ЛР
25 марта 2025
Оценка:
Социальная инфраструктура
Планировки
Внешний вид фасада
Двор, окружение
Расположение
Внизу будут различные магазины, коворкинг и коммьюнити центр. Это именно то, что нужно для активной жизни: можно встретиться с друзьями или поучаствовать в мастер-классе. Разные удобства под рукой, а в город выбираться можно будет только для смены обстановки несколько раз в месяц.
Ответить
Полезный отзыв?
Самый новый отзыв
С
17 декабря 2025
Оценка:
Планировки
Способы покупки
Двор, окружение
Смотрю как «комфорт без лишнего пафоса»: отзывы в основном про нормальную концепцию и понятную локацию у «Дыбенко». Но выбор пока больше «на перспективу» — район будет развиваться, а многие вещи проявляются только после заселения. Я бы оценивал так: если цена входа хорошая и устраивает срок ожидания — можно, но нужно трезво относиться к обещаниям и проверять реальные отзывы/документы.
Ответить
Полезный отзыв?
Добавьте отзыв, заполнив личные данные, или сначала войдите на сайт, тогда информация будет автоматически взята из личного профиля.
Оценка*