Переверните экран
Поиск бизнес центров

Найдите современный офис в деловых районах Санкт-Петербурга

Найдите современный офис в деловых районах Санкт-Петербурга

Перейти к поиску
Новостройки Квартиры Ипотека Медиа О проекте Контакты Реклама на сайте Vk Youtube Telegram Дзен Продавцы и застройщики Коммерческие помещения Квартиры на карте Эксперты и авторы Машиноместа Акции от застройщиков Банки и программы Апартаменты Новостройки на карте 4-комнатные и более Готовые новостройки 3-комнатные Военная ипотека Покупателю Новостройки Санкт-Петербурга Видеообзор новостроек Семейная ипотека Аналитика рынка Панорамы новостроек 1-комнатные Субсидированная застройщиком Мнение эксперта Студии Ипотечный калькулятор Новости недвижимости Новостройки Ленинградской области ИТ-ипотека Квартиры со скидками до 25% Новостройки премиум-класса Новостройки бизнес-класса Дома и коттеджи Коттеджные поселки в Санкт-Петербурге Коттеджные поселки в Ленинградской обл Готовые коттеджные поселки Строящиеся коттеджные поселки Коттеджные поселки у леса Коттеджные поселки у водоема Коттеджные поселки в ипотеку Бизнес-центры Коттеджи Ипотека со ставкой 0,1% Траншевая ипотека
1-комн. квартира, 38.00 м2, 3 этаж
Срок сдачи 3 квартал 2026 года
8 097 800 
213 100 2
обновлено 4 мая

Описание 1-комн. квартиры

Новостройка
Застройщик
Срок ГК
3 квартал 2026 года
Стадия строительства
отделка фасада и внутренние работы
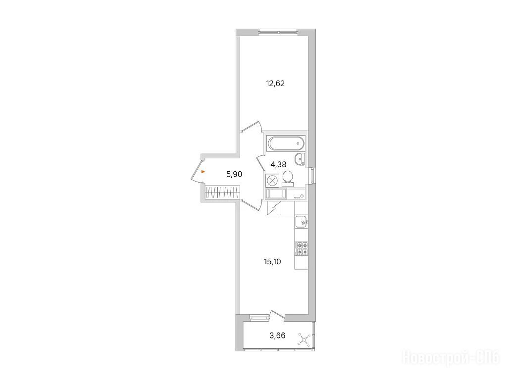
Общая площадь
38.00 м2
Жилая площадь
12.62 м2
Площадь кухни
15.10 м2
Этаж
3 / 8
Отделка
чистовая
Грузовой лифт
есть

Расположение 1-комн. квартиры

Дом
14.9
Адрес
ул. Ясная, секция 5

Способы покупки

Особенности

Продается однокомнатная квартира в новостройке ЖК «Ясно.Янино» по адресу Ленинградская область, Всеволожский район, Янино-1, ул. Ясная. Общая площадь квартиры - 38 кв. м. Тип проекта, по которому построен дом — Монолит, компания-застройщик — КВС. Стоимость квартиры — 8 097 800 руб. Способы оплаты можно уточнить у продавца. Срок сдачи — 3 квартал 2026. Более подробная информация по телефону.

Правовые документы

Инфоцентр новостроек
Инфоцентр новостроек
+7 (812) 424-49-09
Время работы 9:00 — 21:00
студия 22,84 м2 5 070 480
Этаж 5/8
ЛО, ЖК «Ясно.Янино»
Ладожская
20 мин.
Строится
студия 24,31 м2 5 212 064
Этаж 8/8
ЛО, ЖК «Ясно.Янино»
Ладожская
20 мин.
Строится
студия 24,37 м2 5 283 416
Этаж 2/8
ЛО, ЖК «Ясно.Янино»
Ладожская
20 мин.
Строится
студия 24,63 м2 4 805 313
Этаж 2/8
ЛО, ЖК «Ясно.Янино»
Ладожская
20 мин.
Строится
Посмотреть 62 квартиры в ЖК «Ясно.Янино»
1-комн. квартира 34,82 м2 7 218 186
Этаж 3/8
ЛО, ЖК «Ясно.Янино»
Ладожская
20 мин.
Строится
1-комн. квартира 34,85 м2 7 262 740
Этаж 4/8
ЛО, ЖК «Ясно.Янино»
Ладожская
20 мин.
Строится
1-комн. квартира 34,86 м2 7 216 020
Этаж 2/8
ЛО, ЖК «Ясно.Янино»
Ладожская
20 мин.
Строится
1-комн. квартира 34,91 м2 7 201 933
Этаж 2/8
ЛО, ЖК «Ясно.Янино»
Ладожская
20 мин.
Строится
Посмотреть 131 квартира в ЖК «Ясно.Янино»
2-комн. квартира 51,94 м2 10 886 624
Этаж 8/8
ЛО, ЖК «Ясно.Янино»
Ладожская
20 мин.
Строится
2-комн. квартира 57,13 м2 11 974 448
Этаж 4/8
ЛО, ЖК «Ясно.Янино»
Ладожская
20 мин.
Строится
2-комн. квартира 57,21 м2 11 773 818
Этаж 2/8
ЛО, ЖК «Ясно.Янино»
Ладожская
20 мин.
Строится
2-комн. квартира 57,72 м2 11 122 644
Этаж 1/8
ЛО, ЖК «Ясно.Янино»
Ладожская
20 мин.
Строится
Посмотреть 72 квартиры в ЖК «Ясно.Янино»
3-комн. квартира 73,95 м2 15 832 695
Этаж 7/8
ЛО, ЖК «Ясно.Янино»
Ладожская
20 мин.
Строится
3-комн. квартира 81,42 м2 18 539 334
Этаж 3/8
ЛО, ЖК «Ясно.Янино»
Ладожская
20 мин.
Строится
3-комн. квартира 82,54 м2 18 422 928
Этаж 2/8
ЛО, ЖК «Ясно.Янино»
Ладожская
20 мин.
Строится
Посмотреть 7 квартир в ЖК «Ясно.Янино»

Скидки и спецпредложения от застройщиков

ЖК «Ясно.Янино» на карте

Выгодные предложения на новостройки

Отзывы о ЖК «Ясно.Янино»

Самый полезный отзыв
М
08 декабря 2017
Оценка:
О комплексе знаю и от друзей, и от коллег по работе. теперь вот сама подхожу к покупке квартиры, поэтому посматриваю на Янино. слышала, что 10 декабря будет бесплатная экскурсия от застройщика на объект, хочу съездить глянуть. может скидку еще какую предложат)
Ответить
Самый новый отзыв
А
22 апреля
Оценка:
Здесь реально спокойно, нет ощущения огромного города. Лес рядом, воздух свежее. Магазинов немного, но для жизни хватает.
Ответить

Оставить отзыв

Добавьте отзыв, заполнив личные данные, или сначала войдите на сайт, тогда информация будет автоматически взята из личного профиля.
Оценка*