Переверните экран
Поиск домов и коттеджей

Найдите идеальный дом или коттедж в Санкт-Петербурге и области

Найдите идеальный дом или коттедж в Санкт-Петербурге и области

Перейти к поиску
Новостройки Квартиры Ипотека Медиа О проекте Контакты Реклама на сайте Vk Youtube Telegram Дзен Продавцы и застройщики Коммерческие помещения Квартиры на карте Эксперты и авторы Машиноместа Акции от застройщиков Банки и программы Апартаменты Новостройки на карте 4-комнатные и более Готовые новостройки 3-комнатные Военная ипотека Покупателю Новостройки Санкт-Петербурга Видеообзор новостроек Семейная ипотека Аналитика рынка Панорамы новостроек 1-комнатные Субсидированная застройщиком Мнение эксперта Студии Ипотечный калькулятор Новости недвижимости Новостройки Ленинградской области IT-ипотека Квартиры со скидками до 25% Новостройки премиум-класса Новостройки бизнес-класса Дома и коттеджи Бизнес-центры Бизнес-центры в Санкт-Петербурге Бизнес-центры рядом с метро Строящиеся бизнес-центры Бизнес-центры класса A
студия, 24.63 м2, 8 этаж
Срок сдачи 3 квартал 2026 года
4 763 442 
193 400 2
обновлено 5 декабря

Описание студии

Новостройка
Застройщик
Срок ГК
3 квартал 2026 года
Стадия строительства
монтаж нижних этажей
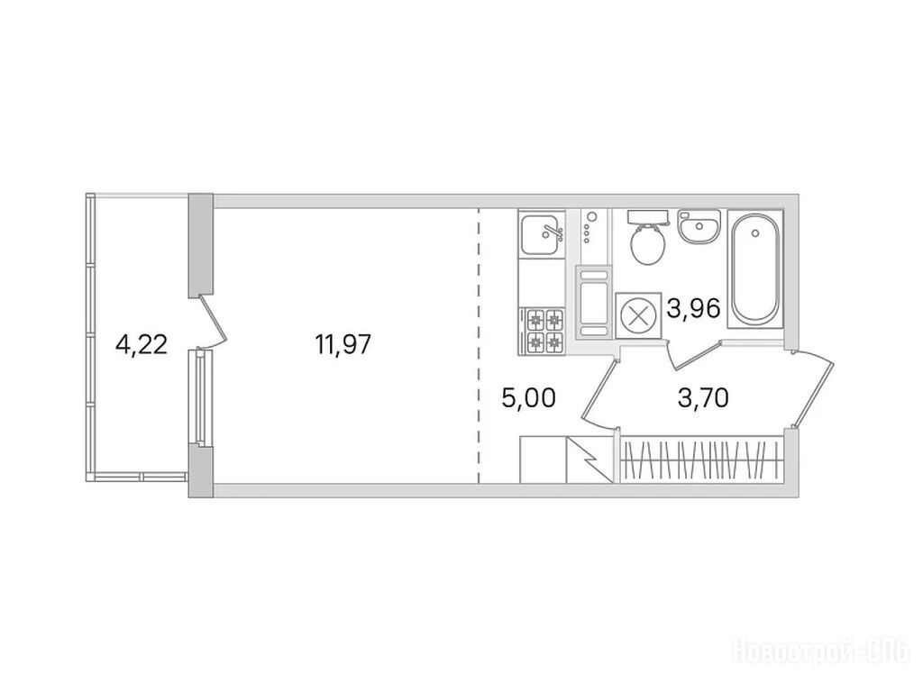
Общая площадь
24.63 м2
Жилая площадь
11.97 м2
Площадь кухни
5.00 м2
Этаж
8 / 8
Отделка
чистовая
Грузовой лифт
есть

Расположение студии

Дом
14.8
Адрес
ул. Ясная, секция 3

Способы покупки

Особенности

Продается студия в новостройке ЖК «Ясно.Янино» по адресу Ленинградская область, Всеволожский район, Янино-1, ул. Ясная. Общая площадь квартиры - 24.63 кв. м. Тип проекта, по которому построен дом — Монолит, компания-застройщик — КВС. Стоимость квартиры — 4 763 442 руб. Способы оплаты можно уточнить у продавца. Срок сдачи — 3 квартал 2026. Более подробная информация по телефону.

Правовые документы

Инфоцентр новостроек
Инфоцентр новостроек
+7 (812) 424-49-09
Время работы 9:00 — 21:00

Похожие квартиры в ЖК «Ясно.Янино»

2 этаж
из 8 3 квартал 2026
Ленинградская область, Всеволожский район
Ладожская
20 мин.
14.8
Корпус
чистовая
Отделка
2.77 м
Потолки
ЖК «Ясно.Янино»
4 657 533
Промсвязьбанк, Металлинвестбанк, ДОМ.РФ, Банк Санкт-Петербург, Сургутнефтегазбанк (СНГБ), СберБанк, Газпромбанк
6.00%
Ставка
20.01%
Первый взнос
от 27 924 /мес.
Все варианты
2 этаж
из 8 3 квартал 2026
Ленинградская область, Всеволожский район
Ладожская
20 мин.
14.8
Корпус
чистовая
Отделка
2.77 м
Потолки
ЖК «Ясно.Янино»
4 657 533
Промсвязьбанк, Металлинвестбанк, ДОМ.РФ, Банк Санкт-Петербург, Сургутнефтегазбанк (СНГБ), СберБанк, Газпромбанк
6.00%
Ставка
20.01%
Первый взнос
от 27 924 /мес.
Все варианты
2 этаж
из 8 3 квартал 2026
Ленинградская область, Всеволожский район
Ладожская
20 мин.
14.8
Корпус
чистовая
Отделка
2.77 м
Потолки
ЖК «Ясно.Янино»
4 667 385
Промсвязьбанк, Металлинвестбанк, ДОМ.РФ, Банк Санкт-Петербург, Сургутнефтегазбанк (СНГБ), СберБанк, Газпромбанк
6.00%
Ставка
20.01%
Первый взнос
от 27 983 /мес.
Все варианты
8 этаж
из 8 3 квартал 2026
Ленинградская область, Всеволожский район
Ладожская
20 мин.
14.8
Корпус
чистовая
Отделка
2.77 м
Потолки
ЖК «Ясно.Янино»
4 760 979
Промсвязьбанк, Металлинвестбанк, ДОМ.РФ, Банк Санкт-Петербург, Сургутнефтегазбанк (СНГБ), СберБанк, Газпромбанк
6.00%
Ставка
20.01%
Первый взнос
от 28 544 /мес.
Все варианты
6 этаж
из 8 3 квартал 2026
Ленинградская область, Всеволожский район
Ладожская
20 мин.
14.8
Корпус
чистовая
Отделка
2.77 м
Потолки
ЖК «Ясно.Янино»
4 775 757
Промсвязьбанк, Металлинвестбанк, ДОМ.РФ, Банк Санкт-Петербург, Сургутнефтегазбанк (СНГБ), СберБанк, Газпромбанк
6.00%
Ставка
20.01%
Первый взнос
от 28 633 /мес.
Все варианты
7 этаж
из 8 3 квартал 2026
Ленинградская область, Всеволожский район
Ладожская
20 мин.
14.8
Корпус
чистовая
Отделка
2.77 м
Потолки
ЖК «Ясно.Янино»
4 775 757
Промсвязьбанк, Металлинвестбанк, ДОМ.РФ, Банк Санкт-Петербург, Сургутнефтегазбанк (СНГБ), СберБанк, Газпромбанк
6.00%
Ставка
20.01%
Первый взнос
от 28 633 /мес.
Все варианты
5 этаж
из 8 3 квартал 2026
Ленинградская область, Всеволожский район
Ладожская
20 мин.
14.8
Корпус
чистовая
Отделка
2.77 м
Потолки
ЖК «Ясно.Янино»
4 775 757
Промсвязьбанк, Металлинвестбанк, ДОМ.РФ, Банк Санкт-Петербург, Сургутнефтегазбанк (СНГБ), СберБанк, Газпромбанк
6.00%
Ставка
20.01%
Первый взнос
от 28 633 /мес.
Все варианты
3 этаж
из 8 3 квартал 2026
Ленинградская область, Всеволожский район
Ладожская
20 мин.
14.8
Корпус
чистовая
Отделка
2.77 м
Потолки
ЖК «Ясно.Янино»
4 775 757
Промсвязьбанк, Металлинвестбанк, ДОМ.РФ, Банк Санкт-Петербург, Сургутнефтегазбанк (СНГБ), СберБанк, Газпромбанк
6.00%
Ставка
20.01%
Первый взнос
от 28 633 /мес.
Все варианты
3 этаж
из 8 3 квартал 2026
Ленинградская область, Всеволожский район
Ладожская
20 мин.
14.8
Корпус
чистовая
Отделка
2.77 м
Потолки
ЖК «Ясно.Янино»
4 775 757
Промсвязьбанк, Металлинвестбанк, ДОМ.РФ, Банк Санкт-Петербург, Сургутнефтегазбанк (СНГБ), СберБанк, Газпромбанк
6.00%
Ставка
20.01%
Первый взнос
от 28 633 /мес.
Все варианты
6 этаж
из 8 3 квартал 2026
Ленинградская область, Всеволожский район
Ладожская
20 мин.
14.8
Корпус
чистовая
Отделка
2.77 м
Потолки
ЖК «Ясно.Янино»
4 775 757
Промсвязьбанк, Металлинвестбанк, ДОМ.РФ, Банк Санкт-Петербург, Сургутнефтегазбанк (СНГБ), СберБанк, Газпромбанк
6.00%
Ставка
20.01%
Первый взнос
от 28 633 /мес.
Все варианты
5 этаж
из 8 3 квартал 2026
Ленинградская область, Всеволожский район
Ладожская
20 мин.
14.8
Корпус
чистовая
Отделка
2.77 м
Потолки
ЖК «Ясно.Янино»
4 775 757
Промсвязьбанк, Металлинвестбанк, ДОМ.РФ, Банк Санкт-Петербург, Сургутнефтегазбанк (СНГБ), СберБанк, Газпромбанк
6.00%
Ставка
20.01%
Первый взнос
от 28 633 /мес.
Все варианты
4 этаж
из 8 3 квартал 2026
Ленинградская область, Всеволожский район
Ладожская
20 мин.
14.8
Корпус
чистовая
Отделка
2.77 м
Потолки
ЖК «Ясно.Янино»
4 775 757
Промсвязьбанк, Металлинвестбанк, ДОМ.РФ, Банк Санкт-Петербург, Сургутнефтегазбанк (СНГБ), СберБанк, Газпромбанк
6.00%
Ставка
20.01%
Первый взнос
от 28 633 /мес.
Все варианты
3 этаж
из 8 3 квартал 2026
Ленинградская область, Всеволожский район
Ладожская
20 мин.
14.8
Корпус
чистовая
Отделка
2.77 м
Потолки
ЖК «Ясно.Янино»
4 778 220
Промсвязьбанк, Металлинвестбанк, ДОМ.РФ, Банк Санкт-Петербург, Сургутнефтегазбанк (СНГБ), СберБанк, Газпромбанк
6.00%
Ставка
20.01%
Первый взнос
от 28 648 /мес.
Все варианты
4 этаж
из 8 3 квартал 2026
Ленинградская область, Всеволожский район
Ладожская
20 мин.
14.8
Корпус
чистовая
Отделка
2.77 м
Потолки
ЖК «Ясно.Янино»
4 778 220
Промсвязьбанк, Металлинвестбанк, ДОМ.РФ, Банк Санкт-Петербург, Сургутнефтегазбанк (СНГБ), СберБанк, Газпромбанк
6.00%
Ставка
20.01%
Первый взнос
от 28 648 /мес.
Все варианты
7 этаж
из 8 3 квартал 2026
Ленинградская область, Всеволожский район
Ладожская
20 мин.
14.8
Корпус
чистовая
Отделка
2.77 м
Потолки
ЖК «Ясно.Янино»
4 778 220
Промсвязьбанк, Металлинвестбанк, ДОМ.РФ, Банк Санкт-Петербург, Сургутнефтегазбанк (СНГБ), СберБанк, Газпромбанк
6.00%
Ставка
20.01%
Первый взнос
от 28 648 /мес.
Все варианты
5 этаж
из 8 3 квартал 2026
Ленинградская область, Всеволожский район
Ладожская
20 мин.
14.8
Корпус
чистовая
Отделка
2.77 м
Потолки
ЖК «Ясно.Янино»
4 778 220
Промсвязьбанк, Металлинвестбанк, ДОМ.РФ, Банк Санкт-Петербург, Сургутнефтегазбанк (СНГБ), СберБанк, Газпромбанк
6.00%
Ставка
20.01%
Первый взнос
от 28 648 /мес.
Все варианты
Посмотреть все спецпредложения
студия 22,84 м2 4 906 032
Этаж 2/8
ЛО, ЖК «Ясно.Янино»
Ладожская
20 мин.
Строится
студия 23,55 м2 4 980 825
Этаж 7/8
ЛО, ЖК «Ясно.Янино»
Ладожская
20 мин.
Строится
студия 24,28 м2 5 059 952
Этаж 8/8
ЛО, ЖК «Ясно.Янино»
Ладожская
20 мин.
Строится
студия 24,31 м2 5 066 204
Этаж 8/8
ЛО, ЖК «Ясно.Янино»
Ладожская
20 мин.
Строится
Посмотреть 107 квартир в ЖК «Ясно.Янино»
1-комн. квартира 34,82 м2 6 939 626
Этаж 3/8
ЛО, ЖК «Ясно.Янино»
Ладожская
20 мин.
Строится
1-комн. квартира 34,85 м2 6 942 120
Этаж 2/8
ЛО, ЖК «Ясно.Янино»
Ладожская
20 мин.
Строится
1-комн. квартира 34,86 м2 6 937 140
Этаж 2/8
ЛО, ЖК «Ясно.Янино»
Ладожская
20 мин.
Строится
1-комн. квартира 34,91 м2 6 922 653
Этаж 2/8
ЛО, ЖК «Ясно.Янино»
Ладожская
20 мин.
Строится
Посмотреть 220 квартир в ЖК «Ясно.Янино»
2-комн. квартира 51,94 м2 10 040 002
Этаж 2/8
ЛО, ЖК «Ясно.Янино»
Ладожская
20 мин.
Строится
2-комн. квартира 57,13 м2 11 048 942
Этаж 2/8
ЛО, ЖК «Ясно.Янино»
Ладожская
20 мин.
Строится
2-комн. квартира 57,21 м2 10 915 668
Этаж 2/8
ЛО, ЖК «Ясно.Янино»
Ладожская
20 мин.
Строится
2-комн. квартира 57,72 м2 10 256 844
Этаж 1/8
ЛО, ЖК «Ясно.Янино»
Ладожская
20 мин.
Строится
Посмотреть 117 квартир в ЖК «Ясно.Янино»
3-комн. квартира 73,71 м2 15 560 181
Этаж 7/8
ЛО, ЖК «Ясно.Янино»
Ладожская
20 мин.
Строится
3-комн. квартира 73,95 м2 14 501 595
Этаж 7/8
ЛО, ЖК «Ясно.Янино»
Ладожская
20 мин.
Строится
3-комн. квартира 81,42 м2 17 073 774
Этаж 3/8
ЛО, ЖК «Ясно.Янино»
Ладожская
20 мин.
Строится
Посмотреть 7 квартир в ЖК «Ясно.Янино»

Скидки и спецпредложения от застройщиков

ЖК «Ясно.Янино» на карте

Выгодные предложения на новостройки

Отзывы о ЖК «Ясно.Янино»

Самый полезный отзыв
М
08 декабря 2017
Оценка:
О комплексе знаю и от друзей, и от коллег по работе. теперь вот сама подхожу к покупке квартиры, поэтому посматриваю на Янино. слышала, что 10 декабря будет бесплатная экскурсия от застройщика на объект, хочу съездить глянуть. может скидку еще какую предложат)
Ответить
Полезный отзыв?
Самый новый отзыв
МВ
26 ноября
Оценка:
Экология
Планировки
Внешний вид фасада
Входные группы
Транспортная доступность
В основном ходим на соседнюю детскую площадку, которая побольше. Иногда гуляем в лесопарке, народу там порой много гуляет в хорошую погоду. Красивые рисунки на домах, контингент разный. Но в основном родители с маленькими детьми или много подростков.
Ответить
Полезный отзыв?
Добавьте отзыв, заполнив личные данные, или сначала войдите на сайт, тогда информация будет автоматически взята из личного профиля.
Оценка*