Переверните экран
Новостройки Квартиры Ипотека Медиа О проекте Контакты Реклама на сайте Vk Youtube Telegram Дзен Продавцы и застройщики Коммерческие помещения Квартиры на карте Эксперты и авторы Машиноместа Акции от застройщиков Банки и программы Апартаменты Новостройки на карте 4-комнатные и более Готовые новостройки 3-комнатные Военная ипотека Покупателю Новостройки Санкт-Петербурга Видеообзор новостроек Семейная ипотека Аналитика рынка Панорамы новостроек 1-комнатные Субсидированная застройщиком Мнение эксперта Студии Ипотечный калькулятор Новости недвижимости Новостройки Ленинградской области IT-ипотека Квартиры со скидками до 25% Новостройки премиум-класса Новостройки бизнес-класса Дома и коттеджи Бизнес-центры Бизнес-центры в Санкт-Петербурге Бизнес-центры рядом с метро Строящиеся бизнес-центры Бизнес-центры класса A
2-комн. квартира, 59.10 м2, 2 этаж
Срок сдачи 4 квартал 2025 года
7 502 609 
8 336 232
126 948 2
обновлено 17 декабря

Описание 2-комн. квартиры

Новостройка
Застройщик
Срок ГК
4 квартал 2025 года
Стадия строительства
монтаж верхних этажей
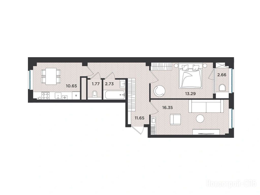
Общая площадь
59.10 м2
Жилая площадь
29.64 м2
Площадь кухни
10.65 м2
Этаж
2 / 4

Расположение 2-комн. квартиры

Дом
ТХ-4
Адрес
д. Касимово, Цветочная улица, секция 1

Способы покупки

Особенности

Продается двухкомнатная квартира в новостройке ЖК «Новокасимово» по адресу Ленинградская область, Всеволожский район, д. Касимово, Цветочная улица. Общая площадь квартиры - 59.1 кв. м. Тип проекта, по которому построен дом — Монолитно-каркасный, компания-застройщик — ГК СМК. Стоимость квартиры — 7 502 609 руб. Способы оплаты можно уточнить у продавца. Срок сдачи — 4 квартал 2025. Более подробная информация по телефону.
Инфоцентр новостроек
Инфоцентр новостроек
+7 (812) 424-49-09
Время работы 9:00 — 21:00

Похожие квартиры в ЖК «Новокасимово»

3 этаж
из 4 4 квартал 2025
Ленинградская область, Ленинградская область
Проспект Просвещения
25 мин.
ТХ-4
Корпус
нет данных
Отделка
2.68 м
Потолки
ЖК «Новокасимово»
7 502 609 8 336 232
ВТБ, Промсвязьбанк, Т-Банк
6.00%
Ставка
20.10%
Первый взнос
от 44 982 /мес.
Все варианты
2 этаж
из 4 4 квартал 2025
Ленинградская область, Ленинградская область
Проспект Просвещения
25 мин.
ТХ-4
Корпус
нет данных
Отделка
2.68 м
Потолки
ЖК «Новокасимово»
7 502 609 8 336 232
ВТБ, Промсвязьбанк, Т-Банк
6.00%
Ставка
20.10%
Первый взнос
от 44 982 /мес.
Все варианты
4 этаж
из 4 4 квартал 2025
Ленинградская область, Ленинградская область
Проспект Просвещения
25 мин.
ТХ-4
Корпус
нет данных
Отделка
2.68 м
Потолки
ЖК «Новокасимово»
7 502 609 8 336 232
ВТБ, Промсвязьбанк, Т-Банк
6.00%
Ставка
20.10%
Первый взнос
от 44 982 /мес.
Все варианты
Посмотреть все спецпредложения
Этаж 3/4
ЛО, ЖК «Новокасимово»
Проспект Просвещения
25 мин.
Строится
Этаж 1/4
ЛО, ЖК «Новокасимово»
Проспект Просвещения
25 мин.
Строится
Этаж 1/4
ЛО, ЖК «Новокасимово»
Проспект Просвещения
25 мин.
Строится
Этаж 3/4
ЛО, ЖК «Новокасимово»
Проспект Просвещения
25 мин.
Строится
Посмотреть 119 квартир в ЖК «Новокасимово»
Этаж 3/3
ЛО, ЖК «Новокасимово»
Проспект Просвещения
25 мин.
Сдан
Этаж 1/3
ЛО, ЖК «Новокасимово»
Проспект Просвещения
25 мин.
Сдан
Этаж 1/3
ЛО, ЖК «Новокасимово»
Проспект Просвещения
25 мин.
Сдан
Этаж 1/3
ЛО, ЖК «Новокасимово»
Проспект Просвещения
25 мин.
Сдан
Посмотреть 40 квартир в ЖК «Новокасимово»
Этаж 3/4
ЛО, ЖК «Новокасимово»
Проспект Просвещения
25 мин.
Строится
Этаж 1/4
ЛО, ЖК «Новокасимово»
Проспект Просвещения
25 мин.
Строится
Этаж 1/4
ЛО, ЖК «Новокасимово»
Проспект Просвещения
25 мин.
Строится
Этаж 1/3
ЛО, ЖК «Новокасимово»
Проспект Просвещения
25 мин.
Сдан
Посмотреть 24 квартиры в ЖК «Новокасимово»

Скидки и спецпредложения от застройщиков

ЖК «Новокасимово» на карте

Выгодные предложения на новостройки

Отзывы о ЖК «Новокасимово»

Самый полезный отзыв
А
21 февраля 2024
Оценка:
Место для жизни прекрасное. Квартиру сдали вовремя, небольшие косяки быстро устранили. Строится садик и торговый центр.
Ответить
Полезный отзыв?
Самый новый отзыв
К
23 ноября
Оценка:
Экология
Планировки
Способы покупки
Двор, окружение
Транспортная доступность
Долго шли к покупке квартиры, еще не въехали, ждем выдачи ключей. Мне нравится район и стоимость, если сравнивать с другими комплексами, нормальная. Есть где поиграть ребенку, школа тоже в районе есть, нам пока далеко до этого, но надеюсь что все будет хорошо.
Ответить
Полезный отзыв?
Добавьте отзыв, заполнив личные данные, или сначала войдите на сайт, тогда информация будет автоматически взята из личного профиля.
Оценка*