Переверните экран
Новостройки Квартиры Ипотека Медиа О проекте Контакты Реклама на сайте Vk Youtube Telegram Дзен Продавцы и застройщики Коммерческие помещения Квартиры на карте Эксперты и авторы Машиноместа Акции от застройщиков Банки и программы Апартаменты Новостройки на карте 4-комнатные и более Готовые новостройки 3-комнатные Военная ипотека Покупателю Новостройки Санкт-Петербурга Видеообзор новостроек Семейная ипотека Аналитика рынка Панорамы новостроек 1-комнатные Субсидированная застройщиком Мнение эксперта Студии Ипотечный калькулятор Новости недвижимости Новостройки Ленинградской области IT-ипотека Квартиры со скидками до 25% Новостройки премиум-класса Новостройки бизнес-класса Дома и коттеджи Бизнес-центры Бизнес-центры в Санкт-Петербурге Бизнес-центры рядом с метро Строящиеся бизнес-центры Бизнес-центры класса A

Торговое помещение, 57.80 м 2

Ленинградская область, Ломоносовский район, Лаголово, жилой комплекс А101 Лаголово, 1.3-1
12 088 870
209 150 2
обновлено 17 декабря

Описание

Номер лота
2
Новостройка
Срок ГК
3 квартал 2026
Стадия строительства
Тип здания
встроенное помещение
Этаж
1
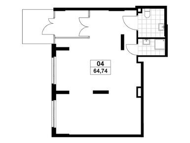
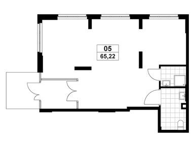
Площадь
57.80 м2
Высота потолка
4.45
Окна
с видом во двор и на улицу
Вход в помещение
отдельный с улицы
Выделенная электрическая мощность
9 кВт
Водопровод
есть
Канализация
есть
Рекомендованное назначение
Торговое

Расположение

Район
Ломоносовский район
Поселок
Лаголово
Дом
1.3-1
Адрес
жилой комплекс А101 Лаголово, 1.3-1

Особенности

Продаётся торговое помещение площадью 57.8 кв. м. в новостройке ЖК «А101 Лаголово» по адресу Ленинградская область, Ломоносовский район, Лаголово, жилой комплекс А101 Лаголово, 1.3-1. Окна с видом во двор и на улицу. Высота потолков 4.45 м. Выделенная электрическая мощность — 9 кВт. Отдельный вход с улицы. Стоимость помещения — 12 088 870 руб. Способы оплаты и более подробная информация по телефону.

Планировка

Корпус 1.3-1 (ГК 3 квартал 2026)
Посмотреть все спецпредложения

Еще помещения в ЖК «А101 Лаголово»

Продажа
3 квартал 2028
Ленинградская область, Ломоносовский район
Проспект Ветеранов
25 мин.
4.25
Высота потолка
Паркинг
Окна
отдельный с улицы
Вход
1.3.4.3
Корпус
ЖК «А101 Лаголово»
Продажа
3 квартал 2028
Ленинградская область, Ломоносовский район
Проспект Ветеранов
25 мин.
4.25
Высота потолка
Паркинг
Окна
отдельный с улицы
Вход
1.3.4.3
Корпус
ЖК «А101 Лаголово»
Продажа
3 квартал 2028
Ленинградская область, Ломоносовский район
Проспект Ветеранов
25 мин.
4.25
Высота потолка
Паркинг
Окна
отдельный с улицы
Вход
1.3.4.4
Корпус
ЖК «А101 Лаголово»
Продажа
3 квартал 2028
Ленинградская область, Ломоносовский район
Проспект Ветеранов
25 мин.
4.25
Высота потолка
Паркинг
Окна
отдельный с улицы
Вход
1.3.4.4
Корпус
ЖК «А101 Лаголово»

Скидки и спецпредложения от застройщиков

ЖК «А101 Лаголово» на карте

Выгодные предложения на новостройки