Переверните экран
Новостройки Квартиры Ипотека Медиа О проекте Контакты Реклама на сайте Vk Youtube Telegram Дзен Продавцы и застройщики Коммерческие помещения Квартиры на карте Эксперты и авторы Машиноместа Акции от застройщиков Банки и программы Апартаменты Новостройки на карте 4-комнатные и более Готовые новостройки 3-комнатные Военная ипотека Покупателю Новостройки Санкт-Петербурга Видеообзор новостроек Семейная ипотека Аналитика рынка Панорамы новостроек 1-комнатные Субсидированная застройщиком Мнение эксперта Студии Ипотечный калькулятор Новости недвижимости Новостройки Ленинградской области IT-ипотека Квартиры со скидками до 25% Новостройки премиум-класса Новостройки бизнес-класса Дома и коттеджи Бизнес-центры Бизнес-центры в Санкт-Петербурге Бизнес-центры рядом с метро Строящиеся бизнес-центры Бизнес-центры класса A
Данное предложение на 15.12.2025 неактуально. Пожалуйста, ознакомьтесь с другими похожими предложениями в ЖК «Янила Форест».

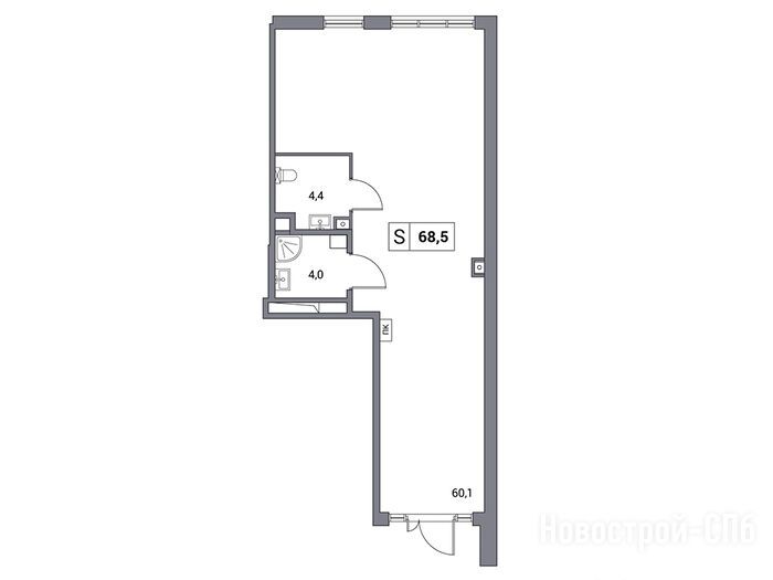
Помещение свободного назначения, 68.50 м 2

Ленинградская область, Всеволожский район, Янино-1, ул. Голландская
15 487 850
226 100 2
обновлено 31 октября

Описание

Номер лота
8-Н
Новостройка
Срок ГК
4 квартал 2026
Стадия строительства
монтаж средних этажей
Тип здания
встроенное помещение
Этаж
1
Площадь
68.50 м2
Окна
с видом во двор
Вход в помещение
отдельный с улицы
Водопровод
есть
Канализация
есть
Рекомендованное назначение
Свободное назначение

Расположение

Район
Всеволожский район
Поселок
Янино-1
Метро
Дом
2
Адрес
ул. Голландская , секция 4

Особенности

Продаётся помещение свободного назначения площадью 68.5 кв. м. в новостройке ЖК «Янила Форест» по адресу Ленинградская область, Всеволожский район, Янино-1, ул. Голландская. Окна с видом во двор. Высота потолков 0.00 м. Отдельный вход с улицы. Стоимость помещения — 15 487 850 руб. Способы оплаты и более подробная информация по телефону.

Планировка

Корпус 2, секция 4 (ГК 4 квартал 2026)
Посмотреть все спецпредложения

Еще помещения в ЖК «Янила Форест»

Продажа
4 квартал 2026
Ленинградская область, Всеволожский район
Ладожская
26 мин.
0.00
Высота потолка
Паркинг
Окна
отдельный с улицы
Вход
2
Корпус
ЖК «Янила Форест»
Продажа
3 квартал 2028
Ленинградская область, Всеволожский район
Ладожская
26 мин.
Высота потолка
Паркинг
Окна
Вход
3
Корпус
ЖК «Янила Форест»
Продажа
3 квартал 2028
Ленинградская область, Всеволожский район
Ладожская
26 мин.
Высота потолка
Паркинг
Окна
Вход
3
Корпус
ЖК «Янила Форест»
Продажа
3 квартал 2028
Ленинградская область, Всеволожский район
Ладожская
26 мин.
Высота потолка
Паркинг
Окна
Вход
3
Корпус
ЖК «Янила Форест»

Скидки и спецпредложения от застройщиков

ЖК «Янила Форест» на карте

Выгодные предложения на новостройки