Переверните экран
Новостройки Квартиры Ипотека Медиа О проекте Контакты Реклама на сайте Vk Youtube Telegram Дзен Продавцы и застройщики Коммерческие помещения Квартиры на карте Эксперты и авторы Машиноместа Акции от застройщиков Банки и программы Апартаменты Новостройки на карте 4-комнатные и более Готовые новостройки 3-комнатные Военная ипотека Покупателю Новостройки Санкт-Петербурга Видеообзор новостроек Семейная ипотека Аналитика рынка Панорамы новостроек 1-комнатные Субсидированная застройщиком Мнение эксперта Студии Ипотечный калькулятор Новости недвижимости Новостройки Ленинградской области IT-ипотека Квартиры со скидками до 25% Новостройки премиум-класса Новостройки бизнес-класса Дома и коттеджи Бизнес-центры Бизнес-центры в Санкт-Петербурге Бизнес-центры рядом с метро Строящиеся бизнес-центры Бизнес-центры класса A
Данное предложение на 18.12.2025 неактуально. Пожалуйста, ознакомьтесь с другими похожими предложениями в ЖК «Пейзажный квартал» (Цветной город).

Помещение свободного назначения, 73.80 м 2

Санкт-Петербург, Красногвардейский, Пейзажная улица, 23
16 575 480
224 600 2
обновлено 01 декабря

Описание

Номер лота
9
Срок ГК
4 квартал 2026
Тип здания
встроенное помещение
Этаж
1
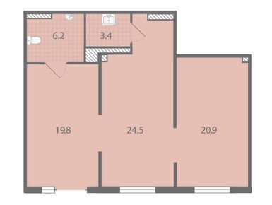
Площадь
73.80 м2
Высота потолка
2.58
Рекомендованное назначение
Офис

Расположение

Район
Красногвардейский
Ж/Д-станция
Девяткино
13 мин.
Дом
4
Адрес
Пейзажная улица, 23

Особенности

Продаётся помещение свободного назначения площадью 73.8 кв. м. в новостройке ЖК «Пейзажный квартал» (Цветной город) по адресу Санкт-Петербург, Красногвардейский, Пейзажная улица, 23. Высота потолков 2.58 м. Стоимость помещения — 16 575 480 руб. Способы оплаты и более подробная информация по телефону.

Планировка

Корпус 4 (ГК 4 квартал 2026)
Посмотреть все спецпредложения

Еще помещения в ЖК «Пейзажный квартал» (Цветной город)

Продажа
Санкт-Петербург, Красногвардейский
Девяткино
20 мин.
3.74
Высота потолка
Паркинг
Окна
отдельный с улицы
Вход
Корпус
ЖК «Пейзажный квартал» (Цветной город)
Продажа
Санкт-Петербург, Красногвардейский
Девяткино
20 мин.
3.74
Высота потолка
Паркинг
Окна
отдельный со двора
Вход
Корпус
ЖК «Пейзажный квартал» (Цветной город)
Продажа
Санкт-Петербург, Красногвардейский
Девяткино
20 мин.
3.74
Высота потолка
Паркинг
Окна
отдельный с улицы
Вход
Корпус
ЖК «Пейзажный квартал» (Цветной город)
Продажа
Санкт-Петербург, Красногвардейский
Девяткино
20 мин.
3.74
Высота потолка
Паркинг
Окна
отдельный с улицы
Вход
Корпус
ЖК «Пейзажный квартал» (Цветной город)

Скидки и спецпредложения от застройщиков

ЖК «Пейзажный квартал» (Цветной город) на карте

Выгодные предложения на новостройки