Переверните экран
Новостройки Квартиры Ипотека Медиа О проекте Контакты Реклама на сайте Vk Youtube Telegram Дзен Продавцы и застройщики Коммерческие помещения Квартиры на карте Эксперты и авторы Машиноместа Акции от застройщиков Банки и программы Апартаменты Новостройки на карте 4-комнатные и более Готовые новостройки 3-комнатные Военная ипотека Покупателю Новостройки Санкт-Петербурга Видеообзор новостроек Семейная ипотека Аналитика рынка Панорамы новостроек 1-комнатные Субсидированная застройщиком Мнение эксперта Студии Ипотечный калькулятор Новости недвижимости Новостройки Ленинградской области IT-ипотека Квартиры со скидками до 25% Новостройки премиум-класса Новостройки бизнес-класса Дома и коттеджи Бизнес-центры Бизнес-центры в Санкт-Петербурге Бизнес-центры рядом с метро Строящиеся бизнес-центры Бизнес-центры класса A
Данное предложение на 17.12.2025 неактуально. Пожалуйста, ознакомьтесь с другими похожими предложениями в ЖК «IQ Гатчина».

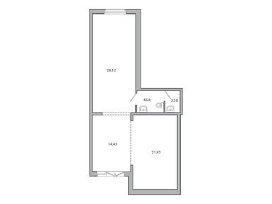
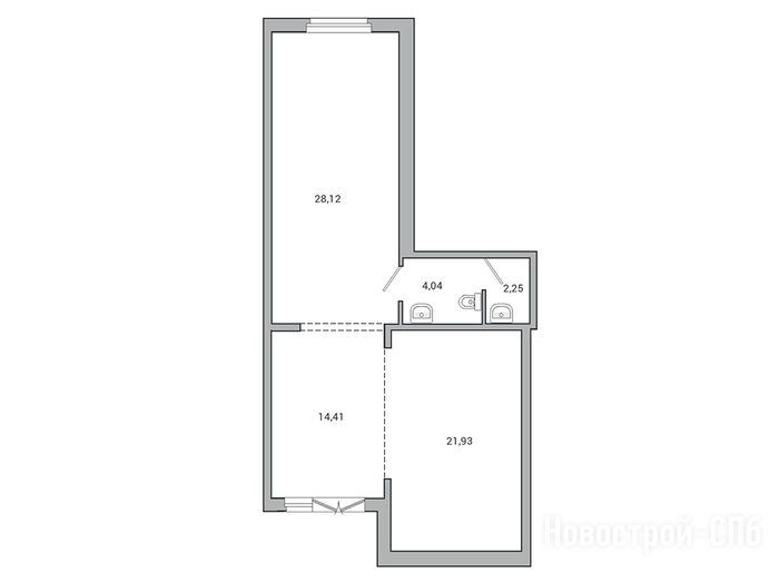
Помещение свободного назначения, 70.75 м 2

Ленинградская область, Гатчинский район, Гатчина, Пушкинское шоссе, д. 15, корп. 1-6
14 434 560
204 022 2
обновлено 25 сентября

Описание

Номер лота
1-1
Новостройка
Срок ГК
Сдан
Стадия строительства
выдача ключей + заселение
Тип здания
встроенное помещение
Этаж
1
Площадь
70.75 м2
Окна
с видом во двор и на улицу
Вход в помещение
отдельный с улицы
Водопровод
есть
Канализация
есть
Рекомендованное назначение
Свободное назначение

Расположение

Район
Гатчинский район
Поселок
Гатчина
Метро
Ж/Д-станция
Гатчина-Балтийская
17 мин.
Шоссе
Пушкинское 31 км от КАД
Дом
5-3
Адрес
Пушкинское шоссе, д. 15, корп. 1-6

Особенности

Продаётся помещение свободного назначения площадью 70.75 кв. м. в новостройке ЖК «IQ Гатчина» по адресу Ленинградская область, Гатчинский район, Гатчина, Пушкинское шоссе, д. 15, корп. 1-6. Окна с видом во двор и на улицу. Высота потолков 0.00 м. Отдельный вход с улицы. Стоимость помещения — 14 434 560 руб. Способы оплаты и более подробная информация по телефону.

Планировка

Корпус 5-3 (Сдан)
Посмотреть все спецпредложения

Еще помещения в ЖК «IQ Гатчина»

Продажа
Дом сдан
Ленинградская область, Гатчинский район
Московская
37 мин.
0.00
Высота потолка
Паркинг
Окна
отдельный с улицы
Вход
5-1
Корпус
ЖК «IQ Гатчина»
Продажа
Дом сдан
Ленинградская область, Гатчинский район
Московская
37 мин.
0.00
Высота потолка
Паркинг
Окна
отдельный с улицы
Вход
5-3
Корпус
ЖК «IQ Гатчина»
Продажа
Дом сдан
Ленинградская область, Гатчинский район
Московская
37 мин.
0.00
Высота потолка
Паркинг
Окна
отдельный с улицы
Вход
5-3
Корпус
ЖК «IQ Гатчина»

Скидки и спецпредложения от застройщиков

ЖК «IQ Гатчина» на карте

Выгодные предложения на новостройки