Переверните экран
Поиск домов и коттеджей

Найдите идеальный дом или коттедж в Санкт-Петербурге и области

Найдите идеальный дом или коттедж в Санкт-Петербурге и области

Перейти к поиску
Новостройки Квартиры Ипотека Медиа О проекте Контакты Реклама на сайте Vk Youtube Telegram Дзен Продавцы и застройщики Коммерческие помещения Квартиры на карте Эксперты и авторы Машиноместа Акции от застройщиков Банки и программы Апартаменты Новостройки на карте 4-комнатные и более Готовые новостройки 3-комнатные Военная ипотека Покупателю Новостройки Санкт-Петербурга Видеообзор новостроек Семейная ипотека Аналитика рынка Панорамы новостроек 1-комнатные Субсидированная застройщиком Мнение эксперта Студии Ипотечный калькулятор Новости недвижимости Новостройки Ленинградской области ИТ-ипотека Квартиры со скидками до 25% Новостройки премиум-класса Новостройки бизнес-класса Дома и коттеджи Бизнес-центры Бизнес-центры в Санкт-Петербурге Бизнес-центры рядом с метро Строящиеся бизнес-центры Бизнес-центры класса A Ипотека со ставкой 0,1% Траншевая ипотека
Данное предложение на 03.04.2026 неактуально. Пожалуйста, ознакомьтесь с другими похожими предложениями в ЖК «Дворцовый фасад».

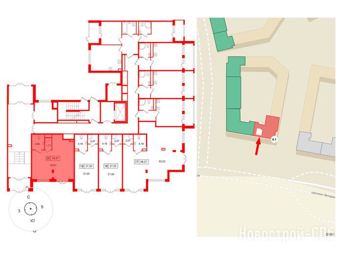
Помещение свободного назначения, 38.67 м 2

Санкт-Петербург, Петродворцовый, Стрельна пос., пр. Буденного, д. 20, корп. 1
11 345 778
293 400 2
обновлено 26 февраля
Узнать про коммерческие помещения

Описание

Номер лота
1493627
Срок ГК
Сдан
Стадия строительства
Тип здания
встроенное помещение
Этаж
1
Площадь
38.67 м2
Высота потолка
3.60
Окна
с видом на улицу
Вход в помещение
отдельный с улицы
Электроснабжение
есть
Отделка
без отделки
Водопровод
есть
Канализация
есть
Рекомендованное назначение
Свободное назначение

Расположение

Район
Петродворцовый
Поселок
Стрельна пос.
Ж/Д-станция
Сергиево
15 мин.
Дом
1.1
Адрес
пр. Буденного, д. 20, корп. 1

Особенности

Продаётся помещение свободного назначения площадью 38.67 кв. м. в новостройке ЖК «Дворцовый фасад» по адресу Санкт-Петербург, Петродворцовый, Стрельна пос., пр. Буденного, д. 20, корп. 1. Без отделки. Окна с видом на улицу. Высота потолков 3.60 м. Отдельный вход с улицы. Стоимость помещения — 11 345 778 руб. Способы оплаты и более подробная информация по телефону.

Планировка

Корпус 1.1 (Сдан)
Где купить помещение
Задать вопрос
Выбирайте квартиру в ЖК «Дворцовый фасад» по ценам от застройщика Setl Group (Сэтл Групп).
Посмотреть все спецпредложения

Еще помещения в ЖК «Дворцовый фасад»

Продажа
Дом сдан
Санкт-Петербург, Петродворцовый
Автово
20 мин.
3.60
Высота потолка
Паркинг
Окна
отдельный с улицы
Вход
1.1
Корпус
ЖК «Дворцовый фасад»
Продажа
Дом сдан
Санкт-Петербург, Петродворцовый
Автово
20 мин.
0.00
Высота потолка
Паркинг
Окна
отдельный с улицы
Вход
1.1
Корпус
ЖК «Дворцовый фасад»
Продажа
Дом сдан
Санкт-Петербург, Петродворцовый
Автово
20 мин.
Высота потолка
Паркинг
Окна
Вход
1.1
Корпус
ЖК «Дворцовый фасад»
Продажа
Дом сдан
Санкт-Петербург, Петродворцовый
Автово
20 мин.
Высота потолка
Паркинг
Окна
Вход
1.1
Корпус
ЖК «Дворцовый фасад»

Скидки и спецпредложения от застройщиков

ЖК «Дворцовый фасад» на карте

Выгодные предложения на новостройки