Переверните экран
Новостройки Квартиры Ипотека Медиа О проекте Контакты Реклама на сайте Vk Youtube Telegram Дзен Продавцы и застройщики Коммерческие помещения Квартиры на карте Эксперты и авторы Машиноместа Акции от застройщиков Банки и программы Апартаменты Новостройки на карте 4-комнатные и более Готовые новостройки 3-комнатные Военная ипотека Покупателю Новостройки Санкт-Петербурга Видеообзор новостроек Семейная ипотека Аналитика рынка Панорамы новостроек 1-комнатные Субсидированная застройщиком Мнение эксперта Студии Ипотечный калькулятор Новости недвижимости Новостройки Ленинградской области IT-ипотека Квартиры со скидками до 25% Новостройки премиум-класса Новостройки бизнес-класса Дома и коттеджи Бизнес-центры Бизнес-центры в Санкт-Петербурге Бизнес-центры рядом с метро Строящиеся бизнес-центры Бизнес-центры класса A

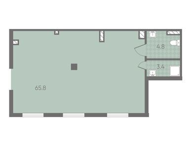
Помещение свободного назначения, 79.62 м 2

Санкт-Петербург, Красногвардейский, ул. Партизанская, д. 3А, д. 5Б
36 361 280
456 685 2
обновлено 15 декабря

Описание

Номер лота
9
Новостройка
Тип здания
встроенное помещение
Этаж
1
Площадь
79.62 м2
Высота потолка
3.45
Окна
с видом во двор и на улицу
Вход в помещение
отдельный с улицы
Электроснабжение
есть
Водопровод
есть
Канализация
есть
Рекомендованное назначение
Свободное назначение

Расположение

Район
Красногвардейский
Дом
ЖК «Большая Охта»
Адрес
ул. Партизанская, д. 3А, д. 5Б

Особенности

Продаётся помещение свободного назначения площадью 79.62 кв. м. в новостройке ЖК «Большая Охта» по адресу Санкт-Петербург, Красногвардейский, ул. Партизанская, д. 3А, д. 5Б. Окна с видом во двор и на улицу. Высота потолков 3.45 м. Отдельный вход с улицы. Стоимость помещения — 36 361 280 руб. Способы оплаты и более подробная информация по телефону.

Планировка

Посмотреть все спецпредложения

Еще помещения в ЖК «Большая Охта»

Продажа
Санкт-Петербург, Красногвардейский
Новочеркасская
28 мин.
3.55
Высота потолка
Паркинг
Окна
общий
Вход
Корпус
ЖК «Большая Охта»
Продажа
Санкт-Петербург, Красногвардейский
Новочеркасская
28 мин.
3.45
Высота потолка
Паркинг
Окна
отдельный с улицы
Вход
Корпус
ЖК «Большая Охта»
Продажа
Санкт-Петербург, Красногвардейский
Новочеркасская
28 мин.
3.45
Высота потолка
Паркинг
Окна
отдельный с улицы
Вход
Корпус
ЖК «Большая Охта»
Продажа
Санкт-Петербург, Красногвардейский
Новочеркасская
28 мин.
3.75
Высота потолка
Паркинг
Окна
отдельный с улицы
Вход
Корпус
ЖК «Большая Охта»

Скидки и спецпредложения от застройщиков

ЖК «Большая Охта» на карте

Выгодные предложения на новостройки