Переверните экран
Новостройки Квартиры Ипотека Медиа О проекте Контакты Реклама на сайте Vk Youtube Telegram Дзен Продавцы и застройщики Коммерческие помещения Квартиры на карте Эксперты и авторы Машиноместа Акции от застройщиков Банки и программы Апартаменты Новостройки на карте 4-комнатные и более Готовые новостройки 3-комнатные Военная ипотека Покупателю Новостройки Санкт-Петербурга Видеообзор новостроек Семейная ипотека Аналитика рынка Панорамы новостроек 1-комнатные Субсидированная застройщиком Мнение эксперта Студии Ипотечный калькулятор Новости недвижимости Новостройки Ленинградской области IT-ипотека Квартиры со скидками до 25% Новостройки премиум-класса Новостройки бизнес-класса Дома и коттеджи Бизнес-центры Бизнес-центры в Санкт-Петербурге Бизнес-центры рядом с метро Строящиеся бизнес-центры Бизнес-центры класса A
Данное предложение на 18.12.2025 неактуально. Пожалуйста, ознакомьтесь с другими похожими предложениями в Заречный парк.

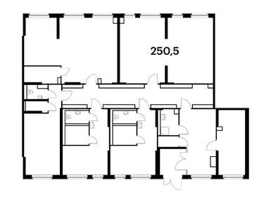
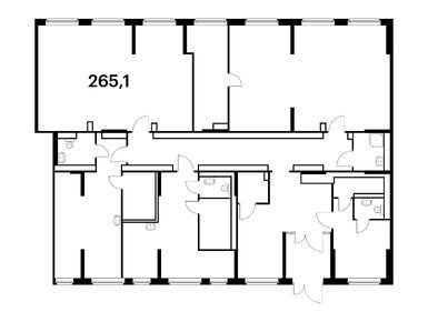
Помещение свободного назначения, 79.00 м 2

Ленинградская область, Всеволожский район, Новое Девяткино, жилой комплекс Заречный Парк, 6
21 472 200
271 800 2
обновлено 03 декабря

Описание

Номер лота
НПКИ 7
Новостройка
Срок ГК
4 квартал 2026
Стадия строительства
Тип здания
встроенное помещение
Этаж
1
Площадь
79.00 м2
Высота потолка
4.48
Окна
витринные с видом на улицу
Вход в помещение
отдельный с улицы
Выделенная электрическая мощность
0.2 кВт/кв.м
Отделка
без отделки
Водопровод
есть
Канализация
нет
Рекомендованное назначение
Свободное назначение

Расположение

Район
Всеволожский район
Поселок
Новое Девяткино
Метро
Дом
6
Адрес
жилой комплекс Заречный Парк, 6 , секция 2

Особенности

Продаётся нежилое помещение свободного назначения в новом жилом районе Заречный парк от ПИК. Открытая планировка, витринное остекление, удобный вход на уровне земли. Помещение (номер на площадке: №7) расположено по адресу: Ленинградская область, Всеволожский муниципальный район, Новодевяткинское сельское поселение, д. Новое Девяткино, микрорайон 1, квартал 1.3, участок с кадастровым номером 47:07:0722001:105104, Корпус 6. Продажа напрямую от застройщика.

Планировка

Корпус 6, секция 2 (ГК 4 квартал 2026)
Посмотреть все спецпредложения

Еще помещения в Заречный парк

Продажа
Дом сдан
Ленинградская область, Всеволожский район
Девяткино
19 мин.
3.71
Высота потолка
Паркинг
витринные
Окна
отдельный с улицы
Вход
8
Корпус
Заречный парк
Продажа
Дом сдан
Ленинградская область, Всеволожский район
Девяткино
19 мин.
3.75
Высота потолка
Паркинг
витринные
Окна
отдельный с улицы
Вход
8
Корпус
Заречный парк

Скидки и спецпредложения от застройщиков

Заречный парк на карте

Выгодные предложения на новостройки