Переверните экран
Поиск домов и коттеджей

Найдите идеальный дом или коттедж в Санкт-Петербурге и области

Найдите идеальный дом или коттедж в Санкт-Петербурге и области

Перейти к поиску
Новостройки Квартиры Ипотека Медиа О проекте Контакты Реклама на сайте Vk Youtube Telegram Дзен Продавцы и застройщики Коммерческие помещения Квартиры на карте Эксперты и авторы Машиноместа Акции от застройщиков Банки и программы Апартаменты Новостройки на карте 4-комнатные и более Готовые новостройки 3-комнатные Военная ипотека Покупателю Новостройки Санкт-Петербурга Видеообзор новостроек Семейная ипотека Аналитика рынка Панорамы новостроек 1-комнатные Субсидированная застройщиком Мнение эксперта Студии Ипотечный калькулятор Новости недвижимости Новостройки Ленинградской области ИТ-ипотека Квартиры со скидками до 25% Новостройки премиум-класса Новостройки бизнес-класса Дома и коттеджи Коттеджные поселки в Санкт-Петербурге Коттеджные поселки в Ленинградской обл Готовые коттеджные поселки Строящиеся коттеджные поселки Коттеджные поселки у леса Коттеджные поселки у водоема Коттеджные поселки в ипотеку Бизнес-центры Коттеджи Ипотека со ставкой 0,1% Траншевая ипотека

Помещение свободного назначения, 83.60 м 2

Санкт-Петербург, Фрунзенский, Витебский парк, корп. 7
25 323 944
302 918 2
обновлено 26 апреля
Узнать про коммерческие помещения

Описание

Номер лота
ПОН 8
Новостройка
Срок ГК
2 квартал 2028
Стадия строительства
Тип здания
встроенное помещение
Этаж
1
Площадь
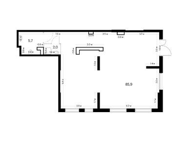
83.60 м2
Высота потолка
3.94
Окна
витринные с видом во двор
Вход в помещение
отдельный с улицы
Выделенная электрическая мощность
0.2 кВт/кв.м
Водопровод
есть
Канализация
есть
Рекомендованное назначение
Свободное назначение

Расположение

Район
Фрунзенский
Метро
Дом
7
Адрес
Витебский парк, корп. 7 , секция 1

Особенности

Продаётся нежилое помещение свободного назначения в новом жилом районе Витебский парк от ПИК. Открытая планировка, витринное остекление, удобный вход на уровне земли. Помещение (номер на площадке: №8) расположено по адресу: Санкт-Петербург, муниципальное образование Волковское, Лиговский проспект, кадастровый номер 78:13:0007319:3876, корпус 7. Продажа напрямую от застройщика.

Планировка

Корпус 7, секция 1 (ГК 2 квартал 2028)
Где купить помещение
ПИК
ПИК
02:00 — 21:00
Заказать обратный звонок
Задать вопрос
Выбирайте квартиру в Витебский парк по ценам от застройщика ПИК.
Посмотреть все спецпредложения

Еще помещения в Витебский парк

Продажа
2 квартал 2028
Санкт-Петербург, Фрунзенский
Обводный канал
15 мин.
4.26
Высота потолка
Паркинг
витринные
Окна
отдельный с улицы
Вход
7
Корпус
Витебский парк
Продажа
2 квартал 2028
Санкт-Петербург, Фрунзенский
Обводный канал
15 мин.
4.71
Высота потолка
Паркинг
витринные
Окна
отдельный с улицы
Вход
7
Корпус
Витебский парк
Продажа
2 квартал 2028
Санкт-Петербург, Фрунзенский
Обводный канал
15 мин.
4.36
Высота потолка
Паркинг
витринные
Окна
отдельный с улицы
Вход
7
Корпус
Витебский парк
Продажа
2 квартал 2028
Санкт-Петербург, Фрунзенский
Обводный канал
15 мин.
4.24
Высота потолка
Паркинг
витринные
Окна
отдельный с улицы
Вход
6
Корпус
Витебский парк

Скидки и спецпредложения от застройщиков

Витебский парк на карте

Выгодные предложения на новостройки