Переверните экран
Поиск бизнес центров

Найдите современный офис в деловых районах Санкт-Петербурга

Найдите современный офис в деловых районах Санкт-Петербурга

Перейти к поиску
Новостройки Квартиры Ипотека Медиа О проекте Контакты Реклама на сайте Vk Youtube Telegram Дзен Продавцы и застройщики Коммерческие помещения Квартиры на карте Эксперты и авторы Машиноместа Акции от застройщиков Банки и программы Апартаменты Новостройки на карте 4-комнатные и более Готовые новостройки 3-комнатные Военная ипотека Покупателю Новостройки Санкт-Петербурга Видеообзор новостроек Семейная ипотека Аналитика рынка Панорамы новостроек 1-комнатные Субсидированная застройщиком Мнение эксперта Студии Ипотечный калькулятор Новости недвижимости Новостройки Ленинградской области ИТ-ипотека Квартиры со скидками до 25% Новостройки премиум-класса Новостройки бизнес-класса Дома и коттеджи Коттеджные поселки в Санкт-Петербурге Коттеджные поселки в Ленинградской обл Готовые коттеджные поселки Строящиеся коттеджные поселки Коттеджные поселки у леса Коттеджные поселки у водоема Коттеджные поселки в ипотеку Бизнес-центры Коттеджи Ипотека со ставкой 0,1% Траншевая ипотека

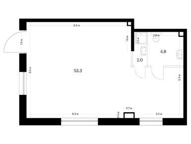
Помещение свободного назначения, 60.90 м 2

Санкт-Петербург, Василеостровский, Шкиперский проток, 19
21 742 761
357 024 2
обновлено 26 апреля
Узнать про коммерческие помещения

Описание

Номер лота
НПКИ 4
Новостройка
Срок ГК
2 квартал 2027
Стадия строительства
Тип здания
встроенное помещение
Этаж
1
Площадь
60.90 м2
Высота потолка
4.06
Окна
витринные с видом на улицу
Вход в помещение
отдельный с улицы
Выделенная электрическая мощность
0.2 кВт/кв.м
Водопровод
есть
Канализация
есть
Рекомендованное назначение
Свободное назначение

Расположение

Район
Василеостровский
Дом
2
Адрес
Шкиперский проток, 19 , секция 5

Особенности

Продаётся нежилое помещение свободного назначения в новом жилом районе Шкиперский 19 от ПИК. Открытая планировка, витринное остекление, удобный вход на уровне земли. Помещение (номер на площадке: №4) расположено по адресу: Санкт-Петербург, Шкиперский проток, земельный участок с кадастровым номером 78:06:0220902:4427. Продажа напрямую от застройщика.

Планировка

Корпус 2, секция 5 (ГК 2 квартал 2027)
Где купить помещение
ПИК
ПИК
02:00 — 21:00
Заказать обратный звонок
Задать вопрос
Выбирайте квартиру в Шкиперский 19 по ценам от застройщика ПИК.
Посмотреть все спецпредложения

Еще помещения в Шкиперский 19

Продажа
Дом сдан
Санкт-Петербург, Василеостровский
Приморская
20 мин.
3.53
Высота потолка
Паркинг
витринные
Окна
отдельный с улицы
Вход
1
Корпус
Шкиперский 19
Продажа
2 квартал 2027
Санкт-Петербург, Василеостровский
Приморская
20 мин.
4.06
Высота потолка
Паркинг
витринные
Окна
отдельный с улицы
Вход
2
Корпус
Шкиперский 19
Продажа
2 квартал 2027
Санкт-Петербург, Василеостровский
Приморская
20 мин.
3.48
Высота потолка
Паркинг
витринные
Окна
отдельный с улицы
Вход
2
Корпус
Шкиперский 19
Продажа
2 квартал 2027
Санкт-Петербург, Василеостровский
Приморская
20 мин.
3.48
Высота потолка
Паркинг
витринные
Окна
отдельный с улицы
Вход
2
Корпус
Шкиперский 19

Скидки и спецпредложения от застройщиков

Шкиперский 19 на карте

Выгодные предложения на новостройки