Переверните экран
Поиск бизнес центров

Найдите современный офис в деловых районах Санкт-Петербурга

Найдите современный офис в деловых районах Санкт-Петербурга

Перейти к поиску
Новостройки Квартиры Ипотека Медиа О проекте Контакты Реклама на сайте Vk Youtube Telegram Дзен Продавцы и застройщики Коммерческие помещения Квартиры на карте Эксперты и авторы Машиноместа Акции от застройщиков Банки и программы Апартаменты Новостройки на карте 4-комнатные и более Готовые новостройки 3-комнатные Военная ипотека Покупателю Новостройки Санкт-Петербурга Видеообзор новостроек Семейная ипотека Аналитика рынка Панорамы новостроек 1-комнатные Субсидированная застройщиком Мнение эксперта Студии Ипотечный калькулятор Новости недвижимости Новостройки Ленинградской области ИТ-ипотека Квартиры со скидками до 25% Новостройки премиум-класса Новостройки бизнес-класса Дома и коттеджи Коттеджные поселки в Санкт-Петербурге Коттеджные поселки в Ленинградской обл Готовые коттеджные поселки Строящиеся коттеджные поселки Коттеджные поселки у леса Коттеджные поселки у водоема Коттеджные поселки в ипотеку Бизнес-центры Коттеджи Ипотека со ставкой 0,1% Траншевая ипотека

Планировки в Квартале «Ново-Антропшино»

Ленинградская область, Коммунар
от 4 до 9.6 млн
 
Цены за квартиры от 4 мая
по данным официального сайта

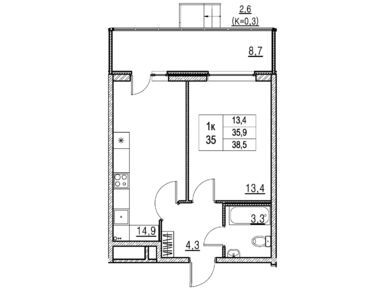
Планировки студий (квартир) в Квартале «Ново-Антропшино»

Задать вопрос
Посмотреть все спецпредложения

Скидки и спецпредложения от застройщиков

Планировки двухкомнатных квартир в Квартале «Ново-Антропшино»

Выгодные предложения на новостройки

Отзывы о Квартале «Ново-Антропшино»

Самый полезный отзыв
Д
Дмитрий
18 июня 2018
Оценка
Достоинства
Транспортная доступность
Экология
Скорость строительства
Недостатки
Подземный паркинг
Живу уже 10 лет в том частном секторе, что рядом с новостройкой. Планирую купить еще квартиру здесь. Про шум электричек- бред. Не мешают совершенно. Это вам не КАД со своими газами. По поводу "молочка от производителя" тоже "в молоко" попали. Коров тут не держат со времен начала стройки- выгуливать теперь негде и сена накосить. Темпы строительства впечатляют. Особенно ларек Шаверма. Был сдан в эксплуатацию первым. Так бы все хорошо, но есть один существенный недостаток. В будущем, когда все это достроят, а планируют тут много, узкое горлышко железнодорожного переезда станет непреодолимым припятствием для жильцов с авто. А для пешеходов красота. За 5 мин до электрички выходишь, и через 40 минут ты на Пушкинской метро.
Ответить
Самый новый отзыв
ГГ
Григорий Горин
17 марта
Оценка
Достоинства
Социальная инфраструктура
Расположение
Проект обычно выбирают за более тихую жизнь и бюджет, а не за близость к центру. Тем, кто готов к размеренному ритму, формат нравится, но если нужна насыщенная городская инфраструктура прямо под рукой, энтузиазм быстро снижается.
Ответить

Оставить отзыв

Добавьте отзыв, заполнив личные данные, или сначала войдите на сайт, тогда информация будет автоматически взята из личного профиля.

Оценка*