Переверните экран
Поиск домов и коттеджей

Найдите идеальный дом или коттедж в Санкт-Петербурге и области

Найдите идеальный дом или коттедж в Санкт-Петербурге и области

Перейти к поиску
Новостройки Квартиры Ипотека Медиа О проекте Контакты Реклама на сайте Vk Youtube Telegram Дзен Продавцы и застройщики Коммерческие помещения Квартиры на карте Эксперты и авторы Машиноместа Акции от застройщиков Банки и программы Апартаменты Новостройки на карте 4-комнатные и более Готовые новостройки 3-комнатные Военная ипотека Покупателю Новостройки Санкт-Петербурга Видеообзор новостроек Семейная ипотека Аналитика рынка Панорамы новостроек 1-комнатные Субсидированная застройщиком Мнение эксперта Студии Ипотечный калькулятор Новости недвижимости Новостройки Ленинградской области ИТ-ипотека Квартиры со скидками до 25% Новостройки премиум-класса Новостройки бизнес-класса Дома и коттеджи Коттеджные поселки в Санкт-Петербурге Коттеджные поселки в Ленинградской обл Готовые коттеджные поселки Строящиеся коттеджные поселки Коттеджные поселки у леса Коттеджные поселки у водоема Коттеджные поселки в ипотеку Бизнес-центры Коттеджи Ипотека со ставкой 0,1% Траншевая ипотека

Планировки в ЖК «Капральский»

Ленинградская область, Всеволожский район
от 5.1 до 14.1 млн
 
Цены за квартиры от 4 мая
по данным официального сайта
Задать вопрос
Посмотреть все спецпредложения

Скидки и спецпредложения от застройщиков

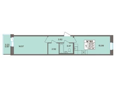
Планировки двухкомнатных квартир в ЖК «Капральский»

Выгодные предложения на новостройки

Отзывы о ЖК «Капральский»

Самый полезный отзыв
А
Алина
16 января
Оценка
Достоинства
Транспортная доступность
Внешний вид фасада
Друзья купили квартиру с видом на озеро, были у них на новоселье, остались в полном восторге! Прекрасный район, зелёный, рядом парки ( ждём с нетерпением лета, чтобы устроить пикник), а ещё совсем близко метро Девяткино. Тоже хотели бы, но уже выбрали другой вариант. Тем не менее, рекомендуем - классное место и локация!
Ответить
Самый новый отзыв
М
Маша
05 апреля
Оценка
Нам всё-таки удалось купить квартиру, которую хотели. Поначалу не верилось, но когда подписали договор и получили ключи, поняли — это не сон. Выбрали планировку с большими окнами, и теперь каждое утро начинается с солнца и зелени за стеклом. Соседи попались тихие, а управляющая компания работает быстро — свет на площадке перегорел, так на следующий же день заменили. Жить тут, как на небольшом курорте, только с собственной парковкой и без переплат.
Ответить

Оставить отзыв

Добавьте отзыв, заполнив личные данные, или сначала войдите на сайт, тогда информация будет автоматически взята из личного профиля.

Оценка*