


















«Резиденция Рощино» — премиальный квартал в Выборгском районе Ленинградской обл., в 46 км от Санкт-Петербурга. В составе проекта – дома средней этажности, отель, а также богатая инфраструктура для спорта, отдыха и семейного времяпровождения. Главное преимущество проекта — расположение в курортной зоне в окружении карельского леса.
Надежность застройщика
Проект реализует Специализированный застройщик «Резиденция Рощино» — молодая компания, зарегистрированная в 2020 году в Санкт-Петербурге. Учредителем предприятия выступает Гончаров Александр Евгеньевич. Информации о деятельности застройщика немного, зато среди его партнеров известные компании с безупречной деловой репутацией, такие как: Сбер, архитектурное бюро Gafa, ландшафтное бюро Derevo Park, студии дизайна Balcon и Point Design. Управление объектом возьмет на себя компания Cosmos.
Описание ЖК
Рощино Residence находится в пос. Рощино — это небольшое поселение на северо-западе Ленинградской области в 17 км от Зеленогорска и в 8 км от побережья Финского залива. Расстояние до КАД составляет 47 км по Зеленогорскому и Приморскому шоссе, преодолеть его можно в среднем за 50 мин. Доехать на автомобиле до центра Санкт-Петербурга можно за 1 час 5 мин., если проложить маршрут через ЗСД, или 1 час 30 мин., если строить маршрут в обход платных участков.
Локация отличается прекрасной экологией. Карельские сосновые леса создают здесь особый микроклимат, подходящий для восстановления физического здоровья и эмоционального равновесия.
«Резиденция Рощино» – это не обычный ЖК, а проект клубного формата из 13 корпусов, отеля и общественных пространств различного назначения. Все здания возводятся по монолитно-кирпичной технологии, высота корпусов — от 2 до 6 этажей. В настоящее время выполняется отделка фасадов и внутренние работы. Завершение строительства запланировано на IV квартал 2026 года.
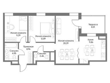
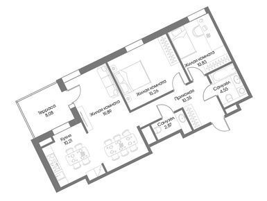
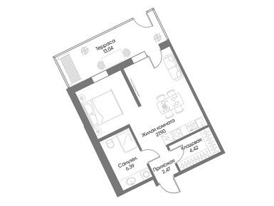
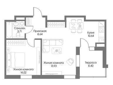
В проекте три типа домов со своими уникальными особенностями:
· Тип А «Ритм» — корпуса с открытыми балконами и пентхаусами на верхних этажах;
· Тип Б «Форма» — резиденции с оригинальными комнатами-консолями с панорамным остеклением;
· Тип В «Гармония» — резиденции с «парящими» комнатами-консолями.
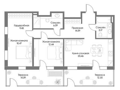
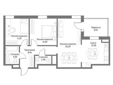
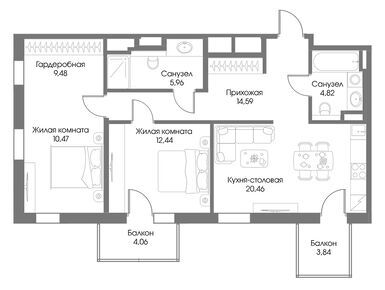
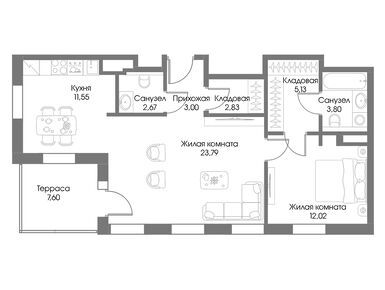
Покупателям в конце октября 2025 года предлагаются резиденции площадью от 40 до 150 кв. м — всего более 40 вариантов планировочных решений. Кроме того есть эксклюзивные лоты, площадь которых достигает 335,5 кв. м. Есть юниты с собственными террасами, балконами и парящими комнатами. Во всех резиденциях будет выполнена премиальная финишная отделка.
Инфраструктура
Курортный поселок будет разделен на три функциональные зоны. В одной будут располагаться резиденции, в другой — инфраструктура для отдыха, ещё один небольшой участок займут корпуса для персонала.
На территории комплекса будут частично сохранены сосны — для большей приватности и приятных видов из окон. Две артезианские скважины обеспечат резидентов чистой питьевой водой.
Благоустройство территории будет выполнено с учетом эко-концепции проекта. Здесь появятся спортивные и детские площадки в спокойных природных цветах, аккуратно вписанные в пейзаж. Также будут зоны отдыха под открытым небом с лавочками и качелями, площадка для бадминтона, падел-корт, амфитеатр с очагом, бельведер, стела со смотровой площадкой, детский тематический парк, каток и лыжный трассы, а также небольшая пляжная зона у пруда.
В распоряжении резидентов будут спортивный комплекс с бассейном, банный и ресторанный комплексы, кондитерская, детский развивающий клуб, party-box (помещения для праздников и семейных мероприятий с караоке, домашним кинотеатром и кухней), винная комната и сигарный клуб, галерея современного искусства, 5-звездочный отель, центр превентивной медицины, коворкинг и конференц-зал.
Резиденты смогут делегировать все бытовые вопросы персоналу, а также воспользоваться батлер-сервисом.
Плюсы и минусы
«Резиденция Рощино» — проект для ценителей комфорта и премиального сервиса. В числе его плюсов: просторные резиденции с панорамным остеклением и дизайнерским ремонтом, насыщенная внутренняя инфраструктура для досуга детей и взрослых, природное окружение и заповедные зоны вокруг, закрытая приватная территория, всего 1 час езды от Санкт-Петербурга.
Кроме того, в курортном поселке можно приобрести инвестиционную недвижимость и получать доход от сдачи резиденций в аренду. Управление объектами возьмет на себя профессиональный отельный оператор Cosmos Hotel Group.
Комплекс скорее подходит для отдыха и сдачи в аренду. Получить городскую прописку здесь будет нельзя.
Ж/д станция «Рощино» → Пройти пешком 104 метра (1 минута) → Остановка «Станция «Рощино» → Автобус № 125 (6 минут в пути) → Остановка «Плотина» → Пройти пешком 970 метров (12 минут)
Узнайте, нужно ли заказывать пропуск при посещении отдела продаж компании Отдел продаж по телефону +7 (812) 424-49-10.