Переверните экран
Поиск домов и коттеджей

Найдите идеальный дом или коттедж в Санкт-Петербурге и области

Найдите идеальный дом или коттедж в Санкт-Петербурге и области

Перейти к поиску
Новостройки Квартиры Ипотека Медиа О проекте Контакты Реклама на сайте Vk Youtube Telegram Дзен Продавцы и застройщики Коммерческие помещения Квартиры на карте Эксперты и авторы Машиноместа Акции от застройщиков Банки и программы Апартаменты Новостройки на карте 4-комнатные и более Готовые новостройки 3-комнатные Военная ипотека Покупателю Новостройки Санкт-Петербурга Видеообзор новостроек Семейная ипотека Аналитика рынка Панорамы новостроек 1-комнатные Субсидированная застройщиком Мнение эксперта Студии Ипотечный калькулятор Новости недвижимости Новостройки Ленинградской области ИТ-ипотека Квартиры со скидками до 25% Новостройки премиум-класса Новостройки бизнес-класса Дома и коттеджи Коттеджные поселки в Санкт-Петербурге Коттеджные поселки в Ленинградской обл Готовые коттеджные поселки Строящиеся коттеджные поселки Коттеджные поселки у леса Коттеджные поселки у водоема Коттеджные поселки в ипотеку Бизнес-центры Коттеджи Ипотека со ставкой 0,1% Траншевая ипотека
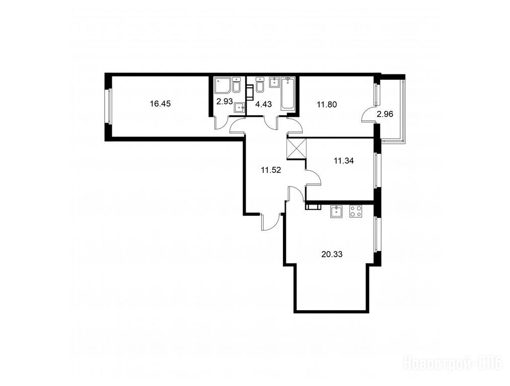
3-комн. квартира, 80.28 м2, 3 этаж
Срок сдачи 2 квартал 2027 года
13 913 813 
16 178 853
173 316 2
обновлено 4 мая

Описание 3-комн. квартиры

Застройщик
Срок ГК
2 квартал 2027 года
Стадия строительства
монтаж нижних этажей
Тип проекта
Общая площадь
80.28 м2
Этаж
3 / 9
Отделка
под чистовую
Грузовой лифт
есть

Расположение 3-комн. квартиры

Локация
Метро
Ж/Д-станция
Дом
C
Адрес
ул. Загородная, ЖК «Квартал Заречье», корпус С

Способы покупки

Особенности

Продается трехкомнатная квартира в новостройке ЖК «Квартал Заречье» по адресу Санкт-Петербург, Колпинский, Колпино, ул. Загородная, ЖК «Квартал Заречье», корпус С. Общая площадь квартиры - 80.28 кв. м. Тип проекта, по которому построен дом — Монолитно-кирпичный, компания-застройщик — ИнтерГрупп. Стоимость квартиры — 13 913 813 руб. Способы оплаты можно уточнить у продавца. Срок сдачи — 2 квартал 2027. Более подробная информация по телефону.
Инфоцентр новостроек
Инфоцентр новостроек
+7 (812) 424-49-09
Время работы 9:00 — 21:00

Похожие квартиры в ЖК «Квартал Заречье»

4 этаж
из 9 2 квартал 2027
Санкт-Петербург, Колпинский
Рыбацкое
30 мин.
C
Корпус
под чистовую
Отделка
2.69 м
Потолки
ЖК «Квартал Заречье»
13 913 813 16 178 853
Альфа-Банк, ВТБ, Совкомбанк, Россельхозбанк, Банк Россия, Промсвязьбанк, ДОМ.РФ
6.00%
Ставка
30.10%
Первый взнос
от 83 420 /мес.
Все варианты
5 этаж
из 9 2 квартал 2027
Санкт-Петербург, Колпинский
Рыбацкое
30 мин.
C
Корпус
под чистовую
Отделка
2.69 м
Потолки
ЖК «Квартал Заречье»
13 913 813 16 178 853
Альфа-Банк, ВТБ, Совкомбанк, Россельхозбанк, Банк Россия, Промсвязьбанк, ДОМ.РФ
6.00%
Ставка
30.10%
Первый взнос
от 83 420 /мес.
Все варианты
студия 22,86 м2 4 328 485
Этаж 2/9
СПБ, ЖК «Квартал Заречье»
Рыбацкое
30 мин.
Строится
студия 22,87 м2 4 059 425
Этаж 2/9
СПБ, ЖК «Квартал Заречье»
Рыбацкое
30 мин.
Строится
студия 23,78 м2 4 042 600
Этаж 1/9
СПБ, ЖК «Квартал Заречье»
Рыбацкое
30 мин.
Строится
студия 25,18 м2 5 221 672
Этаж 7/9
СПБ, ЖК «Квартал Заречье»
Рыбацкое
30 мин.
Строится
Посмотреть 137 квартир в ЖК «Квартал Заречье»
1-комн. квартира 30,24 м2 5 497 632
Этаж 4/9
СПБ, ЖК «Квартал Заречье»
Рыбацкое
30 мин.
Строится
1-комн. квартира 32,68 м2 6 212 282
Этаж 4/9
СПБ, ЖК «Квартал Заречье»
Рыбацкое
30 мин.
Строится
1-комн. квартира 33,36 м2 5 838 000
Этаж 2/9
СПБ, ЖК «Квартал Заречье»
Рыбацкое
30 мин.
Строится
1-комн. квартира 33,46 м2 6 164 338
Этаж 6/9
СПБ, ЖК «Квартал Заречье»
Рыбацкое
30 мин.
Строится
Посмотреть 306 квартир в ЖК «Квартал Заречье»
2-комн. квартира 50,00 м2 8 955 628
Этаж 3/9
СПБ, ЖК «Квартал Заречье»
Рыбацкое
30 мин.
Строится
2-комн. квартира 50,42 м2 9 120 269
Этаж 6/9
СПБ, ЖК «Квартал Заречье»
Рыбацкое
30 мин.
Строится
2-комн. квартира 51,20 м2 9 086 718
Этаж 2/9
СПБ, ЖК «Квартал Заречье»
Рыбацкое
30 мин.
Строится
2-комн. квартира 52,74 м2 9 176 499
Этаж 2/9
СПБ, ЖК «Квартал Заречье»
Рыбацкое
30 мин.
Строится
Посмотреть 236 квартир в ЖК «Квартал Заречье»
3-комн. квартира 73,42 м2 12 929 535
Этаж 3/9
СПБ, ЖК «Квартал Заречье»
Рыбацкое
30 мин.
Строится
3-комн. квартира 73,99 м2 12 578 300
Этаж 2/9
СПБ, ЖК «Квартал Заречье»
Рыбацкое
30 мин.
Строится
3-комн. квартира 77,71 м2 13 821 870
Этаж 3/9
СПБ, ЖК «Квартал Заречье»
Рыбацкое
30 мин.
Строится
3-комн. квартира 77,75 м2 13 556 499
Этаж 3/9
СПБ, ЖК «Квартал Заречье»
Рыбацкое
30 мин.
Строится
Посмотреть 45 квартир в ЖК «Квартал Заречье»

Скидки и спецпредложения от застройщиков

ЖК «Квартал Заречье» на карте

Выгодные предложения на новостройки

Отзывы о ЖК «Квартал Заречье»

Самый полезный отзыв
ИБ
28 февраля 2025
Оценка:
Достоинства
Планировки
Способы покупки
Двор, окружение
Расположение
Когда летом оформляли сделку сразу заметили новый асфальт на Загородной улице. Это, безусловно, позитивное изменение для района. Хорошая дорога вносит свой вклад в общее впечатление о жизни здесь. Уверен, что с развитием инфраструктуры и появлением новых объектов, этот район станет неплохим местом для проживания. Вокруг много зелени, а близость к основным магистралям облегчает передвижение по городу. С нетерпением ждем, что нас ждет впереди в этом уютном комплексе.
Ответить
Самый новый отзыв
М
28 февраля
Оценка:
Жилой комплекс рядом с природой - это несомненный плюс. Но пока нет развитой инфраструктуры. Нужно ожидать несколько лет для полной застройки
Ответить

Оставить отзыв

Добавьте отзыв, заполнив личные данные, или сначала войдите на сайт, тогда информация будет автоматически взята из личного профиля.
Оценка*