Переверните экран
Поиск бизнес центров

Найдите современный офис в деловых районах Санкт-Петербурга

Найдите современный офис в деловых районах Санкт-Петербурга

Перейти к поиску
Новостройки Квартиры Ипотека Медиа О проекте Контакты Реклама на сайте Vk Youtube Telegram Дзен Продавцы и застройщики Коммерческие помещения Квартиры на карте Эксперты и авторы Машиноместа Акции от застройщиков Банки и программы Апартаменты Новостройки на карте 4-комнатные и более Готовые новостройки 3-комнатные Военная ипотека Покупателю Новостройки Санкт-Петербурга Видеообзор новостроек Семейная ипотека Аналитика рынка Панорамы новостроек 1-комнатные Субсидированная застройщиком Мнение эксперта Студии Ипотечный калькулятор Новости недвижимости Новостройки Ленинградской области ИТ-ипотека Квартиры со скидками до 25% Новостройки премиум-класса Новостройки бизнес-класса Дома и коттеджи Коттеджные поселки в Санкт-Петербурге Коттеджные поселки в Ленинградской обл Готовые коттеджные поселки Строящиеся коттеджные поселки Коттеджные поселки у леса Коттеджные поселки у водоема Коттеджные поселки в ипотеку Бизнес-центры Коттеджи Ипотека со ставкой 0,1% Траншевая ипотека
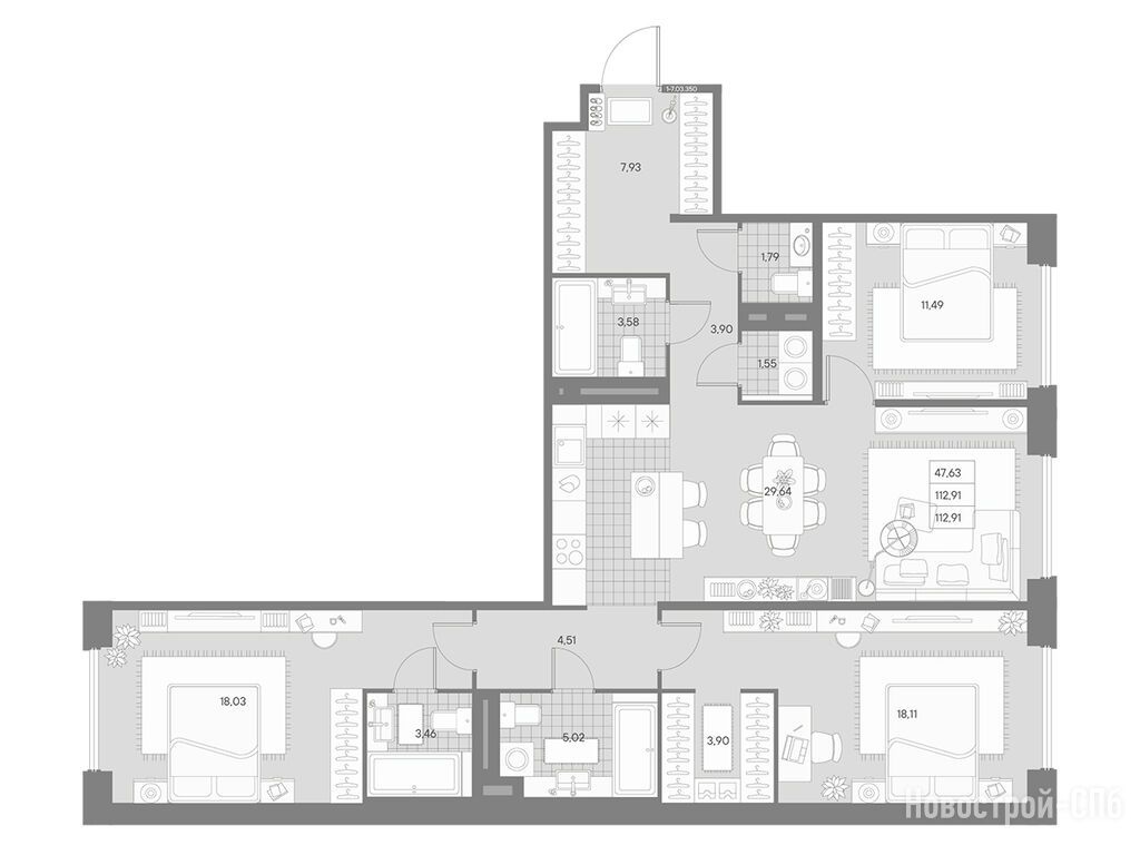
3-комн. квартира, 112.91 м2, 4 этаж
Срок сдачи 2 квартал 2027 года
89 191 500 
789 934 2
обновлено 5 мая

Описание 3-комн. квартиры

Новостройка
Застройщик
AAG
Срок ГК
2 квартал 2027 года
Стадия строительства
Тип проекта
Общая площадь
112.91 м2
Жилая площадь
47.63 м2
Площадь кухни
29.64 м2
Этаж
4 / 9

Расположение 3-комн. квартиры

Метро
Дом
KLASSIK
Адрес
ул. Пионерская, д. 53, корпус Klassik, секция К7

Способы покупки

Особенности

Продается трехкомнатная квартира в новостройке ЖК «Авант» по адресу Санкт-Петербург, Петроградский, ул. Пионерская, д. 53, корпус Klassik. Общая площадь квартиры - 112.91 кв. м. Тип проекта, по которому построен дом — Монолит, компания-застройщик — AAG. Стоимость квартиры — 89 191 500 руб. Способы оплаты можно уточнить у продавца. Срок сдачи — 2 квартал 2027. Более подробная информация по телефону.
Инфоцентр новостроек
Инфоцентр новостроек
+7 (812) 424-49-09
Время работы 9:00 — 21:00

Похожие квартиры в ЖК «Авант»

3 этаж
из 9 2 квартал 2027
Санкт-Петербург, Санкт-Петербург
Чкаловская
6 мин.
KLASSIK
Корпус
нет данных
Отделка
2.98 м
Потолки
ЖК «Авант»
87 442 647
ДОМ.РФ
6.00%
Ставка
20.01%
Первый взнос
от 524 263 /мес.
Все варианты
1-комн. квартира 23,00 м2 15 200 010
Этаж 1/9
СПБ, ЖК «Авант»
Чкаловская
6 мин.
Строится
1-комн. квартира 24,54 м2 24 884 034
Этаж 2/9
СПБ, ЖК «Авант»
Чкаловская
6 мин.
Строится
1-комн. квартира 25,19 м2 30 942 565
Этаж 2/8
СПБ, ЖК «Авант»
Чкаловская
6 мин.
Строится
1-комн. квартира 25,52 м2 32 484 842
Этаж 4/8
СПБ, ЖК «Авант»
Чкаловская
6 мин.
Строится
Посмотреть 39 квартир в ЖК «Авант»
2-комн. квартира 52,53 м2 45 823 994
Этаж 5/9
СПБ, ЖК «Авант»
Чкаловская
6 мин.
Строится
2-комн. квартира 55,07 м2 48 574 163
Этаж 5/9
СПБ, ЖК «Авант»
Чкаловская
6 мин.
Строится
2-комн. квартира 61,87 м2 47 914 946
Этаж 1/9
СПБ, ЖК «Авант»
Чкаловская
6 мин.
Строится
2-комн. квартира 62,07 м2 50 151 759
Этаж 2/9
СПБ, ЖК «Авант»
Чкаловская
6 мин.
Строится
Посмотреть 44 квартиры в ЖК «Авант»
3-комн. квартира 88,84 м2 72 635 449
Этаж 1/9
СПБ, ЖК «Авант»
Чкаловская
6 мин.
Строится
3-комн. квартира 93,21 м2 93 020 156
Этаж 2/4
СПБ, ЖК «Авант»
Чкаловская
6 мин.
Строится
3-комн. квартира 99,21 м2 88 787 337
Этаж 5/7
СПБ, ЖК «Авант»
Чкаловская
6 мин.
Строится
3-комн. квартира 101,47 м2 93 209 851
Этаж 6/9
СПБ, ЖК «Авант»
Чкаловская
6 мин.
Строится
Посмотреть 14 квартир в ЖК «Авант»
4-комн. квартира 128,88 м2 135 655 866
Этаж 7/9
СПБ, ЖК «Авант»
Чкаловская
6 мин.
Строится

Скидки и спецпредложения от застройщиков

ЖК «Авант» на карте

Выгодные предложения на новостройки

Отзывы о ЖК «Авант»

Самый полезный отзыв
ОС
10 февраля 2025
Оценка:
Достоинства
Социальная инфраструктура
Планировки
Способы покупки
Двор, окружение
Расположение
Наличие собственного детского сада и школы прямо у дома - это просто находка для нашей семьи! Всегда можно быть уверенным в том, что дети обучаются в безопасной и комфортной среде, и у нас больше нет хлопот с утренними сборами и долгими поездками. Просторные зелёные зоны, деревья и свежий воздух дают атмосферу уюта и спокойствия, которую нельзя достигнуть в шумном городе.
Ответить
Самый новый отзыв
В
13 апреля
Оценка:
Петроградка уже весомый плюс для нас. А исторические корни и промышленная эстетика добавили плюсов в копилку. Ждем обещанную инфраструктуру с кафе, бутиками и фитнесом. Взяли одни из первых по рекомендации семейного агента, цена уже выросла в разы.
Ответить

Оставить отзыв

Добавьте отзыв, заполнив личные данные, или сначала войдите на сайт, тогда информация будет автоматически взята из личного профиля.
Оценка*