Переверните экран
Поиск домов и коттеджей

Найдите идеальный дом или коттедж в Санкт-Петербурге и области

Найдите идеальный дом или коттедж в Санкт-Петербурге и области

Перейти к поиску
Новостройки Квартиры Ипотека Медиа О проекте Контакты Реклама на сайте Vk Youtube Telegram Дзен Продавцы и застройщики Коммерческие помещения Квартиры на карте Эксперты и авторы Машиноместа Акции от застройщиков Банки и программы Апартаменты Новостройки на карте 4-комнатные и более Готовые новостройки 3-комнатные Военная ипотека Покупателю Новостройки Санкт-Петербурга Видеообзор новостроек Семейная ипотека Аналитика рынка Панорамы новостроек 1-комнатные Субсидированная застройщиком Мнение эксперта Студии Ипотечный калькулятор Новости недвижимости Новостройки Ленинградской области IT-ипотека Квартиры со скидками до 25% Новостройки премиум-класса Новостройки бизнес-класса Дома и коттеджи Бизнес-центры Бизнес-центры в Санкт-Петербурге Бизнес-центры рядом с метро Строящиеся бизнес-центры Бизнес-центры класса A
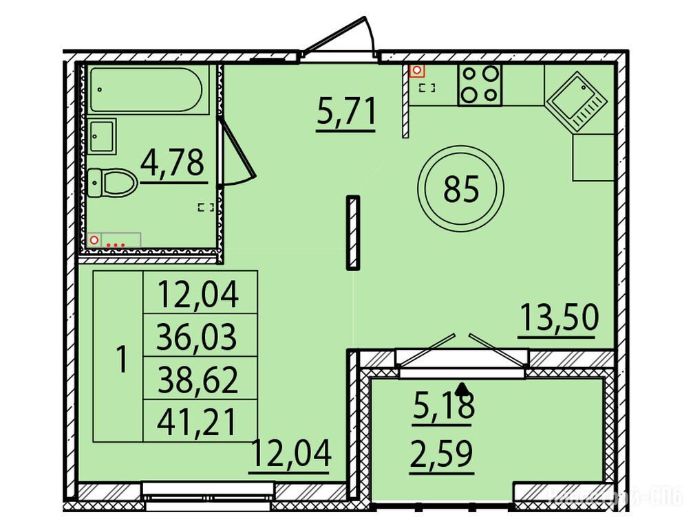
1-комн. квартира, 36.03 м2, 1 этаж
Срок сдачи 2 квартал 2026 года
7 389 753 
205 100 2
обновлено 5 декабря

Описание 1-комн. квартиры

Срок ГК
2 квартал 2026 года
Общая площадь
36.03 м2
Этаж
1 / 4
Отделка
нет

Расположение 1-комн. квартиры

Локация
Метро
Купчино
14 мин.
Дом
1
Адрес
ул. Сарицкая, ЖК «Образцовый квартал 15», секция 1

Особенности

Продается однокомнатная квартира в новостройке ЖК «Образцовый квартал 15» по адресу Санкт-Петербург, Пушкинский, Шушары пос., ул. Сарицкая, ЖК «Образцовый квартал 15». Общая площадь квартиры - 36.03 кв. м. Тип проекта, по которому построен дом — Монолитно-кирпичный, компания-застройщик — СЗ «Терминал Ресурс». Стоимость квартиры — 7 389 753 руб. Способы оплаты можно уточнить у продавца. Срок сдачи — 2 квартал 2026. Более подробная информация по телефону.
Инфоцентр новостроек
Инфоцентр новостроек
+7 (812) 424-49-09
Время работы 9:00 — 21:00
Посмотреть все спецпредложения
студия 29,92 м2 6 672 160
Этаж 4/4
СПБ, ЖК «Образцовый квартал 15»
Купчино
14 мин.
Строится
студия 31,35 м2 6 991 050
Этаж 4/4
СПБ, ЖК «Образцовый квартал 15»
Купчино
14 мин.
Строится
студия 31,53 м2 6 684 360
Этаж 2/4
СПБ, ЖК «Образцовый квартал 15»
Купчино
14 мин.
Строится
студия 31,81 м2 6 524 231
Этаж 1/4
СПБ, ЖК «Образцовый квартал 15»
Купчино
14 мин.
Строится
Посмотреть 5 квартир в ЖК «Образцовый квартал 15»
1-комн. квартира 32,94 м2 7 345 620
Этаж 4/4
СПБ, ЖК «Образцовый квартал 15»
Купчино
14 мин.
Строится
1-комн. квартира 33,19 м2 7 202 230
Этаж 3/4
СПБ, ЖК «Образцовый квартал 15»
Купчино
14 мин.
Строится
1-комн. квартира 33,69 м2 7 512 870
Этаж 4/4
СПБ, ЖК «Образцовый квартал 15»
Купчино
14 мин.
Строится
1-комн. квартира 33,88 м2 7 351 960
Этаж 3/4
СПБ, ЖК «Образцовый квартал 15»
Купчино
14 мин.
Строится
Посмотреть 346 квартир в ЖК «Образцовый квартал 15»
2-комн. квартира 56,16 м2 11 400 480
Этаж 3/4
СПБ, ЖК «Образцовый квартал 15»
Купчино
14 мин.
Строится
2-комн. квартира 56,17 м2 11 402 510
Этаж 3/4
СПБ, ЖК «Образцовый квартал 15»
Купчино
14 мин.
Строится
2-комн. квартира 56,86 м2 11 087 700
Этаж 1/4
СПБ, ЖК «Образцовый квартал 15»
Купчино
14 мин.
Строится
2-комн. квартира 56,98 м2 11 111 100
Этаж 1/4
СПБ, ЖК «Образцовый квартал 15»
Купчино
14 мин.
Строится
Посмотреть 17 квартир в ЖК «Образцовый квартал 15»
3-комн. квартира 77,56 м2 14 736 400
Этаж 1/4
СПБ, ЖК «Образцовый квартал 15»
Купчино
14 мин.
Строится
3-комн. квартира 79,17 м2 15 517 320
Этаж 2/4
СПБ, ЖК «Образцовый квартал 15»
Купчино
14 мин.
Строится
3-комн. квартира 79,64 м2 15 131 600
Этаж 1/4
СПБ, ЖК «Образцовый квартал 15»
Купчино
14 мин.
Строится
3-комн. квартира 79,73 м2 15 148 700
Этаж 1/4
СПБ, ЖК «Образцовый квартал 15»
Купчино
14 мин.
Строится
Посмотреть 16 квартир в ЖК «Образцовый квартал 15»

Скидки и спецпредложения от застройщиков

ЖК «Образцовый квартал 15» на карте

Выгодные предложения на новостройки

Отзывы о ЖК «Образцовый квартал 15»

Самый полезный отзыв
ПА
28 февраля
Оценка:
Планировки
Внешний вид фасада
Двор, окружение
Выглядят современно и стильно, гармонично вписываясь в окружающий ландшафт. Здесь приятно гулять и проводить время на свежем воздухе. Каждый дом расположен на охраняемой территории, что дает дополнительное чувство безопасности и защищенности.
Ответить
Полезный отзыв?
Самый новый отзыв
Д
27 октября
Оценка:
Здесь хорошая инфраструктура, много магазинов и школ рядом. Понравились планировки квартир. Но есть небольшой минус – может быть шумно от проезжей части, да и сам по себе район многолюдный.
Ответить
Полезный отзыв?
Добавьте отзыв, заполнив личные данные, или сначала войдите на сайт, тогда информация будет автоматически взята из личного профиля.
Оценка*