Переверните экран
Новостройки Квартиры Ипотека Медиа О проекте Контакты Реклама на сайте Vk Youtube Telegram Дзен Продавцы и застройщики Коммерческие помещения Квартиры на карте Эксперты и авторы Машиноместа Акции от застройщиков Банки и программы Апартаменты Новостройки на карте 4-комнатные и более Готовые новостройки 3-комнатные Военная ипотека Покупателю Новостройки Санкт-Петербурга Видеообзор новостроек Семейная ипотека Аналитика рынка Панорамы новостроек 1-комнатные Субсидированная застройщиком Мнение эксперта Студии Ипотечный калькулятор Новости недвижимости Новостройки Ленинградской области IT-ипотека Квартиры со скидками до 25% Новостройки премиум-класса Новостройки бизнес-класса Дома и коттеджи Бизнес-центры Бизнес-центры в Санкт-Петербурге Бизнес-центры рядом с метро Строящиеся бизнес-центры Бизнес-центры класса A
Данное предложение на 16.12.2025 неактуально. Пожалуйста, ознакомьтесь с другими похожими предложениями в ЖК «Приморский квартал» .
2-комн. квартира, 60.11 м2, 4 этаж
Сдан
18 228 860 
303 258 2
обновлено 17 сентября

Описание 2-комн. квартиры

Срок ГК
Дом сдан
Стадия строительства
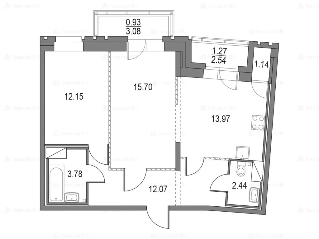
Общая площадь
60.11 м2
Жилая площадь
27.85 м2
Площадь кухни
13.97 м2
Этаж
4 / 25

Расположение 2-комн. квартиры

Локация
Метро
Дом
41
Адрес
Коломяжский проспект, 13к2, секция 2

Способы покупки

Особенности

Продается двухкомнатная квартира в новостройке ЖК «Приморский квартал» по адресу Санкт-Петербург, Приморский, Коломяжский проспект, 13к2. Общая площадь квартиры - 60.11 кв. м. Тип проекта, по которому построен дом — Монолит,Монолитно-кирпичный, компания-застройщик — Мегалит – Охта Групп. Стоимость квартиры — 18 228 860 руб. Способы оплаты можно уточнить у продавца. Более подробная информация по телефону.
Инфоцентр новостроек
Инфоцентр новостроек
+7 (812) 424-49-09
Время работы 9:00 — 21:00
Посмотреть все спецпредложения
студия 23,76 м2 9 941 244
Этаж 3/24
СПБ, ЖК «Приморский квартал»
Пионерская
4 мин.
Сдан
студия 25,41 м2 10 678 377
Этаж 2/24
СПБ, ЖК «Приморский квартал»
Пионерская
4 мин.
Сдан
студия 25,73 м2 10 861 098
Этаж 22/24
СПБ, ЖК «Приморский квартал»
Пионерская
4 мин.
Сдан
студия 26,12 м2 10 740 181
Этаж 9/15
СПБ, ЖК «Приморский квартал»
Пионерская
4 мин.
Сдан
Посмотреть 8 квартир в ЖК «Приморский квартал»
1-комн. квартира 44,46 м2 16 260 338
Этаж 3/16
СПБ, ЖК «Приморский квартал»
Пионерская
4 мин.
Сдан
1-комн. квартира 49,94 м2 17 665 897
Этаж 2/16
СПБ, ЖК «Приморский квартал»
Пионерская
4 мин.
Сдан
Посмотреть 5 квартир в ЖК «Приморский квартал»
2-комн. квартира 53,06 м2 18 533 706
Этаж 3/16
СПБ, ЖК «Приморский квартал»
Пионерская
4 мин.
Сдан
2-комн. квартира 59,97 м2 19 950 294
Этаж 2/16
СПБ, ЖК «Приморский квартал»
Пионерская
4 мин.
Сдан
2-комн. квартира 60,14 м2 20 355 616
Этаж 2/16
СПБ, ЖК «Приморский квартал»
Пионерская
4 мин.
Сдан
2-комн. квартира 60,57 м2 21 652 942
Этаж 15/25
СПБ, ЖК «Приморский квартал»
Пионерская
4 мин.
Сдан
Посмотреть 21 квартира в ЖК «Приморский квартал»
3-комн. квартира 78,61 м2 22 584 946
Этаж 19/21
СПБ, ЖК «Приморский квартал»
Пионерская
4 мин.
Сдан
3-комн. квартира 80,98 м2 22 145 794
Этаж 3/21
СПБ, ЖК «Приморский квартал»
Пионерская
4 мин.
Сдан
3-комн. квартира 81,36 м2 21 996 864
Этаж 4/21
СПБ, ЖК «Приморский квартал»
Пионерская
4 мин.
Сдан
3-комн. квартира 82,03 м2 22 475 634
Этаж 4/24
СПБ, ЖК «Приморский квартал»
Пионерская
4 мин.
Сдан
Посмотреть 24 квартиры в ЖК «Приморский квартал»

Скидки и спецпредложения от застройщиков

ЖК «Приморский квартал» на карте

Выгодные предложения на новостройки

Отзывы о ЖК «Приморский квартал»

Самый полезный отзыв
П
26 июня 2018
Оценка:
Сейчас в моде дворы без машин, но нам повезло, у нас будет возможность ставить на территории. Правда, мне кажется, что владельцы, которые берегут свои авто, все равно паркинг рассматривают, все-таки это удобно и спишь спокойно. Тем более, цена в 400 000 руб для Приморского района очень привлекательна.
Ответить
Полезный отзыв?
Самый новый отзыв
М
07 декабря 2019
Оценка:
Социальная инфраструктура
Подземный паркинг
достаточно приличное место
Ответить
Полезный отзыв?
Добавьте отзыв, заполнив личные данные, или сначала войдите на сайт, тогда информация будет автоматически взята из личного профиля.
Оценка*