Переверните экран
Поиск домов и коттеджей

Найдите идеальный дом или коттедж в Санкт-Петербурге и области

Найдите идеальный дом или коттедж в Санкт-Петербурге и области

Перейти к поиску
Новостройки Квартиры Ипотека Медиа О проекте Контакты Реклама на сайте Vk Youtube Telegram Дзен Продавцы и застройщики Коммерческие помещения Квартиры на карте Эксперты и авторы Машиноместа Акции от застройщиков Банки и программы Апартаменты Новостройки на карте 4-комнатные и более Готовые новостройки 3-комнатные Военная ипотека Покупателю Новостройки Санкт-Петербурга Видеообзор новостроек Семейная ипотека Аналитика рынка Панорамы новостроек 1-комнатные Субсидированная застройщиком Мнение эксперта Студии Ипотечный калькулятор Новости недвижимости Новостройки Ленинградской области ИТ-ипотека Квартиры со скидками до 25% Новостройки премиум-класса Новостройки бизнес-класса Дома и коттеджи Бизнес-центры Бизнес-центры в Санкт-Петербурге Бизнес-центры рядом с метро Строящиеся бизнес-центры Бизнес-центры класса A Ипотека со ставкой 0,1% Траншевая ипотека
2-комн. квартира, 45.60 м2, 1 этаж
Сдан
13 613 020 
298 531 2
обновлено 3 марта

Описание 2-комн. квартиры

Застройщик
Срок ГК
Дом сдан
Стадия строительства
сдан ГК
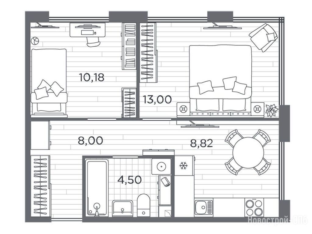
Общая площадь
45.60 м2
Жилая площадь
23.18 м2
Площадь кухни
8.82 м2
Этаж
1 / 5
Отделка
чистовая
Грузовой лифт
есть

Расположение 2-комн. квартиры

Локация
Метро
Ж/Д-станция
Дом
1
Адрес
Пулковское шоссе, участок 24 корп.1, секция 1

Способы покупки

Особенности

Продается двухкомнатная квартира в новостройке ЖК «Плюс Пулковский» по адресу Санкт-Петербург, Московский, Пулковское шоссе, участок 24 корп.1. Общая площадь квартиры - 45.6 кв. м. Тип проекта, по которому построен дом — Монолитно-кирпичный, компания-застройщик — ПСК. Стоимость квартиры — 13 613 020 руб. Способы оплаты можно уточнить у продавца. Более подробная информация по телефону.
Инфоцентр новостроек
Инфоцентр новостроек
+7 (812) 424-49-09
Время работы 9:00 — 21:00
студия 21,10 м2 5 739 200
Этаж 2/5
СПБ, ЖК «Плюс Пулковский»
Московская
15 мин.
Строится
студия 21,70 м2 5 642 672
Этаж 1/5
СПБ, ЖК «Плюс Пулковский»
Московская
15 мин.
Строится
студия 21,80 м2 5 657 100
Этаж 1/5
СПБ, ЖК «Плюс Пулковский»
Московская
15 мин.
Строится
Этаж 2/5
СПБ, ЖК «Плюс Пулковский»
Московская
15 мин.
Строится
Посмотреть 100 квартир в ЖК «Плюс Пулковский»
1-комн. квартира 32,30 м2 8 042 247
Этаж 3/5
СПБ, ЖК «Плюс Пулковский»
Московская
15 мин.
Строится
1-комн. квартира 32,31 м2 8 762 472
Этаж 2/5
СПБ, ЖК «Плюс Пулковский»
Московская
15 мин.
Строится
1-комн. квартира 32,60 м2 7 788 335
Этаж 3/5
СПБ, ЖК «Плюс Пулковский»
Московская
15 мин.
Строится
Этаж 5/5
СПБ, ЖК «Плюс Пулковский»
Московская
15 мин.
Строится
Посмотреть 132 квартиры в ЖК «Плюс Пулковский»
2-комн. квартира 44,76 м2 12 276 862
Этаж 5/5
СПБ, ЖК «Плюс Пулковский»
Московская
15 мин.
Строится
2-комн. квартира 44,79 м2 12 182 880
Этаж 2/5
СПБ, ЖК «Плюс Пулковский»
Московская
15 мин.
Строится
2-комн. квартира 44,89 м2 12 254 970
Этаж 3/5
СПБ, ЖК «Плюс Пулковский»
Московская
15 мин.
Строится
2-комн. квартира 45,06 м2 12 286 329
Этаж 2/5
СПБ, ЖК «Плюс Пулковский»
Московская
15 мин.
Строится
Посмотреть 39 квартир в ЖК «Плюс Пулковский»
3-комн. квартира 61,22 м2 16 116 654
Этаж 1/5
СПБ, ЖК «Плюс Пулковский»
Московская
15 мин.
Строится
3-комн. квартира 61,66 м2 15 064 462
Этаж 2/5
СПБ, ЖК «Плюс Пулковский»
Московская
15 мин.
Строится
3-комн. квартира 61,80 м2 14 599 323
Этаж 1/5
СПБ, ЖК «Плюс Пулковский»
Московская
15 мин.
Строится
3-комн. квартира 62,08 м2 17 476 637
Этаж 3/5
СПБ, ЖК «Плюс Пулковский»
Московская
15 мин.
Строится
Посмотреть 39 квартир в ЖК «Плюс Пулковский»

Скидки и спецпредложения от застройщиков

ЖК «Плюс Пулковский» на карте

Выгодные предложения на новостройки

Отзывы о ЖК «Плюс Пулковский»

Самый полезный отзыв
Ф
31 октября 2023
Оценка:
Транспортная доступность
Планировки
Готовность
Вижу большой прогресс по сравнению с прошлым их кварталом Славянка. Не то чтобы он был плох, но вот, уже дворы закрыли от машин, центральную аллею спроектировали через весь квартал – чисто пешеходную. Вечерами гулять размеренно будет в удовольствие. Дворики патио для квартир на первых этажах и высокие 3,5 метра потолки.
Ответить
Полезный отзыв?
Самый новый отзыв
А
02 февраля
Оценка:
Для меня лично плюс, что в нашем жк будут кабинеты врачей. Переедем с 2 детьми и куда-то кататься с температурой или кашлем точно не хочется. А так в соседний дом дойти не проблема за консультацией
Ответить
Полезный отзыв?
Добавьте отзыв, заполнив личные данные, или сначала войдите на сайт, тогда информация будет автоматически взята из личного профиля.
Оценка*