Переверните экран
Новостройки Квартиры Ипотека Медиа О проекте Контакты Реклама на сайте Vk Youtube Telegram Дзен Продавцы и застройщики Коммерческие помещения Квартиры на карте Эксперты и авторы Машиноместа Акции от застройщиков Банки и программы Апартаменты Новостройки на карте 4-комнатные и более Готовые новостройки 3-комнатные Военная ипотека Покупателю Новостройки Санкт-Петербурга Видеообзор новостроек Семейная ипотека Аналитика рынка Панорамы новостроек 1-комнатные Субсидированная застройщиком Мнение эксперта Студии Ипотечный калькулятор Новости недвижимости Новостройки Ленинградской области IT-ипотека Квартиры со скидками до 25% Новостройки премиум-класса Новостройки бизнес-класса Дома и коттеджи Бизнес-центры Бизнес-центры в Санкт-Петербурге Бизнес-центры рядом с метро Строящиеся бизнес-центры Бизнес-центры класса A
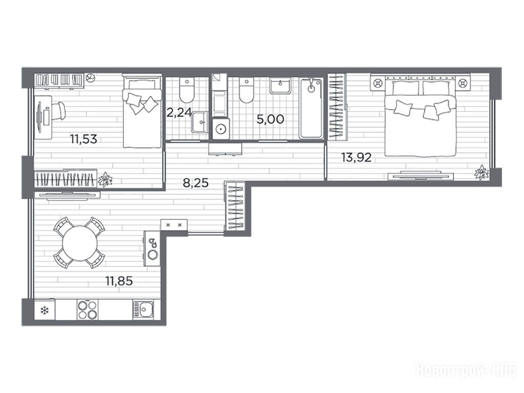
2-комн. квартира, 52.79 м2, 3 этаж
Срок сдачи 4 квартал 2025 года
13 994 055 
265 089 2
обновлено 16 декабря

Описание 2-комн. квартиры

Новостройка
Застройщик
Срок ГК
4 квартал 2025 года
Стадия строительства
отделка фасада и внутренние работы
Общая площадь
52.79 м2
Жилая площадь
25.45 м2
Площадь кухни
11.85 м2
Этаж
3 / 5
Отделка
чистовая
Грузовой лифт
есть

Расположение 2-комн. квартиры

Локация
Метро
Ж/Д-станция
Дом
1
Адрес
Пулковское шоссе, участок 24 корп.1, секция 1

Способы покупки

Особенности

Продается двухкомнатная квартира в новостройке ЖК «Plus Пулковский» по адресу Санкт-Петербург, Московский, Пулковское шоссе, участок 24 корп.1. Общая площадь квартиры - 52.79 кв. м. Тип проекта, по которому построен дом — Монолитно-кирпичный, компания-застройщик — ПСК. Стоимость квартиры — 13 994 055 руб. Способы оплаты можно уточнить у продавца. Срок сдачи — 4 квартал 2025. Более подробная информация по телефону.
Инфоцентр новостроек
Инфоцентр новостроек
+7 (812) 424-49-09
Время работы 9:00 — 21:00

Похожие квартиры в ЖК «Plus Пулковский»

3 этаж
из 5 4 квартал 2025
Санкт-Петербург, Санкт-Петербург
Московская
15 мин.
1
Корпус
чистовая
Отделка
0.00 м
Потолки
ЖК «Plus Пулковский»
13 994 055
Альфа-Банк, Промсвязьбанк, Совкомбанк
6.00%
Ставка
30.10%
Первый взнос
от 83 901 /мес.
Все варианты
4 этаж
из 5 4 квартал 2025
Санкт-Петербург, Санкт-Петербург
Московская
15 мин.
1
Корпус
чистовая
Отделка
0.00 м
Потолки
ЖК «Plus Пулковский»
14 013 347
Альфа-Банк, Промсвязьбанк, Совкомбанк
6.00%
Ставка
30.10%
Первый взнос
от 84 017 /мес.
Все варианты
Посмотреть все спецпредложения
студия 21,70 м2 5 328 022
Этаж 1/5
СПБ, ЖК «Plus Пулковский»
Московская
15 мин.
Строится
студия 22,63 м2 4 550 000
Этаж 1/5
СПБ, ЖК «Plus Пулковский»
Московская
15 мин.
Строится
студия 23,06 м2 6 063 765
Этаж 4/5
СПБ, ЖК «Plus Пулковский»
Московская
15 мин.
Строится
студия 23,30 м2 5 438 476
Этаж 1/5
СПБ, ЖК «Plus Пулковский»
Московская
15 мин.
Строится
Посмотреть 55 квартир в ЖК «Plus Пулковский»
1-комн. квартира 32,30 м2 7 783 847
Этаж 3/5
СПБ, ЖК «Plus Пулковский»
Московская
15 мин.
Строится
Этаж 5/5
СПБ, ЖК «Plus Пулковский»
Московская
15 мин.
Строится
1-комн. квартира 32,60 м2 7 592 735
Этаж 3/5
СПБ, ЖК «Plus Пулковский»
Московская
15 мин.
Строится
1-комн. квартира 33,00 м2 7 385 928
Этаж 1/5
СПБ, ЖК «Plus Пулковский»
Московская
15 мин.
Строится
Посмотреть 149 квартир в ЖК «Plus Пулковский»
2-комн. квартира 44,50 м2 12 261 721
Этаж 1/5
СПБ, ЖК «Plus Пулковский»
Московская
15 мин.
Строится
2-комн. квартира 44,76 м2 11 672 602
Этаж 5/5
СПБ, ЖК «Plus Пулковский»
Московская
15 мин.
Строится
Этаж 2/5
СПБ, ЖК «Plus Пулковский»
Московская
15 мин.
Строится
2-комн. квартира 45,06 м2 11 678 019
Этаж 2/5
СПБ, ЖК «Plus Пулковский»
Московская
15 мин.
Строится
Посмотреть 49 квартир в ЖК «Plus Пулковский»
3-комн. квартира 61,22 м2 15 167 744
Этаж 1/5
СПБ, ЖК «Plus Пулковский»
Московская
15 мин.
Строится
3-комн. квартира 61,66 м2 14 417 032
Этаж 2/5
СПБ, ЖК «Plus Пулковский»
Московская
15 мин.
Строится
3-комн. квартира 61,80 м2 13 950 423
Этаж 1/5
СПБ, ЖК «Plus Пулковский»
Московская
15 мин.
Строится
3-комн. квартира 62,08 м2 16 203 997
Этаж 3/5
СПБ, ЖК «Plus Пулковский»
Московская
15 мин.
Строится
Посмотреть 37 квартир в ЖК «Plus Пулковский»

Скидки и спецпредложения от застройщиков

ЖК «Plus Пулковский» на карте

Выгодные предложения на новостройки

Отзывы о ЖК «Plus Пулковский»

Самый полезный отзыв
Ф
31 октября 2023
Оценка:
Транспортная доступность
Планировки
Готовность
Вижу большой прогресс по сравнению с прошлым их кварталом Славянка. Не то чтобы он был плох, но вот, уже дворы закрыли от машин, центральную аллею спроектировали через весь квартал – чисто пешеходную. Вечерами гулять размеренно будет в удовольствие. Дворики патио для квартир на первых этажах и высокие 3,5 метра потолки.
Ответить
Полезный отзыв?
Самый новый отзыв
К
08 декабря
Оценка:
При более подробном изучении проекта прочитал, что кроме обычных жилых корпусов будет 2 с апартаментами,которые будут сдаваться как гостиничные номера. На самом деле это очень удобно, чтобы не снимать квартиру у частника своим приезжим родственникам, а заселить их в гостиницу. Если еще и сервис соответствующий будет, то вообще супер
Ответить
Полезный отзыв?
Добавьте отзыв, заполнив личные данные, или сначала войдите на сайт, тогда информация будет автоматически взята из личного профиля.
Оценка*