Переверните экран
Поиск домов и коттеджей

Найдите идеальный дом или коттедж в Санкт-Петербурге и области

Найдите идеальный дом или коттедж в Санкт-Петербурге и области

Перейти к поиску
Новостройки Квартиры Ипотека Медиа О проекте Контакты Реклама на сайте Vk Youtube Telegram Дзен Продавцы и застройщики Коммерческие помещения Квартиры на карте Эксперты и авторы Машиноместа Акции от застройщиков Банки и программы Апартаменты Новостройки на карте 4-комнатные и более Готовые новостройки 3-комнатные Военная ипотека Покупателю Новостройки Санкт-Петербурга Видеообзор новостроек Семейная ипотека Аналитика рынка Панорамы новостроек 1-комнатные Субсидированная застройщиком Мнение эксперта Студии Ипотечный калькулятор Новости недвижимости Новостройки Ленинградской области ИТ-ипотека Квартиры со скидками до 25% Новостройки премиум-класса Новостройки бизнес-класса Дома и коттеджи Бизнес-центры Бизнес-центры в Санкт-Петербурге Бизнес-центры рядом с метро Строящиеся бизнес-центры Бизнес-центры класса A Ипотека со ставкой 0,1% Траншевая ипотека
Данное предложение на 11.03.2026 неактуально. Пожалуйста, ознакомьтесь с другими похожими предложениями в ЖК «Плюс Пулковский» .
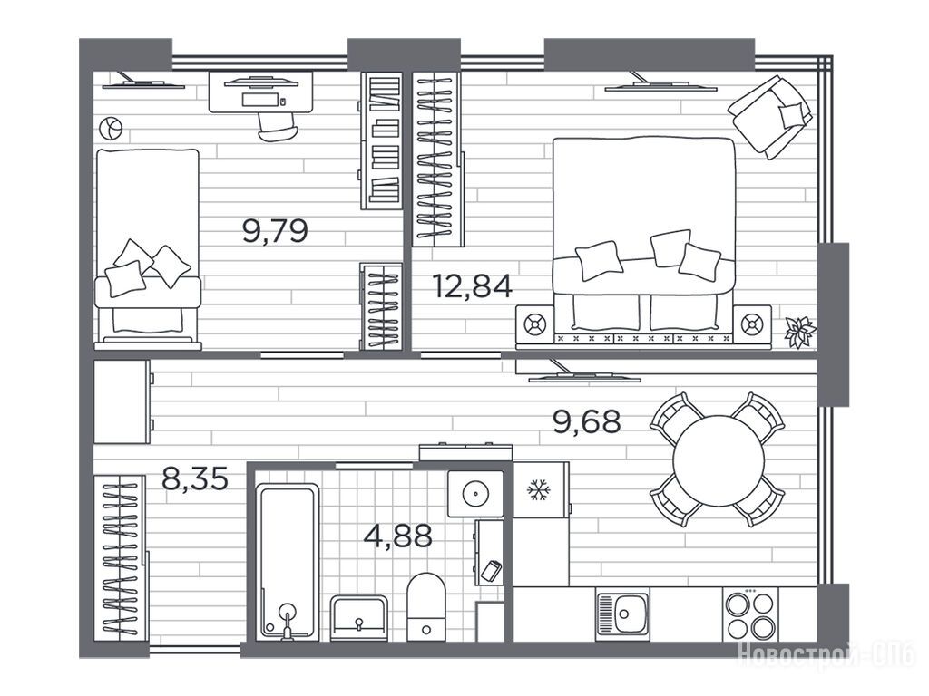
2-комн. квартира, 45.54 м2, 1 этаж
Срок сдачи 1 квартал 2026 года
13 319 602 
292 481 2
обновлено 25 февраля

Описание 2-комн. квартиры

Застройщик
Срок ГК
1 квартал 2026 года
Стадия строительства
сдан ГК
Общая площадь
45.54 м2
Жилая площадь
22.63 м2
Площадь кухни
9.68 м2
Этаж
1 / 5
Отделка
чистовая
Грузовой лифт
есть

Расположение 2-комн. квартиры

Локация
Метро
Ж/Д-станция
Дом
2
Адрес
Пулковское шоссе, участок 24 корп.2, секция 1

Способы покупки

Особенности

Продается двухкомнатная квартира в новостройке ЖК «Плюс Пулковский» по адресу Санкт-Петербург, Московский, Пулковское шоссе, участок 24 корп.2. Общая площадь квартиры - 45.54 кв. м. Тип проекта, по которому построен дом — Монолитно-кирпичный, компания-застройщик — ПСК. Стоимость квартиры — 13 319 602 руб. Способы оплаты можно уточнить у продавца. Срок сдачи — 1 квартал 2026. Более подробная информация по телефону.
Инфоцентр новостроек
Инфоцентр новостроек
+7 (812) 424-49-09
Время работы 9:00 — 21:00
студия 21,10 м2 5 739 200
Этаж 2/5
СПБ, ЖК «Плюс Пулковский»
Московская
15 мин.
Строится
студия 21,70 м2 5 642 672
Этаж 1/5
СПБ, ЖК «Плюс Пулковский»
Московская
15 мин.
Строится
студия 21,80 м2 5 657 100
Этаж 1/5
СПБ, ЖК «Плюс Пулковский»
Московская
15 мин.
Строится
Этаж 2/5
СПБ, ЖК «Плюс Пулковский»
Московская
15 мин.
Строится
Посмотреть 100 квартир в ЖК «Плюс Пулковский»
1-комн. квартира 32,30 м2 8 268 347
Этаж 3/5
СПБ, ЖК «Плюс Пулковский»
Московская
15 мин.
Строится
1-комн. квартира 32,31 м2 8 988 642
Этаж 2/5
СПБ, ЖК «Плюс Пулковский»
Московская
15 мин.
Строится
1-комн. квартира 32,60 м2 8 026 413
Этаж 4/5
СПБ, ЖК «Плюс Пулковский»
Московская
15 мин.
Строится
Этаж 5/5
СПБ, ЖК «Плюс Пулковский»
Московская
15 мин.
Строится
Посмотреть 130 квартир в ЖК «Плюс Пулковский»
2-комн. квартира 44,76 м2 12 366 382
Этаж 5/5
СПБ, ЖК «Плюс Пулковский»
Московская
15 мин.
Строится
2-комн. квартира 44,79 м2 12 272 460
Этаж 2/5
СПБ, ЖК «Плюс Пулковский»
Московская
15 мин.
Строится
2-комн. квартира 44,89 м2 12 344 750
Этаж 3/5
СПБ, ЖК «Плюс Пулковский»
Московская
15 мин.
Строится
2-комн. квартира 45,06 м2 12 376 449
Этаж 2/5
СПБ, ЖК «Плюс Пулковский»
Московская
15 мин.
Строится
Посмотреть 37 квартир в ЖК «Плюс Пулковский»
3-комн. квартира 61,22 м2 16 116 654
Этаж 1/5
СПБ, ЖК «Плюс Пулковский»
Московская
15 мин.
Строится
3-комн. квартира 61,66 м2 15 064 462
Этаж 2/5
СПБ, ЖК «Плюс Пулковский»
Московская
15 мин.
Строится
3-комн. квартира 61,80 м2 14 599 323
Этаж 1/5
СПБ, ЖК «Плюс Пулковский»
Московская
15 мин.
Строится
3-комн. квартира 62,08 м2 17 476 637
Этаж 3/5
СПБ, ЖК «Плюс Пулковский»
Московская
15 мин.
Строится
Посмотреть 39 квартир в ЖК «Плюс Пулковский»

Скидки и спецпредложения от застройщиков

ЖК «Плюс Пулковский» на карте

Выгодные предложения на новостройки

Отзывы о ЖК «Плюс Пулковский»

Самый полезный отзыв
Ф
31 октября 2023
Оценка:
Достоинства
Транспортная доступность
Планировки
Недостатки
Готовность
Вижу большой прогресс по сравнению с прошлым их кварталом Славянка. Не то чтобы он был плох, но вот, уже дворы закрыли от машин, центральную аллею спроектировали через весь квартал – чисто пешеходную. Вечерами гулять размеренно будет в удовольствие. Дворики патио для квартир на первых этажах и высокие 3,5 метра потолки.
Ответить
Самый новый отзыв
С
10 марта
Оценка:
Первые 3 дома ввели в эксплуатацию, активно убираются в квартирах и местах общего пользования перед приемкой ключей. Вторая очередь тоже на подходе, на 99% уже закончена, там заканчивают благоустраивать дворы. Во все сроки ПСК укладываются, молодцы
Ответить

Оставить отзыв

Добавьте отзыв, заполнив личные данные, или сначала войдите на сайт, тогда информация будет автоматически взята из личного профиля.
Оценка*