Переверните экран
Поиск домов и коттеджей

Найдите идеальный дом или коттедж в Санкт-Петербурге и области

Найдите идеальный дом или коттедж в Санкт-Петербурге и области

Перейти к поиску
Новостройки Квартиры Ипотека Медиа О проекте Контакты Реклама на сайте Vk Youtube Telegram Дзен Продавцы и застройщики Коммерческие помещения Квартиры на карте Эксперты и авторы Машиноместа Акции от застройщиков Банки и программы Апартаменты Новостройки на карте 4-комнатные и более Готовые новостройки 3-комнатные Военная ипотека Покупателю Новостройки Санкт-Петербурга Видеообзор новостроек Семейная ипотека Аналитика рынка Панорамы новостроек 1-комнатные Субсидированная застройщиком Мнение эксперта Студии Ипотечный калькулятор Новости недвижимости Новостройки Ленинградской области ИТ-ипотека Квартиры со скидками до 25% Новостройки премиум-класса Новостройки бизнес-класса Дома и коттеджи Коттеджные поселки в Санкт-Петербурге Коттеджные поселки в Ленинградской обл Готовые коттеджные поселки Строящиеся коттеджные поселки Коттеджные поселки у леса Коттеджные поселки у водоема Коттеджные поселки в ипотеку Бизнес-центры Коттеджи Ипотека со ставкой 0,1% Траншевая ипотека
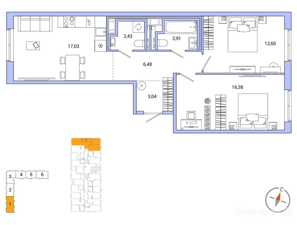
2-комн. квартира, 60.87 м2, 1 этаж
Срок сдачи 4 квартал 2027 года
16 538 379 
271 700 2
обновлено 4 мая

Описание 2-комн. квартиры

Новостройка
Застройщик
Срок ГК
4 квартал 2027 года
Стадия строительства
монтаж нижних этажей
Общая площадь
60.87 м2
Этаж
1 / 7
Отделка
чистовая

Расположение 2-комн. квартиры

Локация
Ж/Д-станция
Дом
3.1.1
Адрес
Суздальское шоссе, 20., секция 1

Способы покупки

Особенности

Продается двухкомнатная квартира в новостройке ЖК «ОКЛА» по адресу Санкт-Петербург, Приморский, Суздальское шоссе, 20.. Общая площадь квартиры - 60.87 кв. м. Тип проекта, по которому построен дом — Монолитно-кирпичный, компания-застройщик — «Ленстройтрест». Стоимость квартиры — 16 538 379 руб. Способы оплаты можно уточнить у продавца. Срок сдачи — 4 квартал 2027. Более подробная информация по телефону.
Инфоцентр новостроек
Инфоцентр новостроек
+7 (812) 424-49-09
Время работы 9:00 — 21:00
студия 28,02 м2 6 831 276
Этаж 17/25
СПБ, ЖК «ОКЛА»
Парнас
10 мин.
Строится
студия 28,05 м2 7 321 050
Этаж 18/25
СПБ, ЖК «ОКЛА»
Парнас
10 мин.
Строится
студия 28,10 м2 7 103 680
Этаж 17/25
СПБ, ЖК «ОКЛА»
Парнас
10 мин.
Строится
студия 28,15 м2 7 003 720
Этаж 17/25
СПБ, ЖК «ОКЛА»
Парнас
10 мин.
Строится
Посмотреть 128 квартир в ЖК «ОКЛА»
1-комн. квартира 31,55 м2 9 168 430
Этаж 1/7
СПБ, ЖК «ОКЛА»
Парнас
10 мин.
Строится
1-комн. квартира 32,56 м2 9 738 696
Этаж 2/7
СПБ, ЖК «ОКЛА»
Парнас
10 мин.
Строится
1-комн. квартира 32,68 м2 9 934 720
Этаж 2/7
СПБ, ЖК «ОКЛА»
Парнас
10 мин.
Строится
1-комн. квартира 32,81 м2 9 738 008
Этаж 1/7
СПБ, ЖК «ОКЛА»
Парнас
10 мин.
Строится
Посмотреть 185 квартир в ЖК «ОКЛА»
2-комн. квартира 31,79 м2 9 209 563
Этаж 1/7
СПБ, ЖК «ОКЛА»
Парнас
10 мин.
Строится
2-комн. квартира 32,83 м2 9 327 003
Этаж 1/7
СПБ, ЖК «ОКЛА»
Парнас
10 мин.
Строится
Этаж 2/26
СПБ, ЖК «ОКЛА»
Парнас
10 мин.
Строится
2-комн. квартира 38,23 м2 10 180 649
Этаж 1/7
СПБ, ЖК «ОКЛА»
Парнас
10 мин.
Строится
Посмотреть 116 квартир в ЖК «ОКЛА»
3-комн. квартира 64,37 м2 18 995 587
Этаж 19/25
СПБ, ЖК «ОКЛА»
Парнас
10 мин.
Строится
3-комн. квартира 64,59 м2 19 448 049
Этаж 20/25
СПБ, ЖК «ОКЛА»
Парнас
10 мин.
Строится
3-комн. квартира 64,99 м2 18 353 176
Этаж 8/25
СПБ, ЖК «ОКЛА»
Парнас
10 мин.
Строится
3-комн. квартира 65,21 м2 17 476 280
Этаж 4/25
СПБ, ЖК «ОКЛА»
Парнас
10 мин.
Строится
Посмотреть 89 квартир в ЖК «ОКЛА»
4-комн. квартира 97,86 м2 25 981 830
Этаж 2/7
СПБ, ЖК «ОКЛА»
Парнас
10 мин.
Строится
Посмотреть 5 квартир в ЖК «ОКЛА»

Скидки и спецпредложения от застройщиков

ЖК «ОКЛА» на карте

Выгодные предложения на новостройки

Отзывы о ЖК «ОКЛА»

Самый полезный отзыв
К
14 декабря 2020
Оценка:
Достоинства
Транспортная доступность
Экология
Социальная инфраструктура
Планировки
Скорость строительства
Подземный паркинг
Двор, окружение
Расположение
Почему-то на этом сайте мало отзывов, но я выбирала тут, так что решила оставить отзыв. Здорово, что участок около озёр отдали под новостройки. Не смогли удержаться от привлекательности современных ЖК и решили поменять свою старую квартиру на новую. Во-первых, контингент соседей в новых поприличнее старых кварталов, ну и конечно самое главное это безопасные дворы, ребенок подрастает, хочет уже самостоятельно гулять. ЖК выбрали по соотношение цена-отделка-планировка, но еще подкупило расположение. Вроде и в городе, метро рядом, Суздальский, ЗСД. Но при этом загородная экология, летом будет купаться где рядышком. Мы искали двушку, понравилось, что в Ойкумене полноценные изолированные двушки и кухня при этом нормального размера. Расположение с/у также радует. В цену входит отделка, так что цена очень выгодна. Ну и понравились зеленые виды из окна. Район этот обостроенный, мы тут давненько уже живём, всего для жизни хватает и торговых, и развлекательных. Радует, что у нового ЖК школа будет совсем рядышком, пешком.
Ответить
Самый новый отзыв
А
22 декабря 2025
Оценка:
Достоинства
Планировки
Способы покупки
Внешний вид фасада
Рассматривал как спокойный жилой вариант. Понравилось, что проект не перегружен высотностью, дома выглядят аккуратно. Качество строительства на уровне, без явных проблем. Из минусов — удалённость от центра и зависимость от личного транспорта. Для размеренной жизни подходит.
Ответить

Оставить отзыв

Добавьте отзыв, заполнив личные данные, или сначала войдите на сайт, тогда информация будет автоматически взята из личного профиля.
Оценка*