Переверните экран
Поиск домов и коттеджей

Найдите идеальный дом или коттедж в Санкт-Петербурге и области

Найдите идеальный дом или коттедж в Санкт-Петербурге и области

Перейти к поиску
Новостройки Квартиры Ипотека Медиа О проекте Контакты Реклама на сайте Vk Youtube Telegram Дзен Продавцы и застройщики Коммерческие помещения Квартиры на карте Эксперты и авторы Машиноместа Акции от застройщиков Банки и программы Апартаменты Новостройки на карте 4-комнатные и более Готовые новостройки 3-комнатные Военная ипотека Покупателю Новостройки Санкт-Петербурга Видеообзор новостроек Семейная ипотека Аналитика рынка Панорамы новостроек 1-комнатные Субсидированная застройщиком Мнение эксперта Студии Ипотечный калькулятор Новости недвижимости Новостройки Ленинградской области ИТ-ипотека Квартиры со скидками до 25% Новостройки премиум-класса Новостройки бизнес-класса Дома и коттеджи Коттеджные поселки в Санкт-Петербурге Коттеджные поселки в Ленинградской обл Готовые коттеджные поселки Строящиеся коттеджные поселки Коттеджные поселки у леса Коттеджные поселки у водоема Коттеджные поселки в ипотеку Бизнес-центры Коттеджи Ипотека со ставкой 0,1% Траншевая ипотека
2-комн. квартира, 67.18 м2, 2 этаж
Срок сдачи 2 квартал 2028 года
18 779 976 
23 329 238
279 547 2
обновлено 4 мая

Описание 2-комн. квартиры

Новостройка
Срок ГК
2 квартал 2028 года
Стадия строительства
котлован/фундамент
Общая площадь
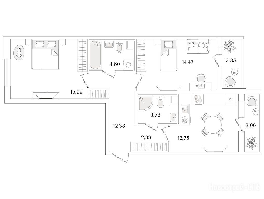
67.18 м2
Этаж
2 / 9
Отделка
нет
Грузовой лифт
есть

Расположение 2-комн. квартиры

Дом
2.2
Адрес
улица Тамбасова, 5, корп. 2.2

Способы покупки

Особенности

Продается двухкомнатная квартира в новостройке ЖК «Кинопарк» по адресу Санкт-Петербург, Красносельский, улица Тамбасова, 5, корп. 2.2. Общая площадь квартиры - 67.18 кв. м. Тип проекта, по которому построен дом — Монолитно-кирпичный, компания-застройщик — ГК РСТИ (РосСтройИнвест), СЗ РСТИ на Тамбасова. Стоимость квартиры — 18 779 976 руб. Способы оплаты можно уточнить у продавца. Срок сдачи — 2 квартал 2028. Более подробная информация по телефону.
Инфоцентр новостроек
Инфоцентр новостроек
+7 (812) 424-49-09
Время работы 9:00 — 21:00
студия 18,97 м2 5 975 512
Этаж 1/9
СПБ, ЖК «Кинопарк»
Проспект Ветеранов
18 мин.
Строится
студия 19,42 м2 5 882 754
Этаж 1/9
СПБ, ЖК «Кинопарк»
Проспект Ветеранов
18 мин.
Строится
студия 19,46 м2 5 836 993
Этаж 1/9
СПБ, ЖК «Кинопарк»
Проспект Ветеранов
18 мин.
Строится
студия 19,70 м2 7 035 955
Этаж 9/9
СПБ, ЖК «Кинопарк»
Проспект Ветеранов
18 мин.
Строится
Посмотреть 366 квартир в ЖК «Кинопарк»
1-комн. квартира 30,85 м2 11 124 189
Этаж 9/9
СПБ, ЖК «Кинопарк»
Проспект Ветеранов
18 мин.
Строится
1-комн. квартира 31,07 м2 10 820 110
Этаж 9/9
СПБ, ЖК «Кинопарк»
Проспект Ветеранов
18 мин.
Строится
1-комн. квартира 31,14 м2 10 211 722
Этаж 7/9
СПБ, ЖК «Кинопарк»
Проспект Ветеранов
18 мин.
Строится
1-комн. квартира 31,26 м2 10 288 434
Этаж 2/9
СПБ, ЖК «Кинопарк»
Проспект Ветеранов
18 мин.
Строится
Посмотреть 609 квартир в ЖК «Кинопарк»
2-комн. квартира 51,03 м2 15 247 983
Этаж 1/9
СПБ, ЖК «Кинопарк»
Проспект Ветеранов
18 мин.
Строится
2-комн. квартира 51,70 м2 15 748 680
Этаж 2/9
СПБ, ЖК «Кинопарк»
Проспект Ветеранов
18 мин.
Строится
2-комн. квартира 52,59 м2 15 738 032
Этаж 3/9
СПБ, ЖК «Кинопарк»
Проспект Ветеранов
18 мин.
Строится
2-комн. квартира 52,67 м2 16 178 425
Этаж 5/9
СПБ, ЖК «Кинопарк»
Проспект Ветеранов
18 мин.
Строится
Посмотреть 127 квартир в ЖК «Кинопарк»
3-комн. квартира 72,61 м2 22 750 538
Этаж 2/9
СПБ, ЖК «Кинопарк»
Проспект Ветеранов
18 мин.
Строится
3-комн. квартира 75,82 м2 23 742 756
Этаж 5/9
СПБ, ЖК «Кинопарк»
Проспект Ветеранов
18 мин.
Строится
3-комн. квартира 76,09 м2 23 420 780
Этаж 3/9
СПБ, ЖК «Кинопарк»
Проспект Ветеранов
18 мин.
Строится
3-комн. квартира 76,97 м2 24 576 290
Этаж 3/9
СПБ, ЖК «Кинопарк»
Проспект Ветеранов
18 мин.
Строится
Посмотреть 71 квартира в ЖК «Кинопарк»

Скидки и спецпредложения от застройщиков

ЖК «Кинопарк» на карте

Выгодные предложения на новостройки

Отзывы о ЖК «Кинопарк»

Самый полезный отзыв
ОИ
28 февраля 2025
Оценка:
Достоинства
Социальная инфраструктура
Двор, окружение
Расположение
Вокруг множество магазинов, детских садов и школ, что очень важно для нашей семьи. Особенно приятно, что рядом находятся целых пять парков и два сквера, где можно проводить время на свежем воздухе, гулять или заниматься спортом. Хотя поблизости нет метро
Ответить
Самый новый отзыв
Г
28 февраля
Оценка:
Не ожидал, что жилье в таком районе будет с такими проблемами. Задержка с документами, парковки не хватает
Ответить

Оставить отзыв

Добавьте отзыв, заполнив личные данные, или сначала войдите на сайт, тогда информация будет автоматически взята из личного профиля.
Оценка*