Переверните экран
Новостройки Квартиры Ипотека Медиа О проекте Контакты Реклама на сайте Vk Youtube Telegram Дзен Продавцы и застройщики Коммерческие помещения Квартиры на карте Эксперты и авторы Машиноместа Акции от застройщиков Банки и программы Апартаменты Новостройки на карте 4-комнатные и более Готовые новостройки 3-комнатные Военная ипотека Покупателю Новостройки Санкт-Петербурга Видеообзор новостроек Семейная ипотека Аналитика рынка Панорамы новостроек 1-комнатные Субсидированная застройщиком Мнение эксперта Студии Ипотечный калькулятор Новости недвижимости Новостройки Ленинградской области IT-ипотека Квартиры со скидками до 25% Новостройки премиум-класса Новостройки бизнес-класса Дома и коттеджи Бизнес-центры Бизнес-центры в Санкт-Петербурге Бизнес-центры рядом с метро Строящиеся бизнес-центры Бизнес-центры класса A

Помещение свободного назначения, 477.70 м 2

Санкт-Петербург, Петроградский, набережная реки Карповки, д. 31
167 195 000
350 000 2
обновлено 15 декабря

Описание

Номер лота
4777
Срок ГК
Сдан
Стадия строительства
выдача ключей + заселение
Тип здания
встроенное помещение
Этаж
2
Площадь
477.70 м2
Окна
с видом во двор и на улицу
Вход в помещение
общий с улицы
общий со двора
Электроснабжение
есть
Водопровод
есть
Канализация
есть
Рекомендованное назначение
Свободное назначение

Расположение

Район
Петроградский
Метро
Дом
8.1
Адрес
набережная реки Карповки, д. 31

Особенности

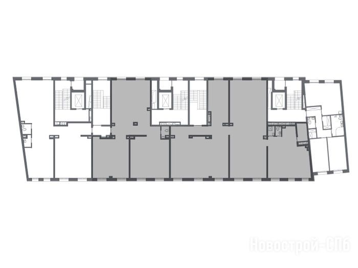
Продаётся помещение свободного назначения площадью 477.7 кв. м. в новостройке ЖК «Северная корона» по адресу Санкт-Петербург, Петроградский, набережная реки Карповки, д. 31. Окна с видом во двор и на улицу. Высота потолков 0.00 м. Общие входы со двора и улицы. Стоимость помещения — 167 195 000 руб. Способы оплаты и более подробная информация по телефону.

Планировка

Корпус 8.1 (Сдан)
Посмотреть все спецпредложения

Еще помещения в ЖК «Северная корона»

Продажа
Дом сдан
Санкт-Петербург, Петроградский
Петроградская
7 мин.
0.00
Высота потолка
Паркинг
Окна
Вход
8.1
Корпус
ЖК «Северная корона»
Продажа
Дом сдан
Санкт-Петербург, Петроградский
Петроградская
7 мин.
0.00
Высота потолка
Паркинг
Окна
Вход
8.1
Корпус
ЖК «Северная корона»
Продажа
Дом сдан
Санкт-Петербург, Петроградский
Петроградская
7 мин.
0.00
Высота потолка
Паркинг
Окна
Вход
8.1
Корпус
ЖК «Северная корона»
Продажа
Дом сдан
Санкт-Петербург, Петроградский
Петроградская
7 мин.
0.00
Высота потолка
Паркинг
Окна
Вход
8.1
Корпус
ЖК «Северная корона»

Скидки и спецпредложения от застройщиков

ЖК «Северная корона» на карте

Выгодные предложения на новостройки