Переверните экран
Новостройки Квартиры Ипотека Медиа О проекте Контакты Реклама на сайте Vk Youtube Telegram Дзен Продавцы и застройщики Коммерческие помещения Квартиры на карте Эксперты и авторы Машиноместа Акции от застройщиков Банки и программы Апартаменты Новостройки на карте 4-комнатные и более Готовые новостройки 3-комнатные Военная ипотека Покупателю Новостройки Санкт-Петербурга Видеообзор новостроек Семейная ипотека Аналитика рынка Панорамы новостроек 1-комнатные Субсидированная застройщиком Мнение эксперта Студии Ипотечный калькулятор Новости недвижимости Новостройки Ленинградской области IT-ипотека Квартиры со скидками до 25% Новостройки премиум-класса Новостройки бизнес-класса Дома и коттеджи Бизнес-центры Бизнес-центры в Санкт-Петербурге Бизнес-центры рядом с метро Строящиеся бизнес-центры Бизнес-центры класса A
Данное предложение на 17.12.2025 неактуально. Пожалуйста, ознакомьтесь с другими похожими предложениями в ЖК «Ручьи».

Помещение свободного назначения, 119.10 м 2

Санкт-Петербург, Красногвардейский, Северный проспект, 127к3
22 331 250
187 500 2
обновлено 01 декабря

Описание

Номер лота
1
Новостройка
Срок ГК
Сдан
Стадия строительства
выдача ключей + заселение
Тип здания
встроенное помещение
Этаж
1
Площадь
119.10 м2
Окна
с видом во двор
Вход в помещение
отдельный со двора
Электроснабжение
есть
Водопровод
есть
Канализация
есть
Рекомендованное назначение
Офис

Расположение

Район
Красногвардейский
Метро
Ж/Д-станция
Ручьи
5 мин.
Дом
1.5
Адрес
Северный проспект, 127к3

Особенности

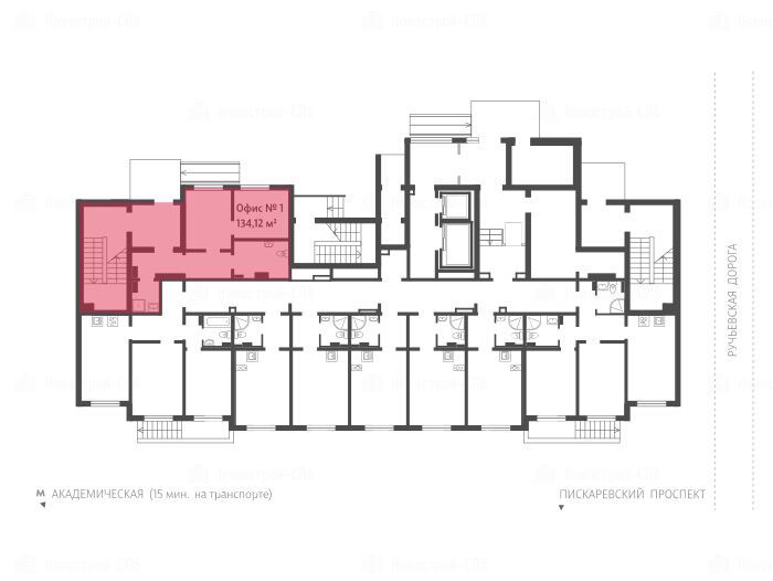
Продаётся помещение свободного назначения площадью 119.1 кв. м. в новостройке ЖК «Ручьи» по адресу Санкт-Петербург, Красногвардейский, Северный проспект, 127к3. Окна с видом во двор. Высота потолков 0.00 м. Отдельный вход со двора. Стоимость помещения — 22 331 250 руб. Способы оплаты и более подробная информация по телефону.

Планировка

Корпус 1.5 (Сдан)
Посмотреть все спецпредложения

Скидки и спецпредложения от застройщиков

ЖК «Ручьи» на карте

Выгодные предложения на новостройки