Переверните экран
Новостройки Квартиры Ипотека Медиа О проекте Контакты Реклама на сайте Vk Youtube Telegram Дзен Продавцы и застройщики Коммерческие помещения Квартиры на карте Эксперты и авторы Машиноместа Акции от застройщиков Банки и программы Апартаменты Новостройки на карте 4-комнатные и более Готовые новостройки 3-комнатные Военная ипотека Покупателю Новостройки Санкт-Петербурга Видеообзор новостроек Семейная ипотека Аналитика рынка Панорамы новостроек 1-комнатные Субсидированная застройщиком Мнение эксперта Студии Ипотечный калькулятор Новости недвижимости Новостройки Ленинградской области IT-ипотека Квартиры со скидками до 25% Новостройки премиум-класса Новостройки бизнес-класса Дома и коттеджи Бизнес-центры Бизнес-центры в Санкт-Петербурге Бизнес-центры рядом с метро Строящиеся бизнес-центры Бизнес-центры класса A
Данное предложение на 16.12.2025 неактуально. Пожалуйста, ознакомьтесь с другими похожими предложениями в ЖК «Морская набережная» (Бульвар+SeaView).

Помещение свободного назначения, 134.10 м 2

Санкт-Петербург, Василеостровский, проспект Крузенштерна, 2
33 297 030
248 300 2
обновлено 01 декабря

Описание

Номер лота
3
Срок ГК
Сдан
Стадия строительства
Тип здания
встроенное помещение
Этаж
1
Площадь
134.10 м2
Высота потолка
4.45
Окна
с видом на улицу
Вход в помещение
отдельный с улицы
Водопровод
есть
Канализация
есть

Расположение

Район
Василеостровский
Метро
Дом
1.7
Адрес
проспект Крузенштерна, 2

Особенности

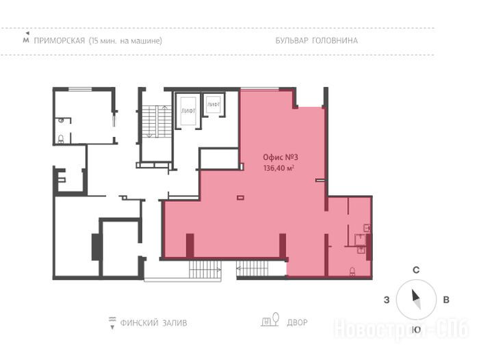
Продаётся помещение свободного назначения площадью 134.1 кв. м. в новостройке ЖК «Морская набережная» (Бульвар+SeaView) по адресу Санкт-Петербург, Василеостровский, проспект Крузенштерна, 2. Окна с видом на улицу. Высота потолков 4.45 м. Отдельный вход с улицы. Стоимость помещения — 33 297 030 руб. Способы оплаты и более подробная информация по телефону.

Планировка

Корпус 1.7 (Сдан)
Посмотреть все спецпредложения

Скидки и спецпредложения от застройщиков

ЖК «Морская набережная» (Бульвар+SeaView) на карте

Выгодные предложения на новостройки