Переверните экран
Новостройки Квартиры Ипотека Медиа О проекте Контакты Реклама на сайте Vk Youtube Telegram Дзен Продавцы и застройщики Коммерческие помещения Квартиры на карте Эксперты и авторы Машиноместа Акции от застройщиков Банки и программы Апартаменты Новостройки на карте 4-комнатные и более Готовые новостройки 3-комнатные Военная ипотека Покупателю Новостройки Санкт-Петербурга Видеообзор новостроек Семейная ипотека Аналитика рынка Панорамы новостроек 1-комнатные Субсидированная застройщиком Мнение эксперта Студии Ипотечный калькулятор Новости недвижимости Новостройки Ленинградской области IT-ипотека Квартиры со скидками до 25% Новостройки премиум-класса Новостройки бизнес-класса Дома и коттеджи Бизнес-центры Бизнес-центры в Санкт-Петербурге Бизнес-центры рядом с метро Строящиеся бизнес-центры Бизнес-центры класса A

Помещение свободного назначения, 70.82 м 2

Санкт-Петербург, Красносельский, ул. Маршала Казакова, 21
31 621 893
446 511 2
обновлено 15 декабря

Описание

Номер лота
10
Новостройка
Тип здания
встроенное помещение
Этаж
1
Площадь
70.82 м2
Высота потолка
3.54
Окна
с видом во двор и на улицу
Вход в помещение
отдельный с улицы
Электроснабжение
есть
Водопровод
есть
Канализация
есть
Рекомендованное назначение
Свободное назначение

Расположение

Район
Красносельский
Дом
ЖК «Морская миля»
Адрес
ул. Маршала Казакова, 21

Особенности

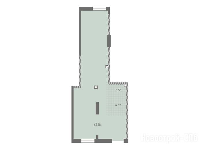
Продаётся помещение свободного назначения площадью 70.82 кв. м. в новостройке ЖК «Морская миля» по адресу Санкт-Петербург, Красносельский, ул. Маршала Казакова, 21. Окна с видом во двор и на улицу. Высота потолков 3.54 м. Отдельный вход с улицы. Стоимость помещения — 31 621 893 руб. Способы оплаты и более подробная информация по телефону.

Планировка

Посмотреть все спецпредложения

Еще помещения в ЖК «Морская миля»

Продажа
Санкт-Петербург, Красносельский
Юго-Западная (2025) (2025)
10 мин.
3.54
Высота потолка
Паркинг
Окна
отдельный с улицы
Вход
Корпус
ЖК «Морская миля»
Продажа
Санкт-Петербург, Красносельский
Юго-Западная (2025) (2025)
10 мин.
3.54
Высота потолка
Паркинг
Окна
отдельный с улицы
Вход
Корпус
ЖК «Морская миля»
Продажа
Санкт-Петербург, Красносельский
Юго-Западная (2025) (2025)
10 мин.
3.54
Высота потолка
Паркинг
Окна
отдельный с улицы
Вход
Корпус
ЖК «Морская миля»
Продажа
Санкт-Петербург, Красносельский
Юго-Западная (2025) (2025)
10 мин.
3.54
Высота потолка
Паркинг
Окна
отдельный с улицы
Вход
Корпус
ЖК «Морская миля»

Скидки и спецпредложения от застройщиков

ЖК «Морская миля» на карте

Выгодные предложения на новостройки