Переверните экран
Новостройки Квартиры Ипотека Медиа О проекте Контакты Реклама на сайте Vk Youtube Telegram Дзен Продавцы и застройщики Коммерческие помещения Квартиры на карте Эксперты и авторы Машиноместа Акции от застройщиков Банки и программы Апартаменты Новостройки на карте 4-комнатные и более Готовые новостройки 3-комнатные Военная ипотека Покупателю Новостройки Санкт-Петербурга Видеообзор новостроек Семейная ипотека Аналитика рынка Панорамы новостроек 1-комнатные Субсидированная застройщиком Мнение эксперта Студии Ипотечный калькулятор Новости недвижимости Новостройки Ленинградской области IT-ипотека Квартиры со скидками до 25% Новостройки премиум-класса Новостройки бизнес-класса Дома и коттеджи Бизнес-центры Бизнес-центры в Санкт-Петербурге Бизнес-центры рядом с метро Строящиеся бизнес-центры Бизнес-центры класса A
Данное предложение на 16.12.2025 неактуально. Пожалуйста, ознакомьтесь с другими похожими предложениями в ЖК «Цивилизация».

Помещение свободного назначения, 129.20 м 2

Санкт-Петербург, Невский, Дальневосточный проспект, 39к4
37 933 120
293 600 2
обновлено 01 декабря

Описание

Номер лота
2
Новостройка
Срок ГК
Сдан
Стадия строительства
Тип здания
встроенное помещение
Этаж
1
Площадь
129.20 м2
Окна
с видом на улицу
Вход в помещение
отдельный с улицы

Расположение

Район
Невский
Метро
Дом
25
Адрес
Дальневосточный проспект, 39к4

Особенности

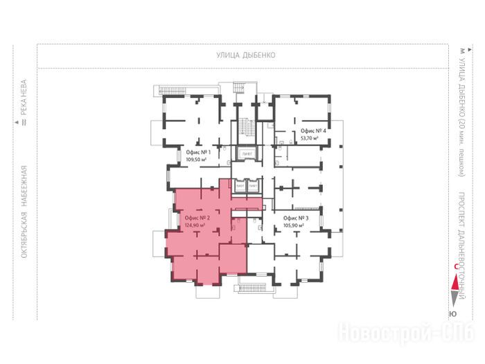
Продаётся помещение свободного назначения площадью 129.2 кв. м. в новостройке ЖК «Цивилизация» по адресу Санкт-Петербург, Невский, Дальневосточный проспект, 39к4. Окна с видом на улицу. Высота потолков 0.00 м. Отдельный вход с улицы. Стоимость помещения — 37 933 120 руб. Способы оплаты и более подробная информация по телефону.

Планировка

Корпус 25 (Сдан)
Посмотреть все спецпредложения

Скидки и спецпредложения от застройщиков

ЖК «Цивилизация» на карте

Выгодные предложения на новостройки