Переверните экран
Поиск бизнес центров

Найдите современный офис в деловых районах Санкт-Петербурга

Найдите современный офис в деловых районах Санкт-Петербурга

Перейти к поиску
Новостройки Квартиры Ипотека Медиа О проекте Контакты Реклама на сайте Vk Youtube Telegram Дзен Продавцы и застройщики Коммерческие помещения Квартиры на карте Эксперты и авторы Машиноместа Акции от застройщиков Банки и программы Апартаменты Новостройки на карте 4-комнатные и более Готовые новостройки 3-комнатные Военная ипотека Покупателю Новостройки Санкт-Петербурга Видеообзор новостроек Семейная ипотека Аналитика рынка Панорамы новостроек 1-комнатные Субсидированная застройщиком Мнение эксперта Студии Ипотечный калькулятор Новости недвижимости Новостройки Ленинградской области IT-ипотека Квартиры со скидками до 25% Новостройки премиум-класса Новостройки бизнес-класса Дома и коттеджи Бизнес-центры Бизнес-центры в Санкт-Петербурге Бизнес-центры рядом с метро Строящиеся бизнес-центры Бизнес-центры класса A
Данное предложение на 18.01.2026 неактуально. Пожалуйста, ознакомьтесь с другими похожими предложениями в ЖК «Северная Долина» .
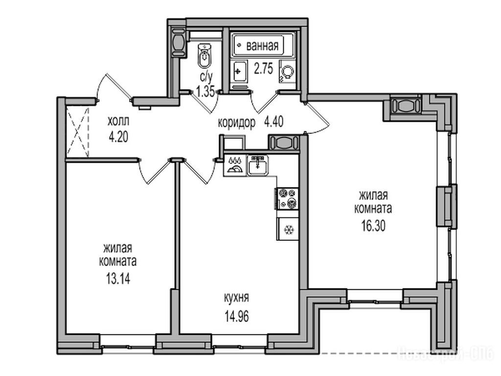
3-комн. квартира, 56.40 м2, 1 этаж
Сдан
13 547 844 
15 053 160
240 210 2
обновлено 7 декабря

Описание 3-комн. квартиры

Срок ГК
Дом сдан
Стадия строительства
Общая площадь
56.40 м2
Жилая площадь
29.44 м2
Площадь кухни
14.96 м2
Этаж
1 / 27
Отделка
чистовая
Грузовой лифт
есть

Расположение 3-комн. квартиры

Локация
Дом
21-25 (оч.18)
Адрес
Толубеевский проезд, 32, секция 1

Особенности

Продается трехкомнатная квартира в новостройке ЖК «Северная Долина» по адресу Санкт-Петербург, Выборгский, Толубеевский проезд, 32. Общая площадь квартиры - 56.4 кв. м. Тип проекта, по которому построен дом — Монолитно-кирпичный, компания-застройщик — «Главстрой Санкт-Петербург». Стоимость квартиры — 13 547 844 руб. Способы оплаты можно уточнить у продавца. Более подробная информация по телефону.

Правовые документы

Инфоцентр новостроек
Инфоцентр новостроек
+7 (812) 424-49-09
Время работы 9:00 — 21:00
Посмотреть все спецпредложения
4-комн. квартира 98,50 м2 17 313 345
Этаж 1/25
СПБ, ЖК «Северная Долина»
Парнас
18 мин.
Сдан
5-комн. квартира 112,40 м2 21 013 434
Этаж 2/25
СПБ, ЖК «Северная Долина»
Парнас
18 мин.
Сдан

Скидки и спецпредложения от застройщиков

ЖК «Северная Долина» на карте

Выгодные предложения на новостройки

Отзывы о ЖК «Северная Долина»

Самый полезный отзыв
И
06 декабря 2017
Оценка:
Экология
Социальная инфраструктура
Планировки
Способы покупки
Берем однокомнатную квартиру с кухонным гарнитуром в 9 корпусе (11оч). Это новая опция у них - теперь нам стоимость кухни в ипотечный кредит посчитали, не придется отдельно докупать.
Показать все комментарии
Ответить
Полезный отзыв?
Самый новый отзыв
КЮ
18 сентября 2025
Оценка:
Живем в Северной долине 2 года, всем довольны. Спокойный район, хоть и много народу живет, до работы удобно
Ответить
Полезный отзыв?
Добавьте отзыв, заполнив личные данные, или сначала войдите на сайт, тогда информация будет автоматически взята из личного профиля.
Оценка*