Переверните экран
Поиск домов и коттеджей

Найдите идеальный дом или коттедж в Санкт-Петербурге и области

Найдите идеальный дом или коттедж в Санкт-Петербурге и области

Перейти к поиску
Новостройки Квартиры Ипотека Медиа О проекте Контакты Реклама на сайте Vk Youtube Telegram Дзен Продавцы и застройщики Коммерческие помещения Квартиры на карте Эксперты и авторы Машиноместа Акции от застройщиков Банки и программы Апартаменты Новостройки на карте 4-комнатные и более Готовые новостройки 3-комнатные Военная ипотека Покупателю Новостройки Санкт-Петербурга Видеообзор новостроек Семейная ипотека Аналитика рынка Панорамы новостроек 1-комнатные Субсидированная застройщиком Мнение эксперта Студии Ипотечный калькулятор Новости недвижимости Новостройки Ленинградской области IT-ипотека Квартиры со скидками до 25% Новостройки премиум-класса Новостройки бизнес-класса Дома и коттеджи Бизнес-центры Бизнес-центры в Санкт-Петербурге Бизнес-центры рядом с метро Строящиеся бизнес-центры Бизнес-центры класса A
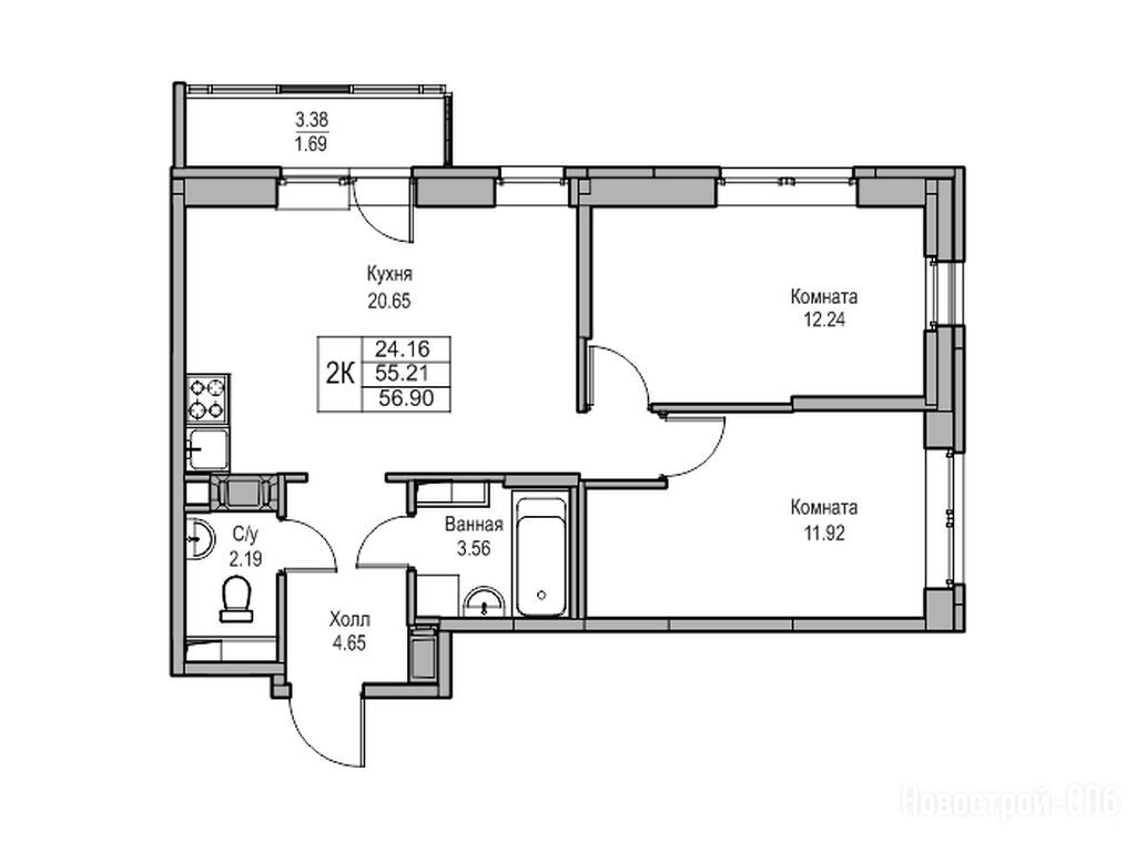
3-комн. квартира, 56.90 м2, 16 этаж
Срок сдачи 1 квартал 2026 года
13 058 600 
16 323 250
229 501 2
обновлено 3 февраля

Описание 3-комн. квартиры

Срок ГК
1 квартал 2026 года
Общая площадь
56.90 м2
Этаж
16 / 23
Отделка
чистовая

Расположение 3-комн. квартиры

Локация
Метро
Беговая
30 мин.
Ж/Д-станция
Ольгино
15 мин.
Дом
5
Адрес
Ивинская улица, 1к2

Способы покупки

Особенности

Продается трехкомнатная квартира в новостройке ЖК «ПАРК-КВАРТАЛ Юнтолово» по адресу Санкт-Петербург, Приморский, Ивинская улица, 1к2. Общая площадь квартиры - 56.9 кв. м. Тип проекта, по которому построен дом — Монолитно-кирпичный, компания-застройщик — «Главстрой Санкт-Петербург». Стоимость квартиры — 13 058 600 руб. Способы оплаты можно уточнить у продавца. Срок сдачи — 1 квартал 2026. Более подробная информация по телефону.
Инфоцентр новостроек
Инфоцентр новостроек
+7 (812) 424-49-09
Время работы 9:00 — 21:00

Похожие квартиры в ЖК «ПАРК-КВАРТАЛ Юнтолово»

12 этаж
из 23 1 квартал 2026
Санкт-Петербург, Санкт-Петербург
Беговая
30 мин.
5
Корпус
чистовая
Отделка
2.76 м
Потолки
ЖК «ПАРК-КВАРТАЛ Юнтолово»
13 002 840 16 253 550
Московский Кредитный Банк, Газпромбанк, Банк Санкт-Петербург, Совкомбанк, Промсвязьбанк
6.00%
Ставка
50.01%
Первый взнос
от 77 959 /мес.
Все варианты
13 этаж
из 23 1 квартал 2026
Санкт-Петербург, Санкт-Петербург
Беговая
30 мин.
5
Корпус
чистовая
Отделка
2.76 м
Потолки
ЖК «ПАРК-КВАРТАЛ Юнтолово»
13 016 760 16 270 950
Московский Кредитный Банк, Газпромбанк, Банк Санкт-Петербург, Совкомбанк, Промсвязьбанк
6.00%
Ставка
50.01%
Первый взнос
от 78 042 /мес.
Все варианты
18 этаж
из 23 1 квартал 2026
Санкт-Петербург, Санкт-Петербург
Беговая
30 мин.
5
Корпус
чистовая
Отделка
2.76 м
Потолки
ЖК «ПАРК-КВАРТАЛ Юнтолово»
13 114 280 16 392 850
Московский Кредитный Банк, Газпромбанк, Банк Санкт-Петербург, Совкомбанк, Промсвязьбанк
6.00%
Ставка
50.01%
Первый взнос
от 78 627 /мес.
Все варианты
20 этаж
из 23 1 квартал 2026
Санкт-Петербург, Санкт-Петербург
Беговая
30 мин.
5
Корпус
чистовая
Отделка
2.76 м
Потолки
ЖК «ПАРК-КВАРТАЛ Юнтолово»
13 142 120 16 427 650
Московский Кредитный Банк, Газпромбанк, Банк Санкт-Петербург, Совкомбанк, Промсвязьбанк
6.00%
Ставка
50.01%
Первый взнос
от 78 794 /мес.
Все варианты
Посмотреть все спецпредложения
Этаж 4/23
СПБ, ЖК «ПАРК-КВАРТАЛ Юнтолово»
Беговая
30 мин.
Строится
Этаж 13/23
СПБ, ЖК «ПАРК-КВАРТАЛ Юнтолово»
Беговая
30 мин.
Строится
Этаж 3/23
СПБ, ЖК «ПАРК-КВАРТАЛ Юнтолово»
Беговая
30 мин.
Строится
Этаж 11/23
СПБ, ЖК «ПАРК-КВАРТАЛ Юнтолово»
Беговая
30 мин.
Строится
Посмотреть 21 квартира в ЖК «ПАРК-КВАРТАЛ Юнтолово»
Этаж 1/23
СПБ, ЖК «ПАРК-КВАРТАЛ Юнтолово»
Беговая
30 мин.
Строится
Этаж 8/23
СПБ, ЖК «ПАРК-КВАРТАЛ Юнтолово»
Беговая
30 мин.
Строится
Этаж 12/23
СПБ, ЖК «ПАРК-КВАРТАЛ Юнтолово»
Беговая
30 мин.
Строится
Этаж 17/23
СПБ, ЖК «ПАРК-КВАРТАЛ Юнтолово»
Беговая
30 мин.
Строится
Посмотреть 140 квартир в ЖК «ПАРК-КВАРТАЛ Юнтолово»
Этаж 7/23
СПБ, ЖК «ПАРК-КВАРТАЛ Юнтолово»
Беговая
30 мин.
Строится
Этаж 12/23
СПБ, ЖК «ПАРК-КВАРТАЛ Юнтолово»
Беговая
30 мин.
Строится
Этаж 20/23
СПБ, ЖК «ПАРК-КВАРТАЛ Юнтолово»
Беговая
30 мин.
Строится
Этаж 1/23
СПБ, ЖК «ПАРК-КВАРТАЛ Юнтолово»
Беговая
30 мин.
Строится
Посмотреть 48 квартир в ЖК «ПАРК-КВАРТАЛ Юнтолово»
Этаж 1/23
СПБ, ЖК «ПАРК-КВАРТАЛ Юнтолово»
Беговая
30 мин.
Строится
Этаж 1/23
СПБ, ЖК «ПАРК-КВАРТАЛ Юнтолово»
Беговая
30 мин.
Строится
Этаж 13/23
СПБ, ЖК «ПАРК-КВАРТАЛ Юнтолово»
Беговая
30 мин.
Строится
Этаж 2/23
СПБ, ЖК «ПАРК-КВАРТАЛ Юнтолово»
Беговая
30 мин.
Строится
Посмотреть 28 квартир в ЖК «ПАРК-КВАРТАЛ Юнтолово»

Скидки и спецпредложения от застройщиков

ЖК «ПАРК-КВАРТАЛ Юнтолово» на карте

Выгодные предложения на новостройки

Отзывы о ЖК «ПАРК-КВАРТАЛ Юнтолово»

Самый полезный отзыв
ИС
25 марта 2025
Оценка:
Планировки
Способы покупки
Двор, окружение
Расположение
Тут такой чистый воздух! Из окна видно лес. Для детей тут много площадок, и они могут весело проводить время на свежем воздухе. Взрослым тоже не придётся скучать. Есть достаточно мест для прогулок, можно посидеть на скамеечках и просто отдохнуть. Особенно понравились беседки для шашлыков - крутая идея для летних посиделок. Эко тропа в лес тоже радует.
Ответить
Полезный отзыв?
Самый новый отзыв
С
15 января
Оценка:
Двор, окружение
Расположение
Транспортная доступность
Мне нравится, что здесь реально чувствуется экология: много зелени, рядом заказник, дворы просторнее, чем в типичных новых районах. Но честно: транспорт - слабое место, в отзывах это один из главных минусов, и он будет влиять на качество жизни, если часто ездить в город
Ответить
Полезный отзыв?
Добавьте отзыв, заполнив личные данные, или сначала войдите на сайт, тогда информация будет автоматически взята из личного профиля.
Оценка*