Переверните экран
Новостройки Квартиры Ипотека Медиа О проекте Контакты Реклама на сайте Vk Youtube Telegram Дзен Продавцы и застройщики Коммерческие помещения Квартиры на карте Эксперты и авторы Машиноместа Акции от застройщиков Банки и программы Апартаменты Новостройки на карте 4-комнатные и более Готовые новостройки 3-комнатные Военная ипотека Покупателю Новостройки Санкт-Петербурга Видеообзор новостроек Семейная ипотека Аналитика рынка Панорамы новостроек 1-комнатные Субсидированная застройщиком Мнение эксперта Студии Ипотечный калькулятор Новости недвижимости Новостройки Ленинградской области IT-ипотека Квартиры со скидками до 25% Новостройки премиум-класса Новостройки бизнес-класса Дома и коттеджи Бизнес-центры Бизнес-центры в Санкт-Петербурге Бизнес-центры рядом с метро Строящиеся бизнес-центры Бизнес-центры класса A
Данное предложение на 16.12.2025 неактуально. Пожалуйста, ознакомьтесь с другими похожими предложениями в ЖК «ПАРК-КВАРТАЛ Юнтолово» .
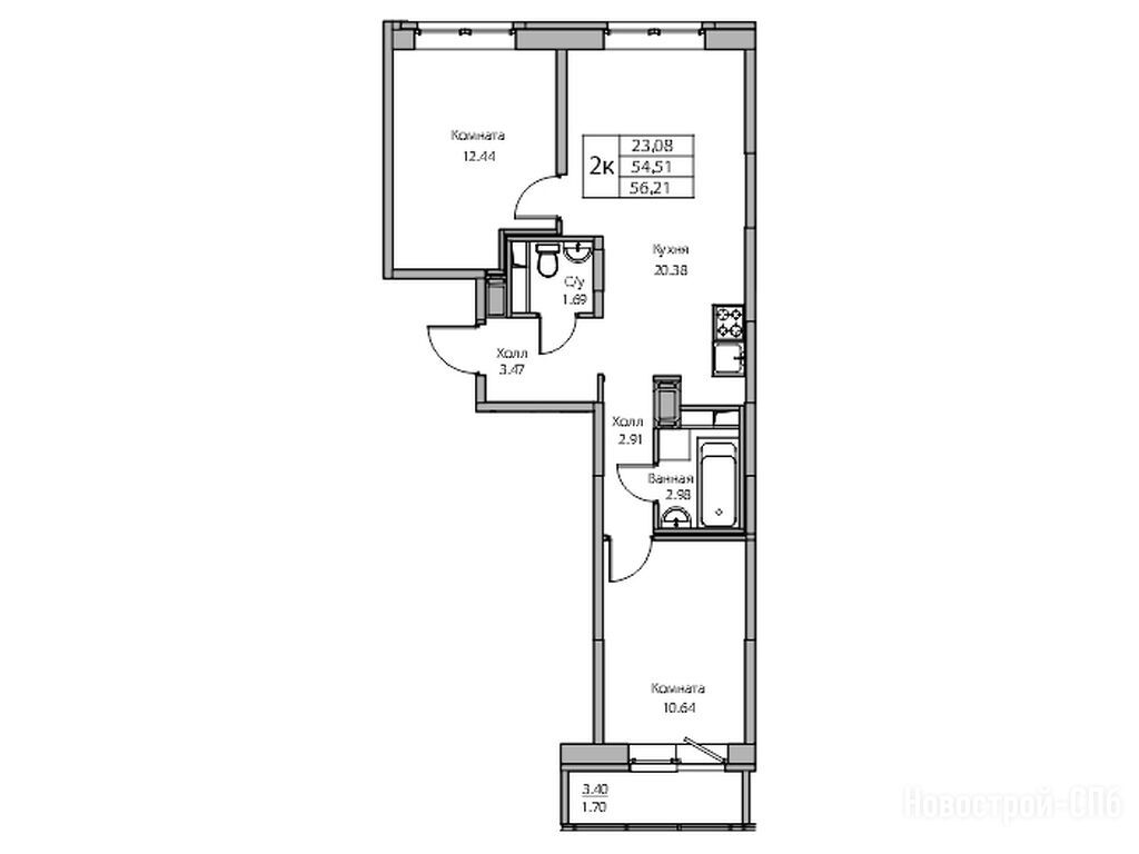
3-комн. квартира, 56.21 м2, 6 этаж
Срок сдачи 4 квартал 2025 года
10 225 080 
181 909 2
обновлено 10 ноября

Описание 3-комн. квартиры

Срок ГК
4 квартал 2025 года
Общая площадь
56.21 м2
Жилая площадь
23.00 м2
Этаж
6 / 23
Отделка
чистовая
Грузовой лифт
есть

Расположение 3-комн. квартиры

Локация
Метро
Беговая
30 мин.
Ж/Д-станция
Ольгино
15 мин.
Дом
4
Адрес
Ивинская улица, 5к1

Особенности

Продается трехкомнатная квартира в новостройке ЖК «ПАРК-КВАРТАЛ Юнтолово» по адресу Санкт-Петербург, Приморский, Ивинская улица, 5к1. Общая площадь квартиры - 56.21 кв. м. Тип проекта, по которому построен дом — Монолитно-кирпичный, компания-застройщик — «Главстрой Санкт-Петербург». Стоимость квартиры — 10 225 080 руб. Способы оплаты можно уточнить у продавца. Срок сдачи — 4 квартал 2025. Более подробная информация по телефону.
Инфоцентр новостроек
Инфоцентр новостроек
+7 (812) 424-49-09
Время работы 9:00 — 21:00
Посмотреть все спецпредложения
Этаж 4/23
СПБ, ЖК «ПАРК-КВАРТАЛ Юнтолово»
Беговая
30 мин.
Строится
Этаж 13/23
СПБ, ЖК «ПАРК-КВАРТАЛ Юнтолово»
Беговая
30 мин.
Строится
Этаж 3/23
СПБ, ЖК «ПАРК-КВАРТАЛ Юнтолово»
Беговая
30 мин.
Строится
Этаж 11/23
СПБ, ЖК «ПАРК-КВАРТАЛ Юнтолово»
Беговая
30 мин.
Строится
Посмотреть 21 квартира в ЖК «ПАРК-КВАРТАЛ Юнтолово»
Этаж 1/23
СПБ, ЖК «ПАРК-КВАРТАЛ Юнтолово»
Беговая
30 мин.
Строится
Этаж 8/23
СПБ, ЖК «ПАРК-КВАРТАЛ Юнтолово»
Беговая
30 мин.
Строится
Этаж 12/23
СПБ, ЖК «ПАРК-КВАРТАЛ Юнтолово»
Беговая
30 мин.
Строится
Этаж 17/23
СПБ, ЖК «ПАРК-КВАРТАЛ Юнтолово»
Беговая
30 мин.
Строится
Посмотреть 140 квартир в ЖК «ПАРК-КВАРТАЛ Юнтолово»
Этаж 7/23
СПБ, ЖК «ПАРК-КВАРТАЛ Юнтолово»
Беговая
30 мин.
Строится
Этаж 12/23
СПБ, ЖК «ПАРК-КВАРТАЛ Юнтолово»
Беговая
30 мин.
Строится
Этаж 20/23
СПБ, ЖК «ПАРК-КВАРТАЛ Юнтолово»
Беговая
30 мин.
Строится
Этаж 1/23
СПБ, ЖК «ПАРК-КВАРТАЛ Юнтолово»
Беговая
30 мин.
Строится
Посмотреть 48 квартир в ЖК «ПАРК-КВАРТАЛ Юнтолово»
Этаж 1/23
СПБ, ЖК «ПАРК-КВАРТАЛ Юнтолово»
Беговая
30 мин.
Строится
Этаж 1/23
СПБ, ЖК «ПАРК-КВАРТАЛ Юнтолово»
Беговая
30 мин.
Строится
Этаж 13/23
СПБ, ЖК «ПАРК-КВАРТАЛ Юнтолово»
Беговая
30 мин.
Строится
Этаж 2/23
СПБ, ЖК «ПАРК-КВАРТАЛ Юнтолово»
Беговая
30 мин.
Строится
Посмотреть 28 квартир в ЖК «ПАРК-КВАРТАЛ Юнтолово»

Скидки и спецпредложения от застройщиков

ЖК «ПАРК-КВАРТАЛ Юнтолово» на карте

Выгодные предложения на новостройки

Отзывы о ЖК «ПАРК-КВАРТАЛ Юнтолово»

Самый полезный отзыв
ИС
25 марта
Оценка:
Планировки
Способы покупки
Двор, окружение
Расположение
Тут такой чистый воздух! Из окна видно лес. Для детей тут много площадок, и они могут весело проводить время на свежем воздухе. Взрослым тоже не придётся скучать. Есть достаточно мест для прогулок, можно посидеть на скамеечках и просто отдохнуть. Особенно понравились беседки для шашлыков - крутая идея для летних посиделок. Эко тропа в лес тоже радует.
Ответить
Полезный отзыв?
Самый новый отзыв
Т
31 августа
Оценка:
Искал квартиру, где будет удобно жить, и здесь нашел идеальный вариант. Планировка квартиры позволяет с комфортом разместить всю семью, а развитая инфраструктура - это дополнительный бонус
Ответить
Полезный отзыв?
Добавьте отзыв, заполнив личные данные, или сначала войдите на сайт, тогда информация будет автоматически взята из личного профиля.
Оценка*